Quick Search:
Property ID:
Features
Description
RAY COOKE AUCTIONEERS are delighted to present this stunning A-rated 4-bedroom detached family home to the market in the highly sought-after Newtown Way development in Kill, Co. Kildare. Newtown Way couldn’t be any better located right in the heart of Kill village with every possible amenity on your doorstep. Kill is a traditional country village that rests comfortably on the edge of the greater Dublin area and is conveniently located near the N7 just 15 minutes to Red Cow. Kill Village hosts a generous selection of pubs, shops, schools and also offers a good social life with a thriving local spirit. You are also surrounded by acres of countryside ideal for walking and the outdoor enthusiast. It’s very well connected by public transport with Dublin Bus providing convenient access to Dublin City Centre and Naas town centre is only 10 minutes away.
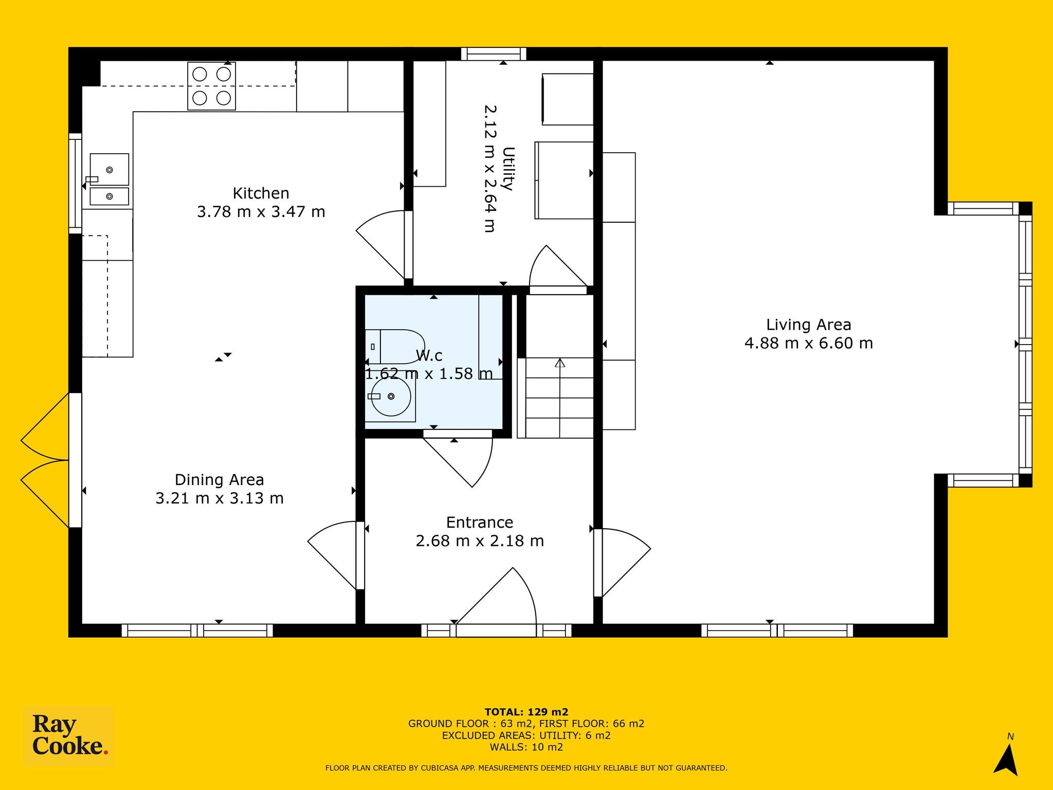
Bright, airy and most stylish interior living accommodation of c. 134 sqm compromises of entrance hallway with guest bathroom, large open living room with stunning feature wall, stylish fully fitted kitchen and separate utility/washroom. On the first floor you have four generous bedrooms (one master ensuite) all with built in wardrobes and main family bathroom. Double doors from the kitchen area leads onto a low maintenance rear garden that is fully enclosed with the upmost privacy, it has the benefits of a sunny south west facing orientation sitting on beautiful composite decking & pergola making it absolutely perfect for relaxing on them long sunny summer evenings.
No.1 comes to the market in turnkey condition throughout having been lovingly maintained by its current owners with the highest quality fixtures & fittings available in this home, it has plenty of additional features such as large open plan living space, fully fitted kitchen, gas fired central heating, top quality windows & doors and top-quality flooring to name but a few. It comes with ample off-street parking and situated in one of the best parts of the whole development. This really is the perfect opportunity for any growing family looking to settle roots in a turnkey home in one of the most sought-after estates in all of Kildare.
Early viewing is highly advised, contact RAY COOKE AUCTIONEERS to arrange a viewing today.
Additional Features;
A2 energy rating
C 134 sqm
4 bed / 3 bath
Detached family home
Turnkey condition throughout
Tastefully decorated from top to bottom
Highest possible fixtures & fittings
Management fees c €428 per annum
Entrance hall with guest bathroom
Large living room with beautiful feature wall
Stylish fully fitted kitchen
Integrated appliances
Separate utility/washroom
Four generous bedrooms
Master bedroom ensuite
Built in wardrobes
Main family bathroom
Heated towel rails in all bathrooms
Composite front door with five-point locking system
Stylish coloured UPVC high performance windows
Top quality flooring
Gas fired central heating
UPVC fascias & soffits
Traditional interlocking flat tile that gives a clean & modern look
House alarm
Pumped water
Network point in each room
CCTV system
Ample storage throughout
Sunny south west facing rear garden
Private & fully enclosed
Composite decking with pergola
Perfect for summer relaxation
Ample parking
Permeable paved driveway with seeded garden
Ideally located in the heart of Kill village
Very well-connected area
Early viewing is highly advised
Directions – W91N62N
Location

Phone:
Connect with us:
Phone:
Connect with us:
Similar Properties
For Rent
- 1 Rooms
- 1 Baths
For Rent
- 1 Rooms
- 1 Baths
For Rent
- 3 Rooms
- 3 Baths
For Rent
- 1 Rooms
- 1 Baths
For Rent
- 5 Rooms
- 4 Baths
For Rent
- 5 Rooms
- 4 Baths
For Sale
- 4 Rooms
- 4 Baths
- 282 sq m
For Sale
- 5 Rooms
- 5 Baths
- 225 sq m
For Sale
- 4 Rooms
- 3 Baths
- 235 sq m











































































