Quick Search:
Property ID:
Features
Description
RAY COOKE AUCTIONEERS are delighted to present this bright and spacious two-bedroom mid-terrace family home to the market, ideally located in the ever-popular and highly sought-after Huntstown Wood cul-de-sac. Lovingly maintained by its previous owner, the property offers well-proportioned, turnkey accommodation throughout and with no onward chain, this home is sure to appeal to a broad range of buyers, including first-time purchasers and investors alike.
Nestled within a mature and well-established residential area, this home benefits from excellent access to a wide range of local amenities. The nearby villages of Mulhuddart and Blanchardstown offer an array of shops, cafés, and everyday services, while the renowned Blanchardstown Shopping Centre is just a short distance away, providing extensive retail, dining, and leisure options. Educational facilities are well catered for, with several schools close by, including Blakestown Community School. The National Aquatic Centre, along with a number of national and multinational employers, is also conveniently located nearby, making the area particularly attractive to commuters. Transport links are superb, with frequent bus services providing direct access to Dublin City Centre, while the M50 and N3 motorways are easily accessible, ensuring efficient travel throughout Dublin and beyond. Both Blanchardstown and Castleknock train stations are within easy reach, and Dublin Airport is just a short drive away.
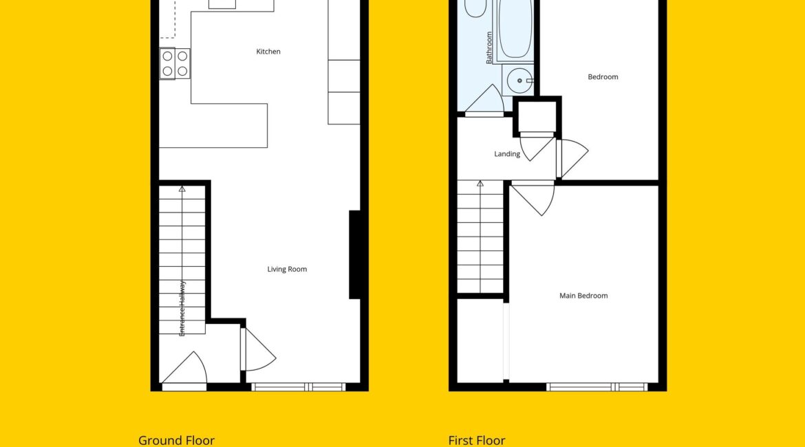
Internally, no.118 Huntstown Woods extends to approximately 60 sq.m of bright, well-proportioned accommodation. The ground floor comprises a newly renovated open-plan living area with a high-spec integrated kitchen complete with island, and a rear door opening onto a sunny, south-facing garden. Upstairs, there are two generously sized double bedrooms and a contemporary family bathroom. The property is presented in immaculate condition throughout and benefits from triple-glazed windows, gas-fired central heating, high-quality herringbone flooring, and a stylish, high-spec kitchen. To the rear is a particularly private, low-maintenance, south-facing garden—ideal for outdoor dining and family enjoyment—with the added benefit of a garden shed for additional storage. No. 118 represents an excellent opportunity to acquire a turnkey home in a sought-after, family-friendly location, with a wide range of amenities and conveniences close at hand.
Call Ray Cooke Auctioneers for further information or to arrange viewing!!
Features;
– 2 Bed Mid-Terrace
– BER D1
– 60 sq.m
– Turnkey condition
– High spec integrated kitchen
– South facing rear garden
– Triple glazed windows
– Gas fired central heating
– No onward chain
– Private driveway & ample off street parking
– Quiet cul de sac
– Mature and sought after location
– Excellent primary & secondary schools on your doorstep
– Easy access to M50 motorway
– Local amenities within walking distance
– Ideal for first time buyers and investors
– Viewing highly advised!
Directions: Start in Blanchardstown (centre) and head northwest toward Blakestown Road / Huntstown Way. At the roundabout, take the exit onto Blakestown Road. Continue on Blakestown Road until you reach Huntstown Way. Turn right onto Huntstown Way. Follow Huntstown Way and then turn right onto Huntstown Wood. 118 Huntstown Woods will be on your left in the residential cul-de-sac.
Location

Phone:
Connect with us:
Phone:
Connect with us:
Mobhi Road Office
Phone:
Connect with us:
Similar Properties
For Sale
- 2 Rooms
- 2 Baths
- 80 sq m
For Rent
- 2 Rooms
- 2 Baths
For Sale
- 2 Rooms
- 2 Baths
- 63 sq m
For Rent
- 3 Rooms
- 2 Baths
For Sale
- 3 Rooms
- 2 Baths
For Sale
- 4 Rooms
- 4 Baths
- 149 sq m
For Sale
- 4 Rooms
- 3 Baths
- 125 sq m
For Rent
- 2 Rooms
- 2 Baths
- 1 Rooms
- 1 Baths
For Sale
- 3 Rooms
- 3 Baths
- 115 sq m














































