Quick Search:
Property ID:
Features
Description
RAY COOKE AUCTIONEERS are delighted to present this absolutely stunning, heavily extended three-bedroom mid-terraced home with a sunny south-facing rear garden to the market in Forest Hills, Rathcoole, Co. Dublin.
Forest Hills is a mature and settled development in the heart of Rathcoole Village, and the location truly could not be better. With every imaginable amenity on your doorstep, it is second to none. Within a stone’s throw, you will find local bars, shops, schools, Avoca, Rathcoole Park, a host of bus routes, and easy access to the N7 & M50 road networks.
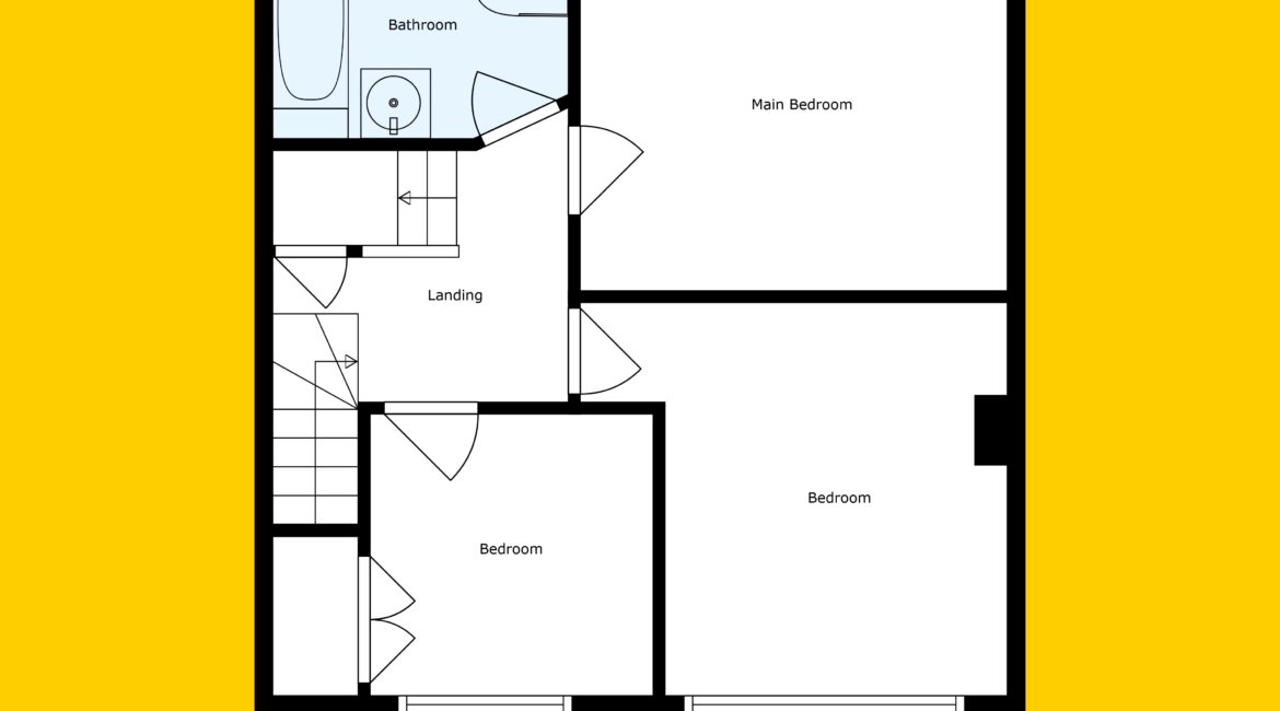
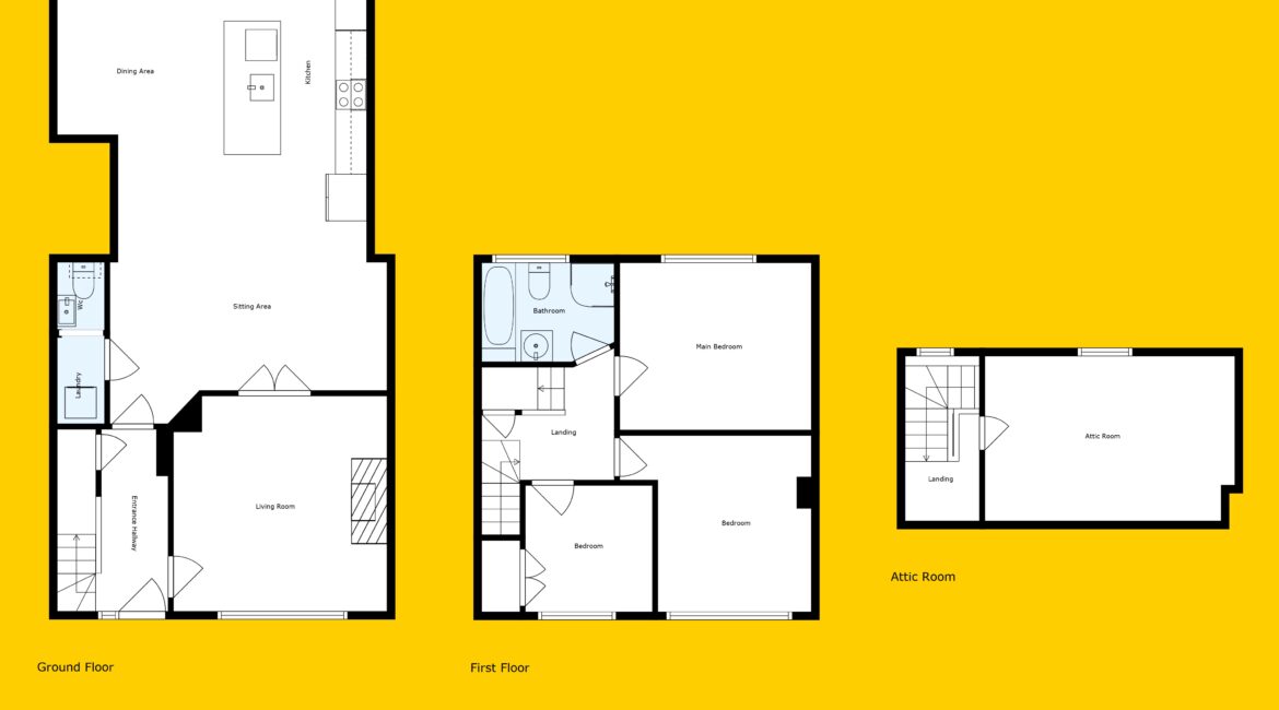
Bright, airy, and most spacious internal living accommodation of c. 147 sqm comprises an entrance hallway with understairs storage, a living room with stove fireplace, a beautifully extended fully fitted kitchen with open-plan dining area, a utility room, and a guest bathroom. On the first floor, there are three generous bedrooms and a main family bathroom, which comes fully tiled. The attic has also been converted and is currently used as a fourth bedroom, but could serve a variety of purposes depending on your needs.
To the rear of the property, you will find a well-kept, maintenance-free garden with a highly sought-after south-facing orientation, making it perfect for sunny summer evenings. There is also access to a rear car park, along with the added benefit of designated off-street parking to the front.
No. 124 comes to the market in turnkey condition throughout, having been meticulously maintained by its current owners, with no expense spared during upgrades.
Features
- 147 sqm
- C2 BER
- 3 bed 2 bath family home
- Mid-terraced property
- Heavily extended to the rear
- Attic conversion
- New gas combi-boiler
- Double glazed windows
- Top quality blinds
- Sunny south facing rear garden
- Ample parking to the rear
BER Details
BER: C2
Directions
Eircode: D24 FP65
Location

Phone:
Connect with us:
Phone:
Connect with us:
Rathcoole Office
Phone:
Connect with us:
Similar Properties
For Sale
- 3 Rooms
- 3 Baths
- 113 sq m
For Sale
- 397 sq m
For Sale
- 1 Rooms
- 2 Baths
- 44 sq m
For Sale
- 2 Rooms
- 3 Baths
- 92 sq m
For Sale
- 3 Rooms
- 2 Baths
- 81 sq m
For Sale
- 2 Rooms
- 2 Baths
- 80 sq m
For Sale
- 2 Rooms
- 1 Baths
- 63 sq m
For Rent
- 2 Rooms
- 2 Baths
For Sale
- 3 Rooms
- 3 Baths
- 98 sq m
For Rent
- 1 Rooms
- 1 Baths










































































