Quick Search:
Property ID:
Features
Description
Ray Cooke Auctioneers are delighted to introduce No. 13 Hazelcroft Gardens to the Northside property market. This bright and spacious 3-bedroom mid-terrace home is ideally tucked away in a quiet cul-de-sac, positioned within easy reach of every conceivable local amenity. Hazelcroft remains a sought-after residential pocket in Dublin 11.
The location is second to none, a fantastic selection of primary and secondary schools are within walking distance, Finglas Village is only minutes away, and Dublin City Centre is easily accessible. Charlestown Shopping Centre is within a 10-minute drive, and the area is well serviced by numerous bus routes. The M50 motorway and the Luas stop at Broombridge are also within very easy reach.
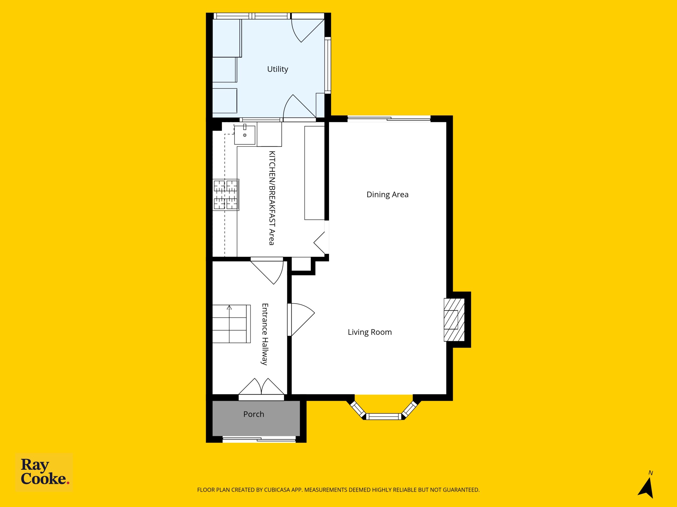
Internal living accommodation of c.85 sq.m comprises: entrance porch, entrance hallway, a bright living and dining room which flows into the kitchen, and from here leads into a rear extension providing additional living space. Upstairs hosts two spacious double bedrooms and one single bedroom, along with the family bathroom. The rear boasts a substantial large garden, offering superb potential for further development (subject to planning). To the front, the property is further enhanced by a gated driveway.
No. 13 comes to the market in good condition and offers excellent potential to place your own stamp on a superb family home. Early interest is expected from first time buyers, growing families and investors alike. Viewing is highly recommended. Contact Ray Cooke Auctioneers on 0861985247 or 01 5411455 to arrange a viewing.
Additional Features
• c. 85 sq.m
• Mid-terrace
• 3 bed / 1 bath
• BER D2
• Large rear garden – superb potential
• Rear extension
• Entrance porch and gated driveway
• Gas fired central heating
• Single glazed windows throughout
• Two double bedrooms (one with built-in wardrobes) + one single bedroom
• Family bathroom upstairs
• Fully fitted kitchen
• Mature and highly sought-after residential location
• Excellent primary and secondary schools nearby
• Frequent bus routes to City Centre close by
• Walking distance to Finglas Village
• M50 within easy reach
• Early viewing highly advised
Directions
Travelling from Finglas Village, take Finglas Road to Farnham Drive. Turn left onto Farnham Drive, then left onto St. Helena’s Road and left again onto Hazelcroft Road. Take the next left and No. 13 will be on your right-hand side.
Location

Phone:
Connect with us:
Phone:
Connect with us:
Similar Properties
For Sale
- 2 Rooms
- 2 Baths
- 76 sq m
For Sale
- 3 Rooms
- 2 Baths
- 85 sq m
For Sale
- 3 Rooms
- 2 Baths
- 85 sq m
For Rent
- 1 Rooms
- 1 Baths
For Sale
- 3 Rooms
- 1 Baths
- 76 sq m
For Sale
- 2 Rooms
- 2 Baths
- 70 sq m
For Rent
For Rent
- 2 Rooms
- 2 Baths
For Sale
- 3 Rooms
- 2 Baths
- 86 sq m












































