Quick Search:
Property ID:
Features
Description
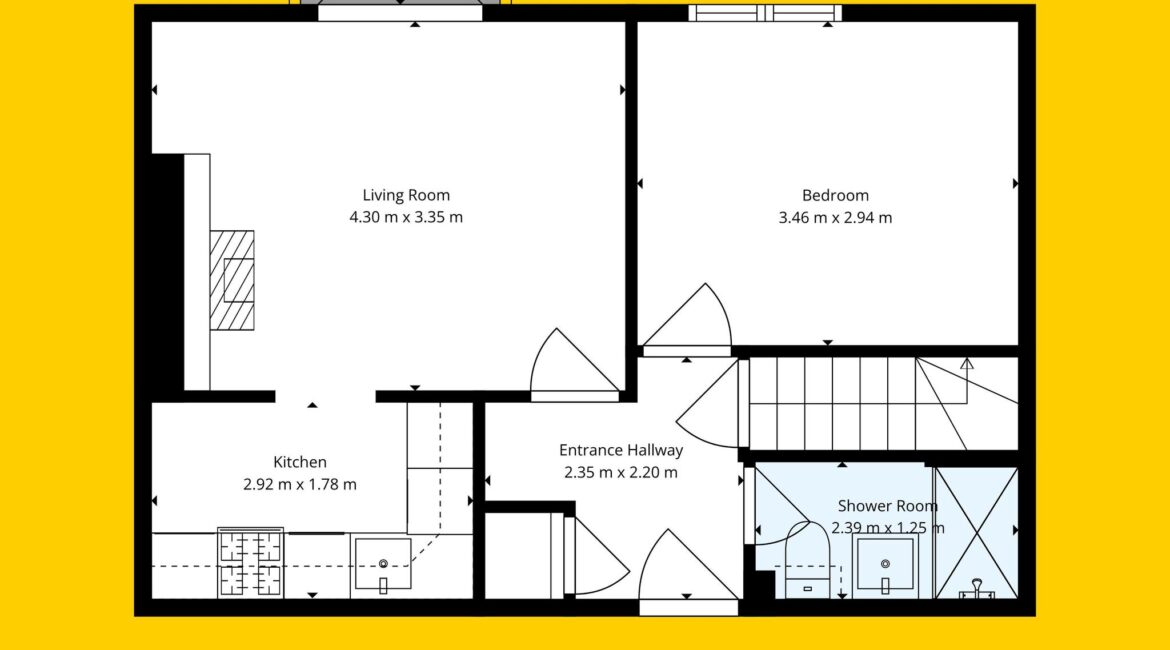
Ray Cooke Auctioneers are thrilled to present this fabulous 1 bed 1 bath 1st floor apartment with own door access to the market. This property is the perfect stepping stone onto the property ladder with its space, location and additional converted attic space acting as a 2nd bedroom or flexible living area. This property is set within the Old Mill building, and has been smartly converted to deliver contemporary accommodation conveniently positioned beside a host of local amenities. The property could not be better located just minutes’ drive from Leixlip’s main street. Leixlip also boasts excellent schools, spacious parks, great cafés and shops with strong transport links via train, bus, and the M4. The town offers plenty of sports clubs, walking trails along the River Liffey, and a warm, community-focused atmosphere -making it an attractive place to live for families and professionals alike.
Bright and spacious internal living accommodation of c. 50 sq m comprises of entrance hallway, kitchen/diner & cosy living room. One double bedroom and one main family bathroom. Upstairs also boasts a converted attic space which is perfect as a second bedroom/ office or living space. Double doors from the living room lead out to a North facing balcony looking out onto the communal gardens of the development.
No. 13 is presented in fantastic condition throughout and boasts a long list of additional features to include own door access, a private balcony, converted attic space for versatile use, no rent cap, communal gardens and a large car park with ample parking. Ideal for first time buyers wanting to get onto the property ladder or second time buyers hoping to size down. Early viewing is highly advised, call Ray Cooke Auctioneers on 086 102 5390 or 01 403 0720 for further information or to arrange viewing!!
Additional Features:
-1 BED/ 1 BATH
– 1st Floor apartment
– Own door access
– Converted attic space for versatile use
– c. 50 sq m
– BER D2
– Built in 1997
– Management fees c. €1,300 p/a
– Communal gardens
– Private Balcony
– No rental cap
– Large car park with ample parking
– Unique development in a splendid location
– Short stroll to Leixlip village, with shops, cafés, and essential amenities
– Close to Louisa Bridge train station and well-served by local bus routes
– Easy access to the M4, making commuting to Dublin simple and efficient
– Nearby parks, walking trails, and recreational facilities
Directions:
Eircode = W23 HK52. Driving from Leixlip Main street, take a turn onto Captain’s Hill and continue straight. Take the left turn before St. Charles Church and turn onto Distillery Lane. Go straight down the hill and No. 13 Ryewater will be on the right hand side.
Location

Phone:
Connect with us:
Phone:
Connect with us:
Similar Properties
For Sale
- 4 Rooms
- 3 Baths
- 117 sq m
For Rent
- 2 Rooms
- 1 Baths
For Sale
- 3 Rooms
- 3 Baths
- 107 sq m
For Rent
- 1 Rooms
- 1 Baths
For Rent
- 1 Rooms
- 1 Baths
For Rent
- 3 Rooms
- 3 Baths
- 1 Rooms
- 1 Baths
- 5 Rooms
- 4 Baths
For Sale
- 4 Rooms
- 4 Baths
- 282 sq m











































