Quick Search:

>
>
14 Mount Eustace Rise, Tyrrelstown, Dublin 15, D15 P0K8 (XL plot plus planning )
14 Mount Eustace Rise, Tyrrelstown, Dublin 15, D15 P0K8 (XL plot plus planning )
€425 000

Property ID:

 77030
Sale
BER Rating:
C1
Type:
Bedrooms:
3
Bathrooms:
3
Property size:
104 sq m
Features
Parking
Public Transport
Garden
Central Heating
Local Amenities
Description

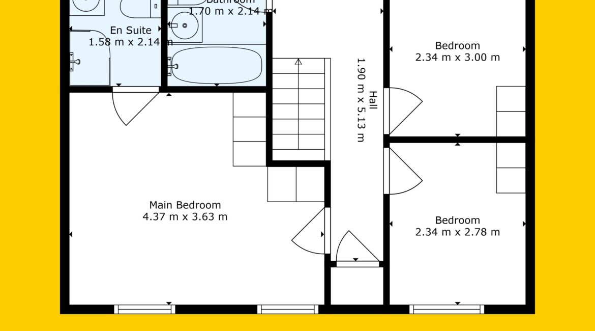
RAY COOKE AUCTIONEERS are delighted to introduce this fantastic 3 Bed, 3 Bath, Semi detached property with XL GARDEN & PLANNING PERMISSION for a double storey extension to that market in Mount Eustace Rise, Tyrellstown, Dublin 15. This ideally located family home offers unrivalled convenience, with every essential amenity just a stone’s throw away. Situated in the heart of Tyrrelstown, residents will enjoy immediate access to a wide range of shops and services at Tyrrelstown Village Shopping Centre. Blanchardstown Village and Blanchardstown Shopping Centre are also nearby, along with key employment hubs such as Dublin 15’s Corporate Parks and Connolly Hospital. For outdoor enthusiasts, both the Phoenix Park and Castleknock Village are within a 15-minute drive. The property lies within the catchment area of several excellent schools, including those within Tyrrelstown itself, making it particularly appealing for families. Tyrrelstown Park is just around the corner, offering playgrounds, a lake, running tracks, as well as cricket and football pitches — ideal for active lifestyles. Commuters will benefit from a frequent and reliable bus service, including a night link to Dublin City Centre. The M50 and M3 motorways are easily accessible, and Dublin Airport is also within close proximity, making this a superbly connected and strategically positioned address. Offering bright and spacious accommodation extending to approximately 96 sq.m, No. 14 is a beautifully presented home in turnkey condition throughout. The ground floor comprises an inviting entrance hallway, a generously proportioned living room, and a large fully fitted kitchen/dining area with access to a utility room and guest WC to the rear. Upstairs, there are three well-appointed double bedrooms, including a master bedroom with ensuite, along with a modern family bathroom. Additional features include off-street parking for two cars, a gated side entrance, and an exceptionally large, sunny rear garden offering with a garden room/gym and also the added benefit of full PLANNING PERMISSION for a two storey extension (Planning reference FW24A/0147E). based on location, condition and opportunity we know this will be extremely popular so please contact Ray Cooke Auctioneers to register your interest.

 

 

BER C1

c.96 Sqm

3 Bedrooms

3 Bath

Planning permission for double storey extension

Large Rear garden

Garden room/Gym

Turn key condition

Ensuite to master

Double driveway

Gas central heating

Close to amenities

Double glazed windows

Call today to arrange a viewing!

 

Directions

Heading towards Tyrresltown from the Mulhuddart direction, proceed along Church Road and head straight over the first two roundabouts. When you reach the third, take the first exit onto The Boulevard and then the 2nd exit at the next roundabout onto Park Blvd. take your immediate left turn onto Mount Eustace Green and then your 2nd left will be Mount Eustace Rise.

Location
Address: 14 Mount Eustace Rise, Tyrrelstown, Dublin 15, D15 P0K8, Ireland
Agent:
[agent_name]
Mobile Phone:
Landline Phone:
Email:

Phone:

Email:
Connect with us:

Terenure Office

Phone:

Email:
Connect with us:

Similar Properties

1

For Rent

Millrace Road, Pheonix Park, Dublin 15
€2 600
/ mo
FrontPic

For Sale

29 Huntstown Avenue, Huntstown, Dublin 15, D15 RF4E
€395 000
IMG_8659

For Rent

Lohunda Downs, Clonsilla, Dublin 15
€750
/ mo

For Rent

Lohunda Downs, Clonsilla, Dublin 15
€850
/ mo
27LCD15 (1 of 19)

For Sale

27 Linnetfields Park, Clonee, Dublin 15
€265 000
17 Annfield Lawn

For Sale

17 Annfield Lawn, Castleknock, Dublin 15
€350 000
image12 (2)

For Rent

The Discovery Building Ashtown Dublin 15
€2 339
/ mo
02

For Sale

5 Huntstown Road, Huntstown, Dublin 15
€380 000
DSC00135

For Sale

17 Park Boulevard, Tyrrellstown, Dublin 15
€275 000
1

For Sale

30 Annfield Drive Castleknock, Dublin 15
€375 000

14 Mount Eustace Rise, Tyrrelstown, Dublin 15, D15 P0K8 (XL plot plus planning )

Full Name: *
Email Address: *
Phone Number: *
Message: *
Privacy *

14 Mount Eustace Rise, Tyrrelstown, Dublin 15, D15 P0K8 (XL plot plus planning )

Property Type:
Full Name: *
Email: *
Phone: *
Address:
Additional Information:
Privacy *

14 Mount Eustace Rise, Tyrrelstown, Dublin 15, D15 P0K8 (XL plot plus planning )

Full Name: *
Email Address: *
Phone Number: *
Message: *
Privacy *