Quick Search:
Property ID:
Features
Description
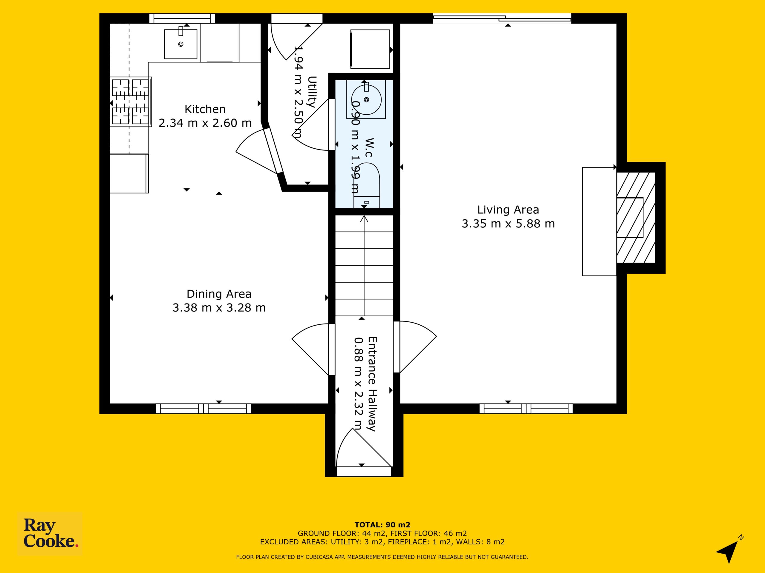
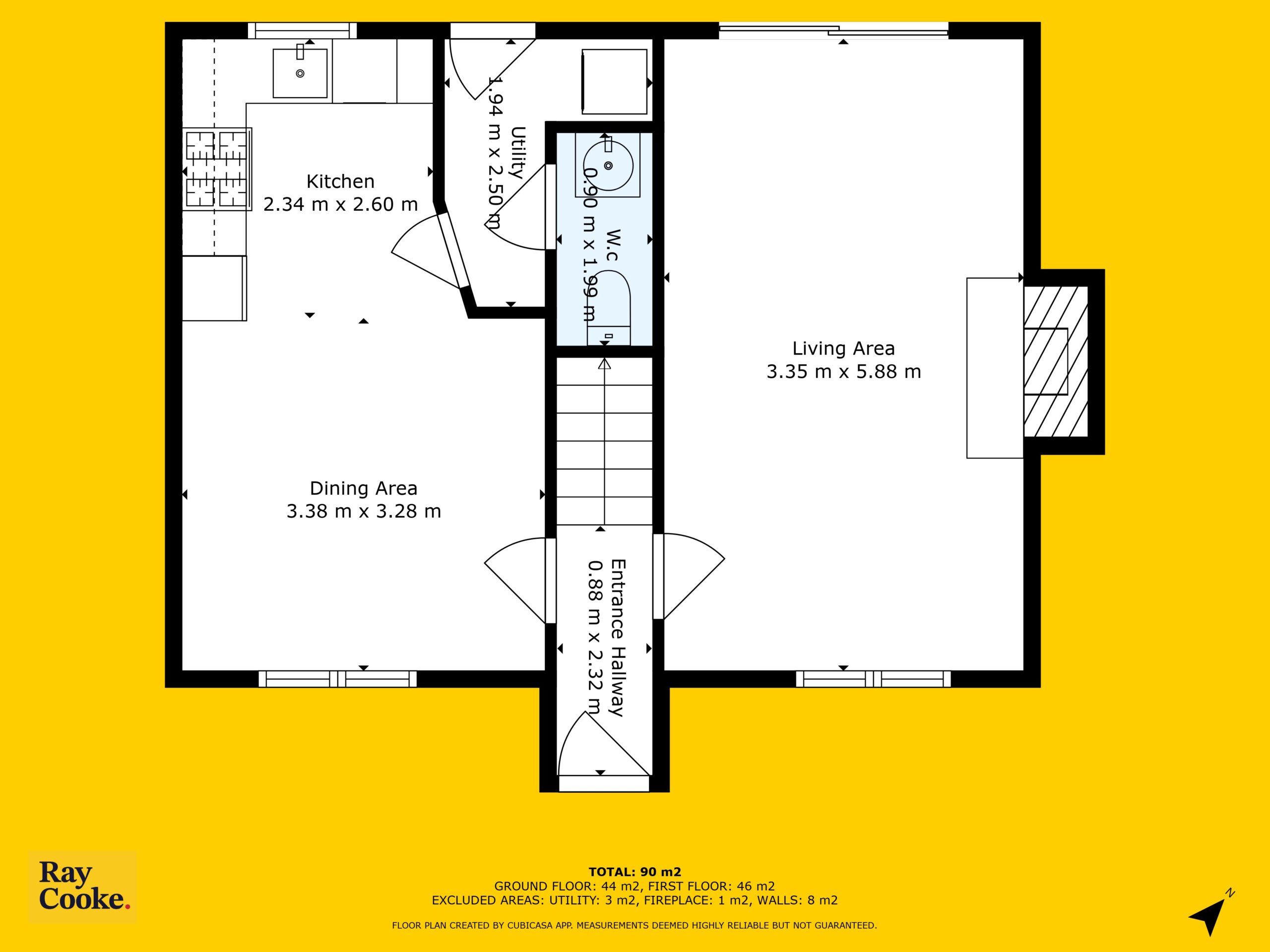
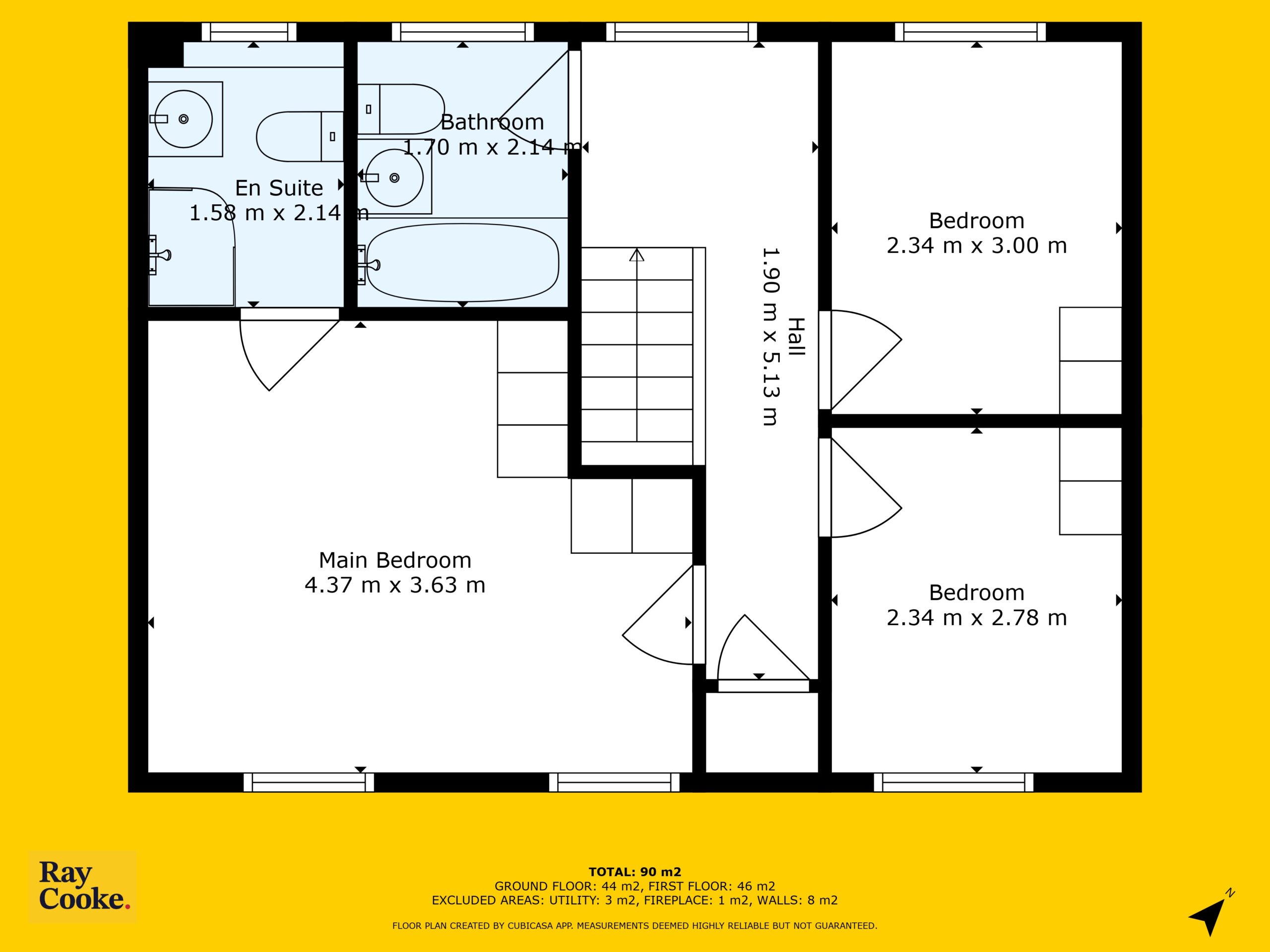
RAY COOKE AUCTIONEERS are delighted to introduce this fantastic 3 Bed, 3 Bath, Semi detached property with XL GARDEN & PLANNING PERMISSION for a double storey extension to that market in Mount Eustace Rise, Tyrellstown, Dublin 15. This ideally located family home offers unrivalled convenience, with every essential amenity just a stone’s throw away. Situated in the heart of Tyrrelstown, residents will enjoy immediate access to a wide range of shops and services at Tyrrelstown Village Shopping Centre. Blanchardstown Village and Blanchardstown Shopping Centre are also nearby, along with key employment hubs such as Dublin 15’s Corporate Parks and Connolly Hospital. For outdoor enthusiasts, both the Phoenix Park and Castleknock Village are within a 15-minute drive. The property lies within the catchment area of several excellent schools, including those within Tyrrelstown itself, making it particularly appealing for families. Tyrrelstown Park is just around the corner, offering playgrounds, a lake, running tracks, as well as cricket and football pitches — ideal for active lifestyles. Commuters will benefit from a frequent and reliable bus service, including a night link to Dublin City Centre. The M50 and M3 motorways are easily accessible, and Dublin Airport is also within close proximity, making this a superbly connected and strategically positioned address. Offering bright and spacious accommodation extending to approximately 96 sq.m, No. 14 is a beautifully presented home in turnkey condition throughout. The ground floor comprises an inviting entrance hallway, a generously proportioned living room, and a large fully fitted kitchen/dining area with access to a utility room and guest WC to the rear. Upstairs, there are three well-appointed double bedrooms, including a master bedroom with ensuite, along with a modern family bathroom. Additional features include off-street parking for two cars, a gated side entrance, and an exceptionally large, sunny rear garden offering with a garden room/gym and also the added benefit of full PLANNING PERMISSION for a two storey extension (Planning reference FW24A/0147E). based on location, condition and opportunity we know this will be extremely popular so please contact Ray Cooke Auctioneers to register your interest.
BER C1
c.96 Sqm
3 Bedrooms
3 Bath
Planning permission for double storey extension
Large Rear garden
Garden room/Gym
Turn key condition
Ensuite to master
Double driveway
Gas central heating
Close to amenities
Double glazed windows
Call today to arrange a viewing!
Directions
Heading towards Tyrresltown from the Mulhuddart direction, proceed along Church Road and head straight over the first two roundabouts. When you reach the third, take the first exit onto The Boulevard and then the 2nd exit at the next roundabout onto Park Blvd. take your immediate left turn onto Mount Eustace Green and then your 2nd left will be Mount Eustace Rise.
Location

Phone:
Connect with us:
Phone:
Connect with us:
Similar Properties
For Sale
- 2 Rooms
- 2 Baths
- 80 sq m
For Rent
- 2 Rooms
- 2 Baths
For Sale
- 2 Rooms
- 2 Baths
- 63 sq m
For Rent
- 3 Rooms
- 2 Baths
For Sale
- 3 Rooms
- 2 Baths
For Sale
- 4 Rooms
- 4 Baths
- 149 sq m
For Sale
- 4 Rooms
- 3 Baths
- 125 sq m
For Rent
- 2 Rooms
- 2 Baths
- 1 Rooms
- 1 Baths
For Sale
- 3 Rooms
- 3 Baths
- 115 sq m

































































