Quick Search:
Property ID:
Sale
Features
Description
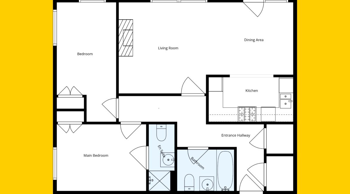
RAY COOKE AUCTIONEERS are delighted to present No. 16 Temple Court, Northwood, Santry, Dublin 9, a superb top-floor two-bedroom, two-bathroom apartment ideally positioned within this well-maintained and highly sought-after development.
This impressive property offers bright and spacious accommodation, enhanced by its elevated position and an extra-large south-facing balcony that enjoys excellent natural light throughout the day. The apartment is presented in good condition and will appeal to first-time buyers, downsizers and investors alike.
The accommodation comprises an inviting entrance hallway, a generous open-plan living and dining area with direct access to the impressive south-facing XL balcony, and a fully fitted kitchen with ample storage and counter space. There are two spacious double bedrooms, both with fitted wardrobes, with the master bedroom benefitting from an ensuite bathroom. A well-appointed main bathroom completes the layout.
Further benefits include gas-fired central heating, double-glazed windows, lift access and two designated underground parking spaces, a rare and highly valuable feature in this location.
Temple Court enjoys a prime position with a wealth of local amenities nearby including shops, cafes, schools and excellent transport links. The area is well serviced by public transport and offers easy access to major road networks, making commuting to Dublin City Centre and surrounding areas both quick and convenient.
This property combines comfort, space and convenience in an established residential setting. Early viewing is highly recommended. Contact Ray Cooke Auctioneers today on 0868323302 or 015411455to arrange a viewing.
Key Features:
• BER C2
• 78 sq.m.
• Top-floor apartment
• Two-bedroom / two-bathroom layout
• Spacious open-plan living and dining area
• Extra-large south-facing balcony
• Two designated underground parking spaces
• Fully fitted kitchen with ample storage
• Gas-fired central heating
• Double-glazed windows
• Lift access
• Excellent natural light throughout
• Well-maintained development
• Ideal for first-time buyers, downsizers and investors
Directions
Travelling from Dublin City Centre, follow signs for Santry and Northwood. Continue onto Ballymun Road and proceed towards Northwood Avenue. At the roundabouts, continue straight to remain on Northwood Avenue. After approximately 750 metres, turn left onto Temple Court, where No. 16 is located within the apartment block.
Location

Phone:
Connect with us:
Phone:
Connect with us:
Similar Properties
For Sale
- 3 Rooms
- 1 Baths
- 87 sq m
For Sale
- 2 Rooms
- 1 Baths
- 48 sq m
For Sale
- 1 Rooms
- 1 Baths
- 44 sq m
For Sale
- 4 Rooms
- 1 Baths
- 120 sq m
For Sale
- 2 Rooms
- 2 Baths
- 66 sq m
For Sale
- 3 Rooms
- 2 Baths
- 80 sq m
For Sale
- 3 Rooms
- 1 Baths
- 90 sq m
For Sale
- 3 Rooms
- 1 Baths
- 84 sq m
For Sale
- 1 Rooms
- 1 Baths
- 43 sq m
















































