Quick Search:
Property ID:
Features
Description
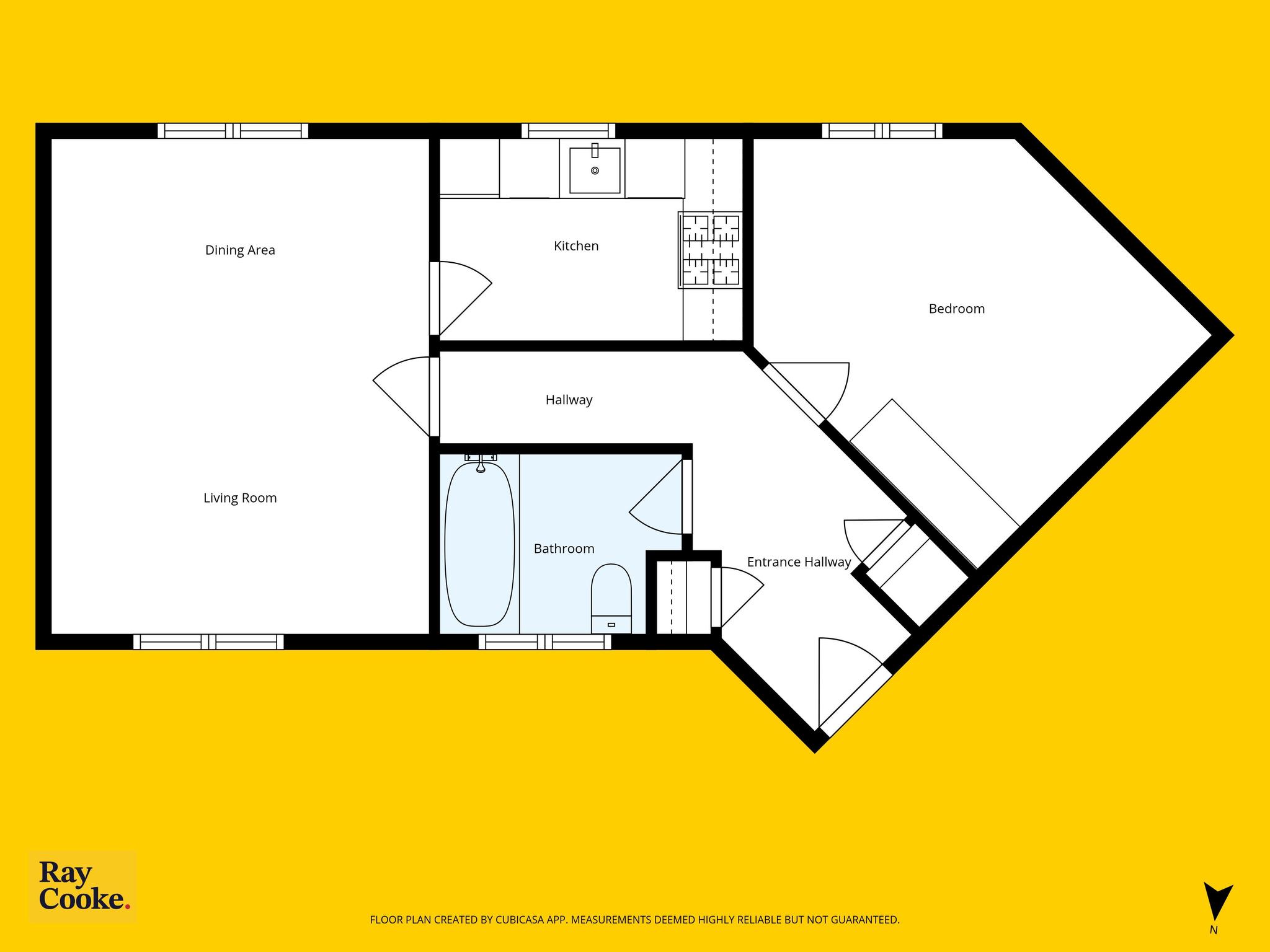
RAY COOKE AUCTIONEERS proudly present this fantastic one bedroom, one bathroom ground floor apartment, ideally located in a well-developed residential area. Ballentree Avenue is located in the established development of Tyrrelstown, approximately 10 miles from Dublin City Centre, just south of the former Hollystown Golf Course and within 2 miles of the Blanchardstown Centre. The area offers excellent connectivity, with easy access to the M50, N2/N3 Link Road, and both the N2 and N3, while Dublin Airport is just a 15-minute drive away. Residents benefit from close proximity to a wide range of amenities, including the extensive retail, dining, and entertainment options at Blanchardstown Centre, as well as being within walking distance of Tyrrelstown Town Centre, which features retailers such as SuperValu, a new Lidl store, Paddy Power, Salon 22 Hairdressers, Hickeys Pharmacy, various restaurants, a local crèche, Educate Together Primary School, a medical centre, and a bus terminus providing regular public transport services.This bright and spacious home extends to approximately 55 sq. m and is presented in fantastic condition throughout. The well-appointed accommodation comprises an entrance hallway, a family bathroom, main double bedroom, a fully fitted kitchen, and a generous open-plan living/dining area. No. 17 represents a superb opportunity for first-time buyers, investors, or those looking to downsize to a mature and well-established residential location. Notable features include gas-fired central heating, built-in wardrobes, access to communal gardens, designated parking, and an attractive open-plan living space.Early viewing is highly advised, call Ray Cooke Auctioneers on 086 8225318 or 01 5541699 for further information or to arrange viewing!!
Features:
– c.55 sq.m
– Ground floor apartment
– BER C1
– Management fee c.1600 p/a
– Designated parking
– Gas fired central heating
– Access to communal gardens
– Open plan living
– Close proximity to Dublin airport & city centre
– Easy access to public transport & all major routes
– Primary and secondary schools in close proximity
– Blanchardstown shopping centre 10 minutes’ away
– Ideal for first time buyers, downsizers and investors
– Viewing highly advised!
Directions: Head south on the N3 toward Dublin. Take the exit for Blanchardstown / Tyrrelstown / N2/N3 Link Road. Continue on the N2/N3 Link Road heading west/northwest toward Tyrrelstown. Take the exit for Cruiserath / Tyrrelstown and follow the local roads into the Tyrrelstown area. Continue along these local roads toward Tyrrelstown Road (R121) into the Tyrrelstown Town Centre roundabout. At the roundabout, take the exit into the Ballentree Avenue / Ballentree estate area (local estate roads). Follow internal estate roads to Ballentree Avenue, then locate No. 17 Ballentree Avenue.
Location
Similar Properties
For Sale
- 2 Rooms
- 2 Baths
- 63 sq m
For Rent
- 2 Rooms
- 2 Baths
For Rent
- 2 Rooms
- 1 Baths
For Rent
- 3 Rooms
- 1 Baths
- 2 Rooms
- 2 Baths
- 3 Rooms
- 3 Baths
For Sale
- 3 Rooms
- 3 Baths
- 110 sq m
For Rent
- 1 Rooms
- 1 Baths
For Rent
- 3 Rooms
- 3 Baths
For Sale
- 3 Rooms
- 2 Baths
- 116 sq m


































