Quick Search:
Property ID:
Features
Description
RAY COOKE AUCTIONEERS proudly present this fantastic two bedroom, two bathroom apartment, ideally located in a quiet residential area. Park Boulevard is located in the established development of Tyrrelstown, approximately 10 miles from Dublin City Centre, just south of the former Hollystown Golf Course and within 2 miles of the Blanchardstown Centre. The area offers excellent connectivity, with easy access to the M50, N2/N3 Link Road, and both the N2 and N3, while Dublin Airport is just a 15-minute drive away. Residents benefit from close proximity to a wide range of amenities, including the extensive retail, dining, and entertainment options at Blanchardstown Centre, as well as being within walking distance of Tyrrelstown Town Centre, which features retailers such as SuperValu, a new Lidl store, Paddy Power, Salon 22 Hairdressers, Hickeys Pharmacy, various restaurants, a local crèche, Educate Together Primary School, a medical centre, and a bus terminus providing regular public transport services.
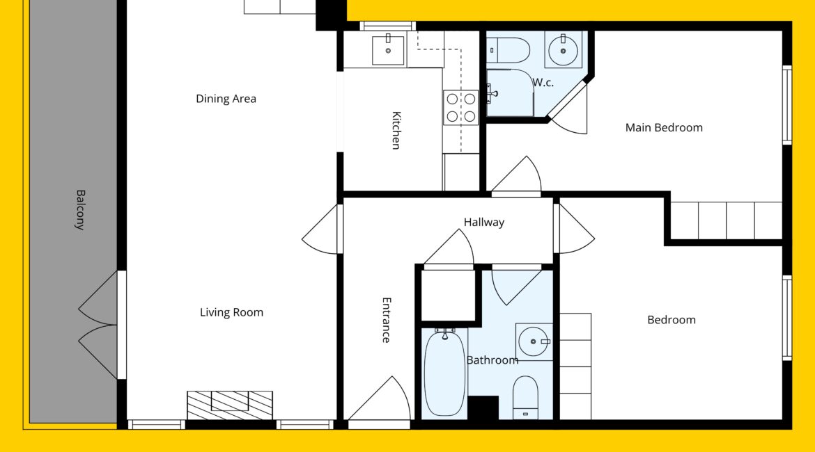
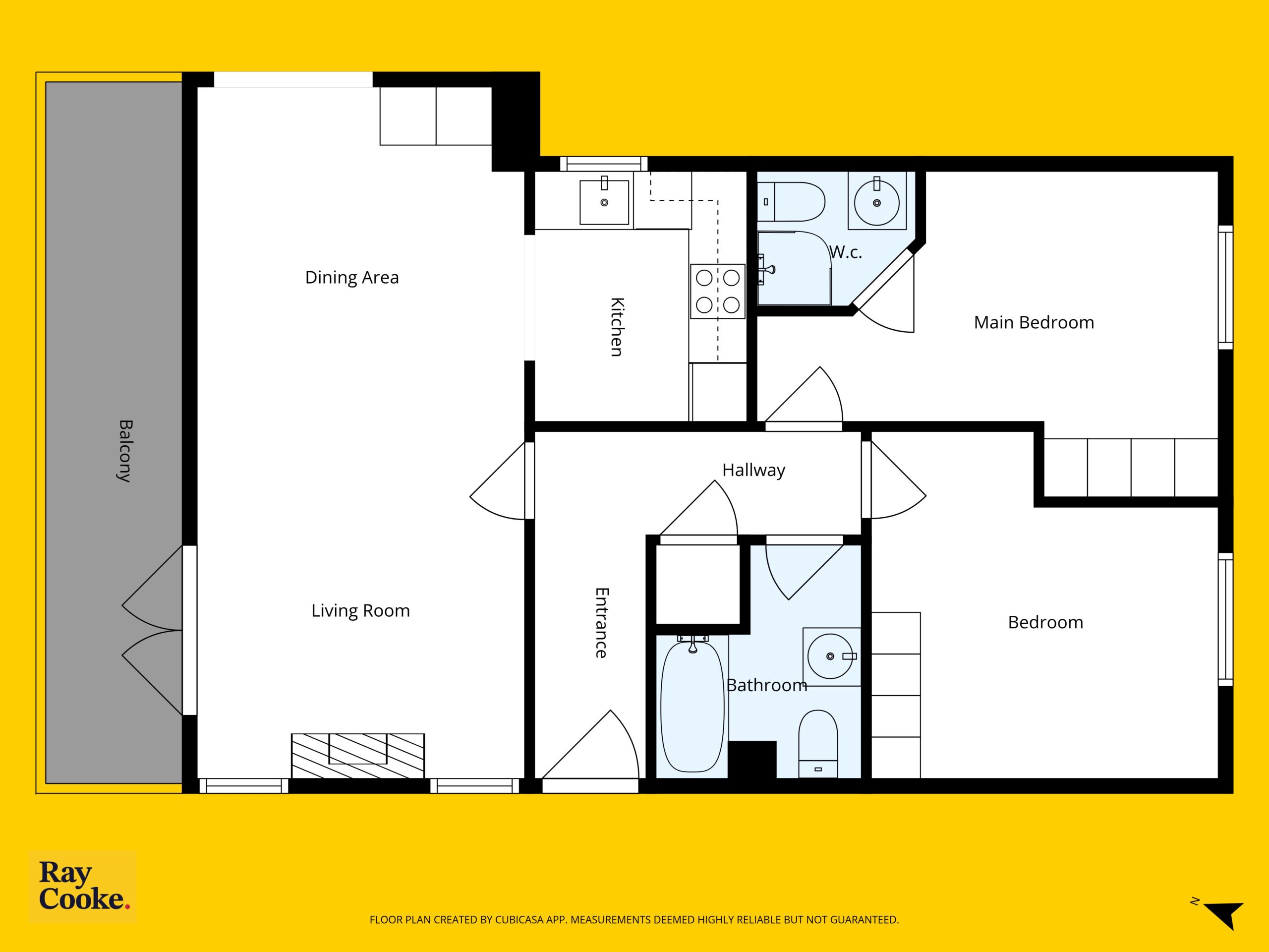
This bright and spacious home, measuring 76 sq. m, is presented in excellent condition throughout and offers well-appointed living accommodation including an entrance hallway, a fully fitted kitchen, an open plan living/dining room and sliding doors leading to a private balcony overlooking the park. No. 17 comes to the market as a superb opportunity for first-time buyers or movers looking to down scale to a quiet residential location. Many features include, gas central heating system, built in wardrobes, private balcony overlooking a park, open plan living space with electric fireplace, parking to the rear and spacious two double bedrooms (one with en-suite).
Early viewing is highly advised, call Ray Cooke Auctioneers for further information or to arrange viewing!!
Features;
– 76 sq.m
– 2 bedroom apartment
– BER C1
– Management fee c.1100 p/a
– Designated parking
– Gas fired central heating
– Private balcony overlooking a park
– Close proximity to Dublin airport & city centre
– Easy access to public transport & all major routes
– Primary and secondary schools in close proximity
– Blanchardstown shopping centre 10 minutes’ away
– Ideal for first time buyers, downsizers and investors
– Viewing highly advised!
Directions: From the N3, take the exit toward Blanchardstown / Tyrrelstown / N2/N3 Link Road. Join the N2/N3 Link Road heading west/northwest toward Tyrrelstown. Continue along the link road and take the exit for Cruiserath / Tyrrelstown. Follow local roads through Cruiserath, then head toward Tyrrelstown Road / R121. On entering Tyrrelstown, proceed to the Tyrrelstown Town Centre / roundabout. From the roundabout, take the exit into Park Boulevard estate, then follow the internal roads to 17 Park Boulevard.
Location
Similar Properties
For Sale
- 2 Rooms
- 2 Baths
- 63 sq m
For Rent
- 3 Rooms
- 2 Baths
For Sale
- 3 Rooms
- 2 Baths
For Sale
- 4 Rooms
- 4 Baths
- 149 sq m
For Sale
- 4 Rooms
- 3 Baths
- 125 sq m
For Rent
- 2 Rooms
- 2 Baths
For Rent
- 1 Rooms
- 1 Baths
For Sale
- 3 Rooms
- 3 Baths
- 115 sq m
For Sale
- 2 Rooms
- 1 Baths
- 71 sq m
For Rent
- 2 Rooms
- 2 Baths




































