Quick Search:
Property ID:
Sale
Features
Description
RAY COOKE AUCTIONEERS are proud to introduce this superb two-bedroom, own-door apartment to the market perfectly positioned with an excellent range of amenities right on your doorstep and just a short journey from Fonthill Retail Park, Liffey Valley Shopping Centre and Lucan Village. The nearby M50 and N4 road networks ensure quick and easy commuting throughout Dublin and beyond.
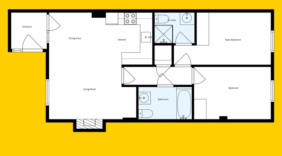
Bright and generously proportioned internal accommodation of c. 62 sq. m comprises an entrance hallway, kitchen/dining area, spacious living area, two double bedrooms (one with ensuite), a main family bathroom. Externally to the rear you will find private communal gardens for all residents to enjoy.
No. 19 is presented in great condition throughout and benefits from an array of attractive features including OWN DOOR access, C2 BER rating, gas central heating, a fully fitted kitchen, communal parking, and high-quality flooring throughout. This property will appeal to both first-time buyers and investors alike. Early viewing is strongly recommended – call Ray Cooke Auctioneers on 01 4030720 for further details or to arrange a viewing!
Features:
– c. 62 sq.m
– BER C2
– 2 BED/ 2 BATH
– Own door access
– Peaceful development
– Management fee c. €1500 p/a
– Bright & spacious open-plan living space
– Fully fitted kitchen
– Main bathroom and ensuite
– Communal parking
– Gas fired central heating
– Wide range of amenities on your doorstep
– Excellent access to M50 & N4 road networks
– Primary and secondary schools within easy reach
– Ideal for first-time buyers and investors
– Viewing highly advised!
Directions:
Eircode = K78 XE86
Location

Phone:
Connect with us:
Phone:
Connect with us:
Mobhi Road Office
Phone:
Connect with us:
Similar Properties
For Rent
- 1 Rooms
- 1 Baths
For Rent
- 4 Rooms
- 1 Baths
For Sale
- 3 Rooms
- 3 Baths
- 113 sq m
For Sale
- 397 sq m
For Sale
- 1 Rooms
- 2 Baths
- 44 sq m
For Sale
- 2 Rooms
- 3 Baths
- 92 sq m
For Sale
- 3 Rooms
- 2 Baths
- 81 sq m
For Sale
- 2 Rooms
- 2 Baths
- 80 sq m
For Sale
- 2 Rooms
- 1 Baths
- 63 sq m
For Rent
- 2 Rooms
- 2 Baths




































