Quick Search:
Property ID:
Description
RAY COOKE AUCTIONEERS are delighted to present this wonderful four-bedroom semi-detached property with a highly sought after south facing rear garden to the market in the exclusive Rathmill Development.
The Rathmill Development is located in the heart of Rathcoole and has every amenity imaginable on its doorstep. Within a stone’s throw you will find local bars, shops, schools, Avoca and Rathcoole Park along with a host of bus routes, the N7 and M50 road networks, the location is truly next to none.
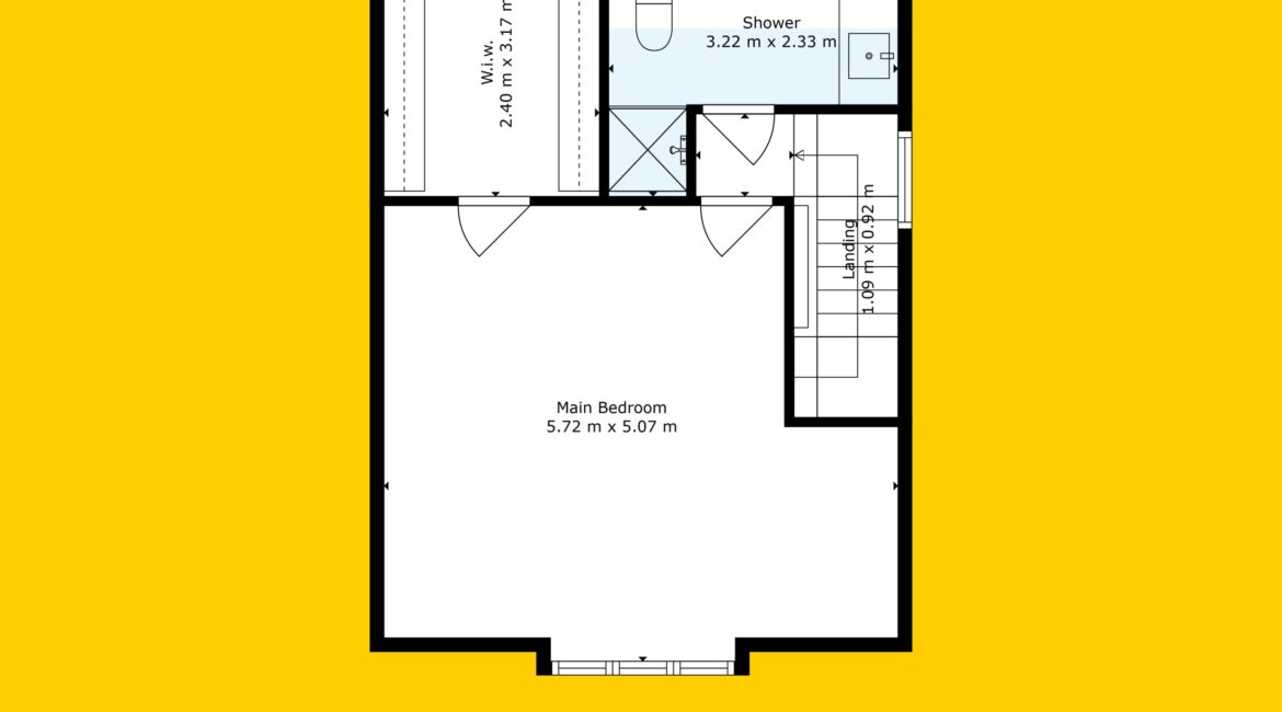
Elegant and luxurious living accommodation of c. 171 sqm split over three levels consists of; entrance hallway, guest bathroom, large living room and fully fitted kitchen/dining area to the rear with a separate utility/washroom. On the first floor you will find three generous bedrooms with built in wardrobes (one master ensuite) and main family bathroom. On the top floor you will find a further master bedroom with walk in wardrobe & bathroom with ample amounts of storage. Externally to the rear of the property you will find a fully enclosed superbly maintained garden which benefits from the lowest of maintenance with a wooden shed that is great for additional storage and a sunny south facing orientation making it perfect for relaxing on them long summer evenings.
The front offers ample off-street parking on a paved driveway tucked away within a peaceful cul de sac with low passing traffic. No.2 comes to the market in no less than turnkey condition throughout having been meticulously maintained by its current owners with no expense spared when modifying or upgrading and boats an endless list of additional features including four generous bedrooms, four bathrooms, gas fired central heating and top-quality fixtures & fittings to name a few!
Early viewing is highly advised to appreciate the sheer quality on offer behind the door of this fantastic family home. Contact Ray Cooke Auctioneers today.
Additional Features:
c 171 sqm
BER A3
4 bed 4 bath
Semi-detached home
Low maintenance rear garden
Wooden shed for storage
Sunny south facing orientation
Private and fully enclosed
Not over looked to the back
Extremely spacious living space
Immaculate condition throughout
Exclusive development
Gas fired central heating
Top quality fixtures and fittings
Finished to the highest possible standards
Fully fitted kitchen
Open plan kitchen/family diner
Separate utility room
Large living room
Split over 3 floors
Four generous bedrooms
Built in wardrobes
Walk in wardrobe
Four bathrooms
Top quality blinds
Ample parking to the front
Paved driveway
Tucked away on peaceful cul de sac
Heart of Rathcoole Village
Walking distance to all local amenities
Viewing highly advised
Location Location Location
Directions – D24EE6T
Location

Phone:
Connect with us:
Phone:
Connect with us:
Similar Properties
For Rent
For Rent
For Rent
For Sale
- 3 Rooms
- 2 Baths
- 113 sq m
For Sale
- 3 Rooms
- 3 Baths
- 95 sq m
For Rent
- 1 Rooms
- 1 Baths
For Rent
- 3 Rooms
- 1 Baths
For Rent
- 2 Rooms
- 2 Baths
For Sale
- 2 Rooms
- 2 Baths

















































































