Quick Search:
Property ID:
Sale
Features
Description
*** 2 X 3 Bed Houses With Full Planning Permission for 3 x 3 Bed Houses ***
RAY COOKE AUCTIONEERS take great pleasure in introducing No. 6 and 7 Old Church Park to the market. Located just off the New Nangor Road both Clondalkin Village and Liffey Valley Shopping Centre are within easy reach and local shops, schools and bus routes are all within walking distance.
No. 6 internal living accommodation of c.111 sq m comprises of entrance hallway, guest wc, open plan kitchen/living with dining area, utility, 3 bedrooms and main family bathroom.
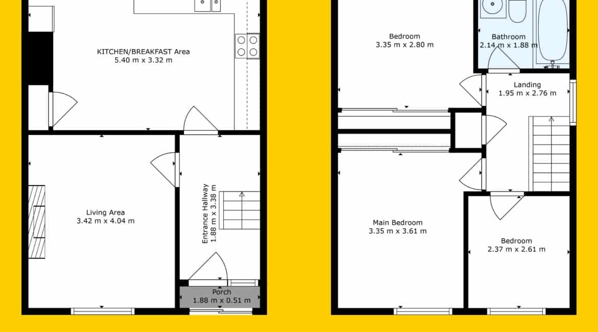
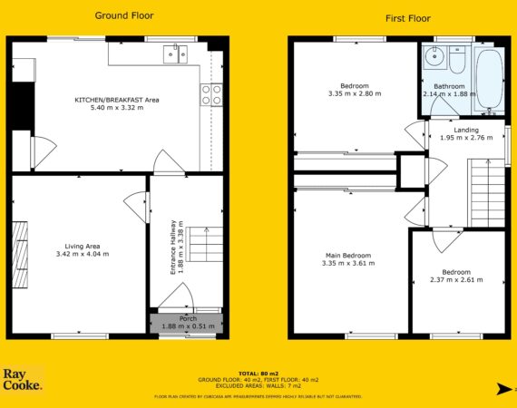
No. 7 internal living accommodation of c.80 sq m comprises of entrance hallway, lounge, fully fitted kitchen with dining area, 3 bedrooms and main family bathroom.
Planning permission has recently lapsed can be easily obtained by the new owner. Planning Reference – SD07A/0750 Call Ray Cooke Auctioneers today for further information or to arrange a viewing. *** Properties Or Site Will Not Be Sold Separately
*** ADDITIONAL FEATURES;
– c. 191sq.m
– Planning Reference
– SD07A/0750
– Sold with vacant possession of both properties
– 2 X 3 Bed Houses With Full Planning Permission for 3 x 3 Bed Houses
– Super investment
– 2 houses in great condition
– Gas fired central heating
– Huge potential
– Brilliant location
– Quiet cul de sac
– A true gem not to be missed
Location

Phone:
Connect with us:
Phone:
Connect with us:
Similar Properties
For Sale
- 3 Rooms
- 1 Baths
- 77 sq m
For Rent
- 2 Rooms
- 1 Baths
For Sale
- 3 Rooms
- 2 Baths
For Rent
- 2 Rooms
- 1 Baths
For Sale
- 3 Rooms
- 1 Baths
- 93 sq m
For Rent
- 3 Rooms
- 1 Baths
For Sale
- 2 Rooms
- 2 Baths
For Rent
- 2 Rooms
- 1 Baths
For Sale
- 3 Rooms
- 1 Baths
For Rent
- 1 Rooms
- 1 Baths








































































