Quick Search:
Property ID:
Sale
Features
Description
RAY COOKE AUCTIONEERS are delighted to present to the market this wonderful 4-bedroom mid-terrace family home with a sunny south facing rear garden in the exclusive Peyton Development, Rathcoole. The Peyton Development is located in the heart of Rathcoole Village and has every conceivable amenity on your doorstep including local bars, shops, schools, Avoca and Rathcoole Park. Transport wise, there is a host of local bus routes and easy access to the N7 and M50 road networks.
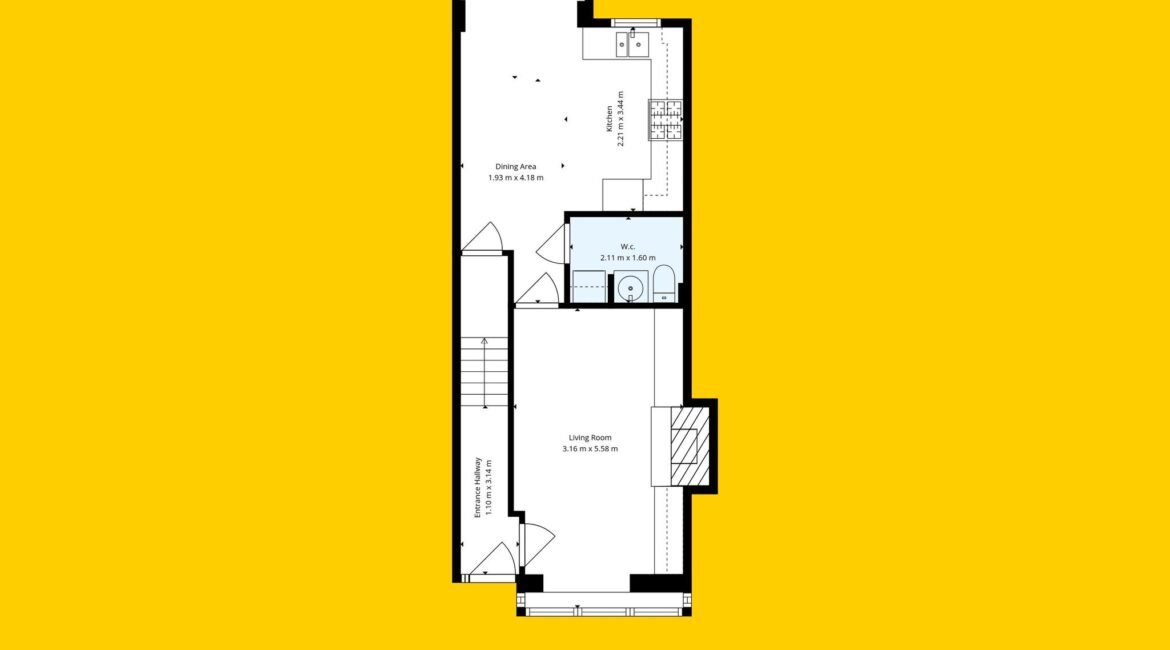
Bright, airy and most spacious internal living accommodation of c 158 sqm can be found spread over three floors in this immaculately presented property, and in brief comprises of entrance hallway, large living room with bay window, fully fitted kitchen/dining area and separate utility/washroom. On the first floor you will find 3 spacious bedrooms (one master with ensuite with walk in wardrobe) all with built in wardrobes and the main family bathroom. On the top floor you have another master bedroom with ensuite bathroom and separate office room. To the rear of the property you have a beautifully maintained garden of the lowest maintenance that comes fully private & enclosed with a sunny south facing orientation making it perfect for relaxing on them long sunny summer evenings whilst the front provides ample parking.
No.20 comes to the market in truly turn key condition throughout having been lovingly maintained by its current owners with no expense spared when upgrading in recent years and further benefits from gas fired central heating, shared side entrance, internal vacuum system, top quality flooring and top-quality fixtures and fittings throughout. We expect this property to be extremely popular with first time buyers looking to get onto the property ladder or any growing family looking to settle roots in one of Rathcoole’s most sought-after developments.
Viewing is advised to not miss out on this fantastic home. Call Ray Cooke Auctioneers for more information.
Additional Features;
– B1 Energy Rating
– c 158 sqm
– 4 bed / 4 bath
– Mid-terraced family home
– Shared side entrance
– Turn-key condition throughout
– No expense spared by current owners when upgrading
– Tastefully decorated from top to bottom
– Beautiful rear garden
– Private & fully enclosed
– Lowest of maintenance
– Sunny south facing orientation
– Perfect for relaxing on sunny summer evenings
– Entrance hall
– Large living room
– Fully fitted kitchen
– Separate utility/washroom
– Four generous bedrooms
– Two master ensuites
– Fitted wardrobes
– Walk in wardrobe
– Main family bathroom
– Top quality fittings
– Top quality flooring
– Top quality blinds
– Internal vacuum system
– Double glazed windows
– Exclusive development
– Ample parking
– Gas fired central heating
– Centralised vacuum system
– Heart of Rathcoole Village
– Walking distance to all local amenities
– Viewing highly advised
Directions from Avoca, drive straight into Rathcoole Village and turn left before The Barnaufea House. Proceed ahead passing Lisheen House Nursing Home on your left-hand side and at the next roundabout turn right into Peyton. When in Peyton follow the road around to the left where number 20 Peyton Drive will be located on the left-hand side.
Location

Phone:
Connect with us:
Phone:
Connect with us:
Similar Properties
For Sale
- 2 Rooms
- 2 Baths
- 65 sq m
For Sale
- 4 Rooms
- 4 Baths
- 165 sq m
For Sale
- 2 Rooms
- 2 Baths
- 62 sq m
For Sale
- 3 Rooms
- 2 Baths
- 93 sq m
For Sale
- 2 Rooms
- 1 Baths
- 62 sq m
For Sale
- 3 Rooms
- 3 Baths
- 123 sq m
For Sale
- 1 Rooms
- 1 Baths
- 42 sq m
For Rent
- 3 Rooms
- 2 Baths
For Rent
- 2 Rooms
- 2 Baths























































































