Quick Search:
Property ID:
Sale
Features
Description
RAY COOKE AUCTIONEERS are delighted to introduce this fantastic four -bedroom semi-detached family home ideally located overlooking mature green area in the ever popular and highly sought-after estate of Woodlawn in Santry, Dublin 17.
No. 25 is ideally located in one of Santry’s most established and highly sought-after estates, with an excellent range of amenities right on your doorstep. Beaumont Hospital is within walking distance, while Omni Park Shopping Centre, Northside Shopping Centre, and Artane Castle Shopping Centre are all close by. The property also enjoys easy access to the main Swords Road, DCU, the M1 and M50 motorways, and Dublin Airport. Dublin city centre is well served by numerous bus routes operating directly outside Woodlawn. The area benefits from a wide choice of excellent primary and secondary schools, Football and GAA clubs, and an excellent variety of nearby bars and restaurants, making it a superbly connected and family-friendly location.
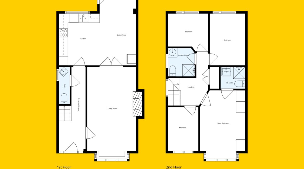
Bright and spacious living accommodation of c. 100 sqm comprises of entrance hallway with guest WC, large living room with feature fireplace, open plan kitchen/dining area with tiled flooring and access to south facing rear garden. Upstairs host 4 generous bedrooms with built in wardrobes, master with fully tiled ensuite and a fully tiled family bathroom. This fantastic property comes to the market in excellent condition throughout and benefits gas fired central heating, quality flooring throughout, front driveway with gated side entrance and a private low maintenance south facing rear garden with large block built shed which would suit a variety of uses. The properties new owner will have the opportunity to lay down roots in one of Dublin 9s most sought after and family-oriented estates. An opportunity not to be missed: call Ray Cooke Auctioneers on 086 0469458 or 01 6995050 today for further information or to arrange viewing!!
Additional Features:
c.100 sqm
BER C3
4 bed 3 bath
Semi Detached family home
Attics easily convertible
Light filled interior
Gas fired central heating
Front Driveway
Private rear garden with gated side entrance
Overlooking mature green area
South facing orientation
Generous sized bedrooms
Double glazed windows
Highly sought-after estate
Excellent primary and secondary schools in the area
10 minutes’ drive to Dublin airport
Only 20 minutes from the City Centre
Ideal for first time buyers and growing families
Early viewing highly advised!!
Location

Phone:
Connect with us:
Phone:
Connect with us:
Mobhi Road Office
Phone:
Connect with us:
Similar Properties
For Sale
- 3 Rooms
- 1 Baths
- 81 sq m
For Sale
- 3 Rooms
- 2 Baths
- 143 sq m
For Sale
- 3 Rooms
- 1 Baths
- 96 sq m
For Sale
- 4 Rooms
- 3 Baths
- 100 sq m
For Sale
- 2 Rooms
- 1 Baths
- 68 sq m
For Sale
- 2 Rooms
- 2 Baths
- 77 sq m
- 3 Rooms
- 2 Baths
For Sale
- 3 Rooms
- 2 Baths
- 75 sq m
- 3 Rooms
- 1 Baths


























































