Quick Search:
Property ID:
Sale
Features
Description
RAY COOKE AUCTIONEERS welcome this stunning 5-bedroom semi-detached home, presented in immaculate, true turn-key condition from top to bottom!
From the moment you arrive, the ample front parking and attractive façade set the tone for what’s inside.
Step through the door and you’ll find a beautifully maintained home offering generous living space, home office, downstairs bedroom and a superb open-plan kitchen/ dining area- thoughtfully designed with ample storage, plenty of light and seamlessly connected to the sunny south-facing rear garden.
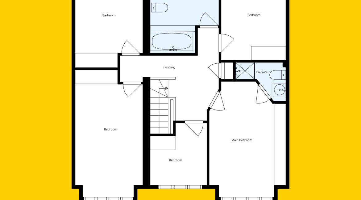
Upstairs, the sense of space continues with four well-proportioned bedrooms, including a principal suite with its own ensuite, while the remaining bedrooms offer flexibility for growing families & guests. Each room is presented in immaculate, move-in-ready condition, complemented by a large, stylish family bathroom.
Location is everything, and this home truly delivers. Sallins is a thriving, family-friendly community with excellent schools, shops, cafes and amenities on your doorstep. Plus, Sallins Train Station is just minutes away, offering a fantastic commuter link to Dublin- making your daily journey easier than ever!
Additional features:
- 207 sq.m
- BER B3
- 5 bed/ 3 bath
- Semi-detached family home
- Immaculate condition throughout
- Heavily extended to rear and side
- Gas central heating
- Ample front parking
- Sunny south facing rear garden
- Perfect for growing families
- Ideally located minutes from Sallins Train Station and a variety of amenities!
Directions:
From Naas, take the R407 towards Sallins. Continue straight through Sallins village. Cross the Grand Canal and continue onto Sallins Bridge on the right hand side.
Location

Phone:
Connect with us:
Phone:
Connect with us:
Rathcoole Office
Phone:


















































































