Quick Search:
Property ID:
Features
Description
RAYCOOKE AUCTIONEERS are delighted to present this impressively proportioned 2/3 bedroom semi-detached property to the market in O’Hogan Road, Ballyfermot facing the Markievicz Park. O’Hogan Road is tucked away in a quiet location just off of Ballyfermot Road and is well serviced with a range of excellent facilities including a choice of well esteemed primary and secondary schools along with Ballyfermot College of Further Education, a variety of sports and leisure facilities and local shops and convenience stores. On a transport note you will find excellent public transport links in and out of the city centre, the Chapelizod bypass and M50 motorway are both very easily accessed and Liffey Valley Shopping Centre is within arm’s reach
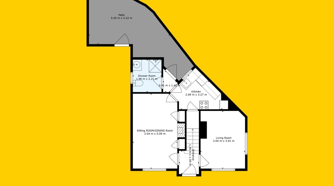
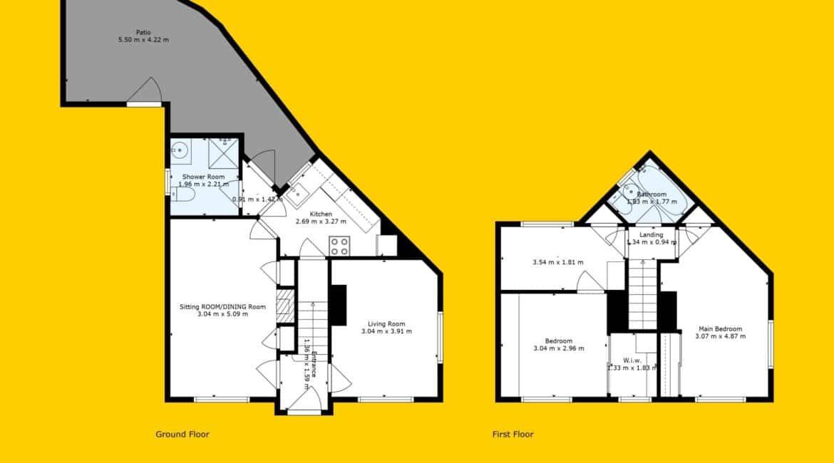
Bright and tastefully decorated internal accommodation of c. 85 sq.m consists of entrance hall, sitting room, living room, guest wc and kitchen. Upstairs you will find two double bedrooms, with one divided into a 3rd bedroom and family bathroom. Externally you will find a rear enclosed patio with side access to the front which benefits from a driveway and a well maintained front garden.
No. 29 comes to the market ready for its new owner to put their own stamp on it as it is eligible for the VACANT PROPERTY GRANT. Call Ray Cooke Auctioneers on 01 4030720 or 086 102 5390 to register your early interest
Features;
– ELIGIBLE FOR VACANT PROPERTY GRANT
– BER E2
– c. 85 Sqm
– 2/3 Bed
– Ample off street parking
– Gas fired central heating
– No chain
– Close to public transport links
– Walking distance to local amenities
Directions:
Exiting Kylemore Road on Landen Road, continue until you reach your 3rd left turn onto O’Hogan Road. Continure straight past the roundabout and No. 29 will be on the right corner facing the Markievicz Park.
Location

Phone:
Connect with us:
Phone:
Connect with us:
Similar Properties
For Sale
- 3 Rooms
- 1 Baths
- 80 sq m
For Sale
- 3 Rooms
- 1 Baths
- 85 sq m
For Rent
- 1 Rooms
- 1 Baths
For Rent
- 1 Rooms
- 1 Baths
For Sale
- 2 Rooms
- 2 Baths
- 67 sq m
- 2 Rooms
- 1 Baths
- 2 Rooms
- 1 Baths
- 3 Rooms
- 1 Baths
For Sale























































