Quick Search:
Property ID:
Features
Description
RAY COOKE AUCTIONEERS are delighted to present No. 3 Glebe Square to the market—an attractive 3-bedroom semi-detached home ideally located within a quiet and well-established residential development of Glebe in Newcastle, County Dublin.
This well-proportioned property extends to approximately 115 sq.m. and offers bright, comfortable living accommodation throughout, making it an excellent choice for first-time buyers, young families, or those seeking a home in a convenient and growing location.
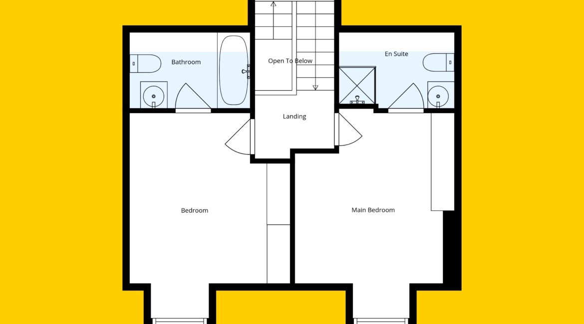
The ground floor comprises an entrance hallway, a spacious living room to the front, a guest bathroom, a downstairs bedroom, second living room and a kitchen/dining area to the rear which overlooks the garden. Upstairs there are two well-sized double bedrooms, both offering ensuites.
Externally, the property benefits from a private low maintenance rear garden. To the front there is a driveway providing off-street parking.
No. 3 Glebe Square is ideally positioned close to a range of local amenities including schools, shops, parks, and recreational facilities. Newcastle Village is just a short distance away, while the N7 and M50 road networks are easily accessible, providing excellent connectivity to Dublin City Centre and surrounding areas.
This is a great opportunity to acquire a solid family home in a convenient and popular location. Early viewing is highly recommended.
Details
- 3 bed, 3 bath
• Semi-detached home
• Approx. 115 sq.m.
• Private low maintenance rear garden
• Gas-fired central heating
• Private rear garden
• Driveway with off-street parking
• Quiet residential development
• Close to local shops, schools & amenities
• Easy access to N7, M50 & surrounding areas
• Built c.2009
• Early viewing advised
BER
BER: C2
Directions
Eircode: D22KX60
Location

Phone:
Connect with us:
Phone:
Connect with us:
Rathcoole Office
Phone:
Connect with us:
Similar Properties
For Sale
- 3 Rooms
- 3 Baths
- 113 sq m
For Rent
- 4 Rooms
- 1 Baths
For Sale
- 3 Rooms
- 3 Baths
- 94 sq m
For Sale
- 3 Rooms
- 2 Baths
- 81 sq m
For Rent
- 3 Rooms
- 2 Baths
For Sale
- 3 Rooms
- 3 Baths
- 94 sq m
For Sale
- 4 Rooms
- 4 Baths
- 172 sq m
For Sale
- 3 Rooms
- 3 Baths
- 99 sq m
For Sale
- 5 Rooms
- 3 Baths
- 167 sq m
For Rent
- 5 Rooms
- 4 Baths


































































