Quick Search:
Property ID:
Features
Description
RAY COOKE AUCTIONEERS are delighted to present this magnificent dual aspect two bedroom apartment located on the ground floor of this superbly landscaped, private & gated development wonderfully positioned just off Dundrum Road, Dublin 14.
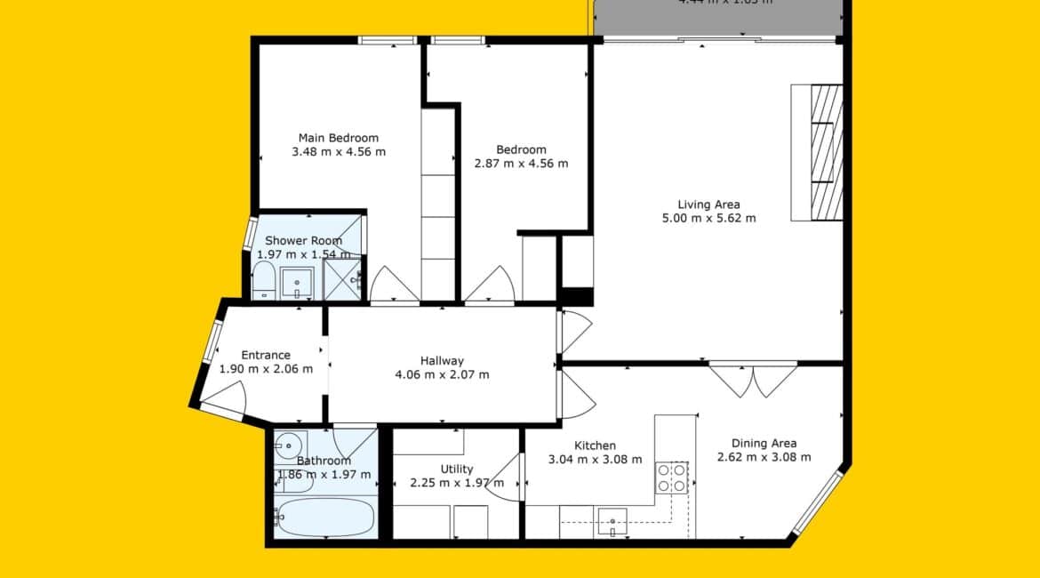
No. 33 offers exceptionally spacious and beautifully presented living accommodation of c. 94 sq.m and it comprises in brief of an entrance hallway, family bathroom, main lounge, kitchen with separate dining space plus generous utility room, two double bedrooms and one master ensuite.
The location is unrivalled and Milltown Grove is ideally located within arm’s reach of a variety of local amenities including local shops and cafés within Milltown, Dundrum Town Centre mere minutes by car, The Luas within a brisk walk and Dublin’s City Centre extremely easily accessible.
Viewing highly advised to appreciate the sheer quality on offer behind the door of no. 33, contact Ray Cooke Auctioneers to register your interest for an immediate viewing.
Additional features:
– c. 94 sq.m
– BER C1
– Gas fired central heating
– Ground floor dual aspect unit
– Sunny south facing terrace
– An abundance of natural light
– 2 double bedrooms
– Bathroom + master ensuite
– Designated surface level parking
– Manicured grounds
– Secure gated entrance
– Unrivalled location
– Dublin’s City Centre & The Luas within easy reach
– Viewing highly advised!
Directions
Head southwest out of Dundrum via Dundrum Road (R117) towards Milltown. Continue straight- passing local landmarks like Dundrum Town Centre and Milltown Gold Club- until you reach Milltown Grove, tucked just off Milltown Bridge Road. Turn into gated Milltown Grove development. Apartment number is 33, it is a ground floor apartment within that complex.
Location

Phone:
Connect with us:
Phone:
Connect with us:
Similar Properties
For Sale
- 4 Rooms
- 2 Baths
- 122 sq m
For Sale
- 3 Rooms
- 3 Baths
- 120 sq m
- 3 Rooms
- 1 Baths
- 2 Rooms
- 2 Baths
For Rent





































































