Quick Search:
Property ID:
Features
Description
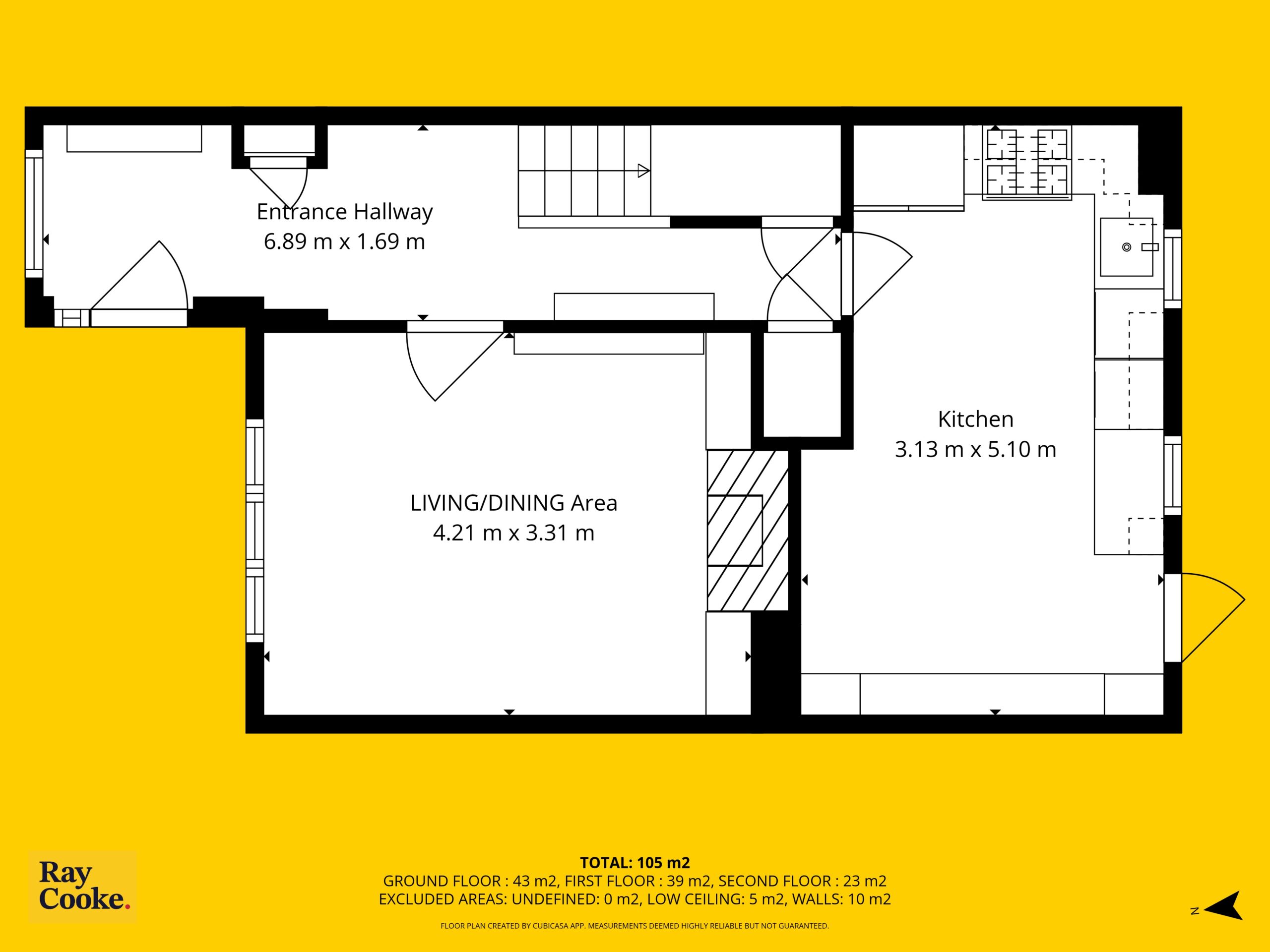
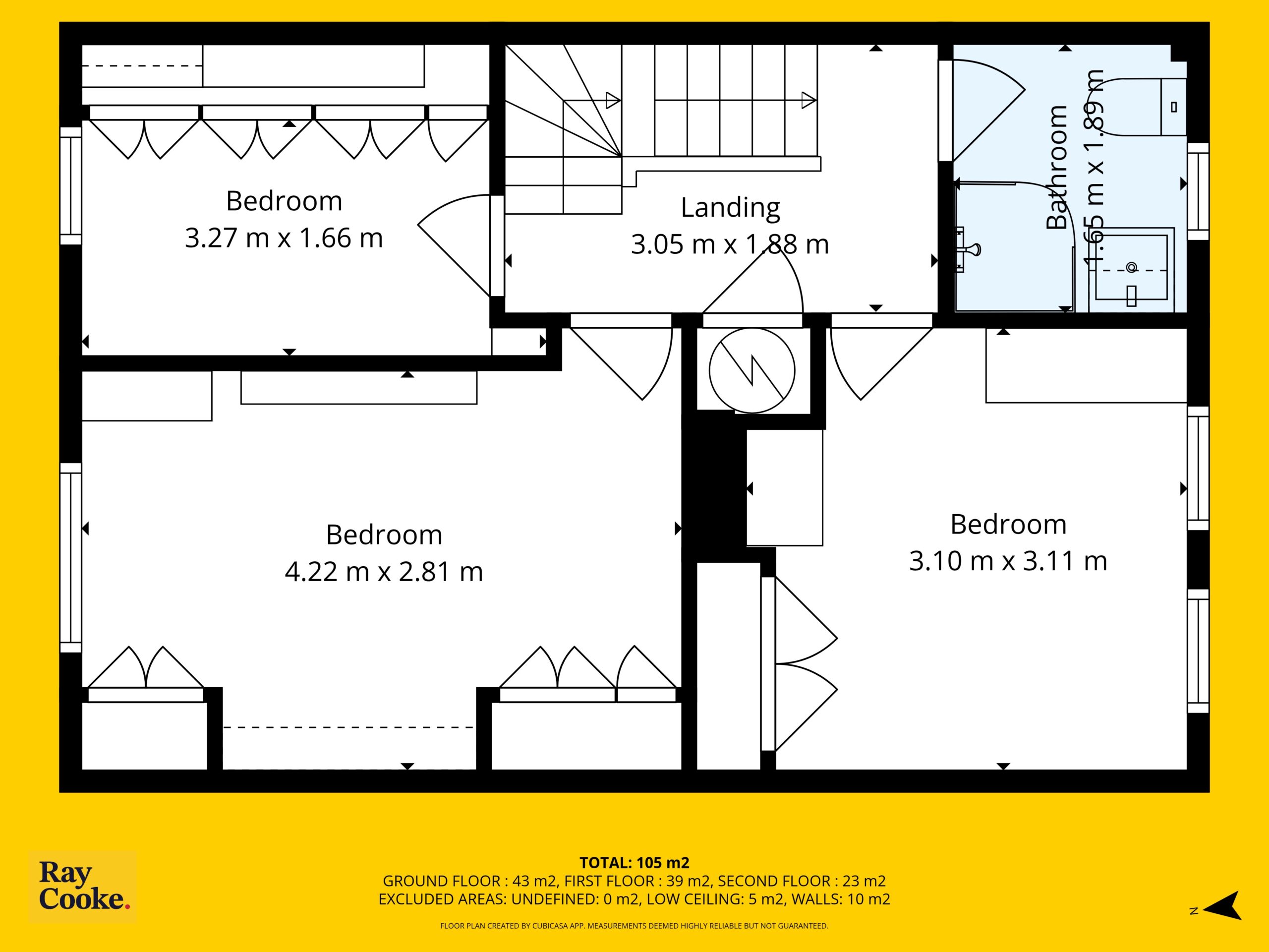
RAY COOKE AUCTIONEERS proudly present to the market this well presented and well-proportioned 3 bedroom end terrace with the additional benefit of an attic conversion. Tucked away in a quiet Cul-de-sac, Foxdene Green is ideally located with a variety of amenities close by including schools, shops, Fontihill Retail Park and a short drive to Liffey Valley Shopping Centre. From a transport point of view, this location is well serviced by local bus routes and also finds itself with great access to the N7 and the M50 Motorway. Internal living accommodation of c. 105 sqm can be found here and in brief consists of extended entrance porch, entrance hall, living room with media wall and an open plan kitchen/diner to the ground floor. on the first floor you will find three bedrooms, the family bathroom and stair access to the converted attic which offers a variety of uses plus plumbing for another wc/bathroom. Externally you will find a low maintenance SOUTH facing garden with large timber cabin, a brick built outbuilding and covered side access which leads to the front of the property where you will find a driveway for off road parking. No 34 comes to the market in great condition throughout having been heavily upgraded by its current owners, further benefits here include Gas central heating, double glazed windows, an electric car point and is offered with no onward chain. Based on recent success in the area we know this will be extremely popular so please contact Ray Cooke Auctioneers for further information or to arrange viewing!
Features
Ber C1
105 Sqm
3 bedrooms
Converted attic
Electric car charging point
Brick and timber units to rear
Well-presented throughout
Driveway to front
Quiet Cul-de-sac
Large covered side access
Double glazed windows
South facing low maintenance garden
Close to all local amenities
Call today to arrange a viewing!
Direction
From Newlands Cross continue down Fonthill Road. At the first main roundabout take your second exit and then at the next roundabout take your first exit heading towards Liffey Valley Shopping Centre. Continue on until you come to Kavanaghs garage on the right-hand side and take the next turn left. Continue ahead and turn left onto Foxdene Avenue, then take your 2nd left onto Foxdene green and No. 34 will be in the 2nd Cul-de-sac on at the bottom.
Location

Phone:
Connect with us:
Phone:
Connect with us:
Similar Properties
For Sale
- 2 Rooms
- 2 Baths
- 65 sq m
For Sale
- 4 Rooms
- 4 Baths
- 165 sq m
For Sale
- 2 Rooms
- 2 Baths
- 62 sq m
For Sale
- 3 Rooms
- 2 Baths
- 93 sq m
For Sale
- 2 Rooms
- 1 Baths
- 62 sq m
For Sale
- 3 Rooms
- 3 Baths
- 123 sq m
For Sale
- 1 Rooms
- 1 Baths
- 42 sq m
For Rent
- 3 Rooms
- 2 Baths
For Rent
- 2 Rooms
- 2 Baths

































































