Quick Search:

>
>
415 Ballyfermot Road, Ballyfermot, Dublin 10
415 Ballyfermot Road, Ballyfermot, Dublin 10
€385 000

Property ID:

 99509
Sale
BER Rating:
B3
Type:
Bedrooms:
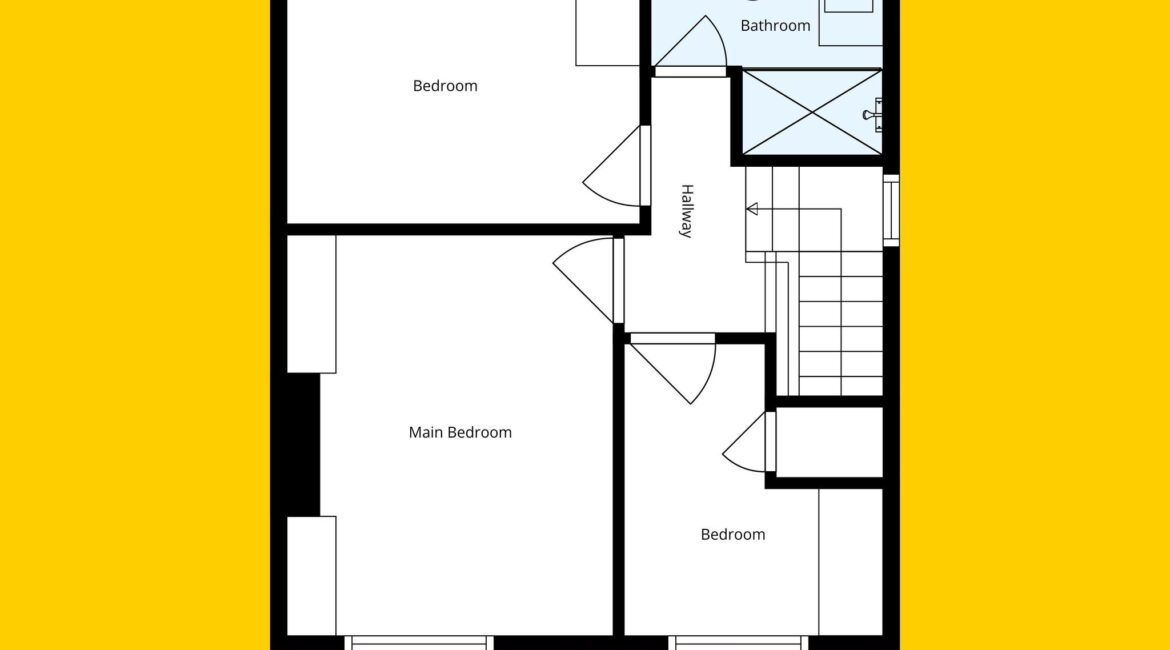
3
Bathrooms:
1
Property size:
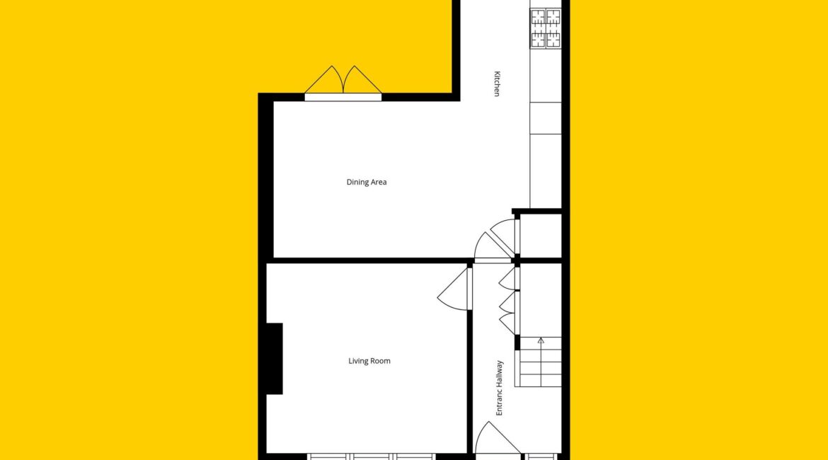
85 sq m
Features
Parking
Public Transport
Garden
Central Heating
Local Amenities
Description

RAY COOKE AUCTIONEERS are excited to present this fantastic 3-bedroom end of terrace family home with large side entrance to the market, ideally located in the heart of Ballyfermot and close to a wide range of local amenities. The Chapelizod Bypass and M50 motorway are both easily accessible, and the Liffey Valley Shopping Centre is just a short drive away. Ballyfermot is well-serviced with excellent facilities, including local GP services, medical centres, sports and recreational clubs, and numerous shopping outlets. There are also highly regarded primary and secondary schools, as well as third-level colleges, all within close proximity to the property.Bright and spacious internal living accommodation of c. 85 sq m comprises of entrance hallway, living room, kitchen/dining room, 3 spacious bedrooms and main family bathroom. The rear garden benefits from a south westerly orientation and there is ample off street parking for multiple cars to the front. No. 415 is presented in excellent condition throughout and boasts a long list of additional features to include brand new bathroom suite, upgraded wiring/heating and a fully integrated kitchen. Ideal for first time buyers and investors. Early viewing is highly advised, call Ray Cooke Auctioneers for further information or to arrange viewing!!

 

Features;
– BER B3
– 85 sq.m
– 3 bedroom end terrace
– XL side entrance with storage shed
– Stunning family bathroom
– Integrated kitchen
– Large living room to front
– Upgraded New wiring & plumbing
– Double glazed PVC windows & doors
– Gas fired central heating
– Sunny south facing rear garden
– Storage shed
– Close proximity to city centre
– Easy access to public transport & all major routes
– Primary and secondary schools in close proximity
– Ideal for first time buyers and investors
– Viewing highly advised!

Location
Address: 415 Ballyfermot Road, Ballyfermot, Dublin 10, D10 RY70
Agent:
[agent_name]
Mobile Phone:
Landline Phone:
Email:

Phone:

Email:
Connect with us:

Blanchardstown Office

Phone:

Email:
Connect with us:

Similar Properties

1

For Sale

54 Kylemore Avenue, Ballyfermot, Dublin 10
€319 000
Kitchen

For Rent

Ballyfermot Road, Dublin 10
€1 400
/ mo
1

For Sale

415 Ballyfermot Road, Ballyfermot, Dublin 10, D10 RY70
€385 000
IMG-20251217-WA0007

For Rent

Ballyfermot Road (Double Room/House Share), Ballyfermot, Dublin 10
€1 300
/ mo
IMG-20251217-WA0007

For Rent

Ballyfermot Road (Double Room/House Share), Ballyfermot, Dublin 10
€1 300
/ mo
1

For Sale

117 Cremona Road, Ballyfermot, Dublin 10, D10 YH48
€295 000
1
265 Kylemore Road, Kylemore, Dublin 10, Ireland
€295 000
1
175 Ballyfermot Road, Ballyfermot, Dublin 10, Ireland
€325 000
1
74 Blackditch Road, Cherry Orchard, Dublin 10, D10 P903, Ireland
€275 000
Screenshot 2025-10-06 143611

For Sale

Site @ 1 Lough Conn Terrace, Ballyfermot, Dublin 10
€300 000

415 Ballyfermot Road, Ballyfermot, Dublin 10

Full Name: *
Email Address: *
Phone Number: *
Message: *
Privacy *

415 Ballyfermot Road, Ballyfermot, Dublin 10

Property Type:
Full Name: *
Email: *
Phone: *
Address:
Additional Information:
Privacy *

415 Ballyfermot Road, Ballyfermot, Dublin 10

Full Name: *
Email Address: *
Phone Number: *
Message: *
Privacy *