Quick Search:
Property ID:
Features
Description
Ray Cooke Auctioneers are delighted to introduce this exceptional two-bedroom, two-bathroom apartment to the market in the highly sought-after and secure gated development of Clearstream Court, Finglas, Dublin 11.
Ideally positioned on the second floor, No. 56 offers bright, modern, and well-appointed accommodation. Recently freshly painted and professionally deep cleaned, this beautiful property is now vacant and ready to move into – a perfect opportunity for first-time buyers, downsizers, or investors seeking a high-quality home in a superb location.
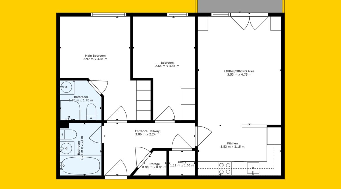
The apartment boasts a spacious open-plan kitchen/living/dining area, filled with natural light and offering direct access to a south-facing private balcony, ideal for relaxing or entertaining. Two large double bedrooms, each with built-in wardrobes (master with ensuite), provide ample comfort, while the main bathroom is finished to a high standard. Two generous storage rooms add further practicality, and a new gas boiler installed circa 2023 ensures warmth and efficiency throughout the year.
Set within a meticulously maintained gated development, residents of Clearstream Court enjoy peace, privacy, and secure underground parking with lift access. Despite its tranquil setting, the property remains just minutes from a wealth of local amenities including shops, schools, cafés, and parks. The M50, M1, Dublin Airport, and DCU are all easily accessible, while the proposed LUAS extension to Charlestown—a short walk away—will further enhance transport links and convenience.
Property Highlights
• Second-floor apartment in secure gated development
• Two spacious double bedrooms with fitted wardrobes
• Master bedroom with ensuite bathroom
• Open-plan kitchen/living/dining area with south-facing balcony
• Freshly painted, deep cleaned, and vacant – ready to move in
• Gas-fired central heating (new boiler c. 2023)
• Two large storage rooms
• B2 BER rating – energy efficient
• Secure designated underground parking space
• Lift access and landscaped communal areas
• Management fee: €1,860 per annum
• Current rent: €1,950 per month (vacant possession)
• Close to M50/M1, Dublin Airport, DCU, shops, schools, and bus routes
• 5 minutes’ walk to proposed LUAS extension
This is a fantastic opportunity to acquire a stylish, energy-efficient, and move-in-ready home in a centrally located and well-managed development.
Viewing is highly recommended – contact Ray Cooke Auctioneers today on 086 198 5247 or 01 541 1455 to arrange a viewing or register your interest.
Location

Phone:
Connect with us:
Phone:
Connect with us:
Similar Properties
For Sale
- 2 Rooms
- 2 Baths
- 76 sq m
For Sale
- 3 Rooms
- 2 Baths
- 85 sq m
For Sale
- 3 Rooms
- 2 Baths
- 85 sq m
For Rent
- 1 Rooms
- 1 Baths
For Sale
- 3 Rooms
- 1 Baths
- 76 sq m
For Sale
- 2 Rooms
- 2 Baths
- 70 sq m
For Rent
For Rent
- 2 Rooms
- 2 Baths
For Sale
- 3 Rooms
- 2 Baths
- 86 sq m










































































