Quick Search:
Property ID:
Sale
Features
Description
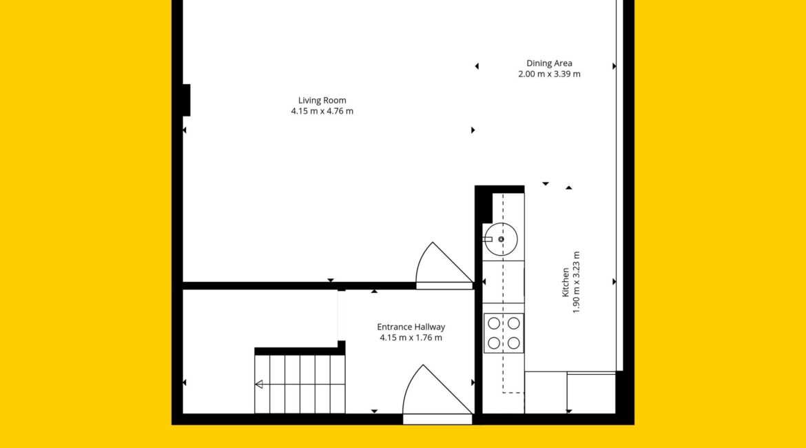
RAY COOKE AUCTIONEERS are delighted to introduce apartment 56 La Rochelle, High Street, Dublin 8 —a beautifully presented two-bedroom, one-bathroom fourth floor duplex apartment, offering approximately 84 sq.m of well-appointed living space.
La Rochelle is situated on High Street in Dublin 8, in the heart of the city’s historic medieval core. The area is steeped in character, with nearby landmarks including Christ Church Cathedral, St. Audoen’s Church, and Dublinia, while the vibrant streets of Temple Bar, Grafton Street, and Dublin Castle are all within walking distance. Residents enjoy excellent local amenities, from cafes and restaurants to shops and cultural venues, making it a lively and convenient place to live.
Upon entering, you are welcomed into a hallway that opens onto a spacious open-plan living and dining area, which seamlessly connects to a modern, fully fitted kitchen. Upstairs, accessible via the hallway or a door on the landing, are two generously sized double bedrooms featuring fully fitted wardrobes, along with a family bathroom complete with a shower, hand basin, and WC.
Transport links are excellent, with multiple bus routes nearby and easy access to LUAS and train connections, ensuring seamless travel across the city. This central location combines historic charm with modern urban living, ideal for professionals, students, and anyone seeking city-centre convenience.
Don’t miss out on this fantastic opportunity. Early viewing is highly recommended! Call RAY COOKE AUCTIONEERS today for further information.
Features;
• BER C1
• 84 sq.m
• 2 Bed duplex apartment
• Management fees c. €1690 per annum
• Upgraded electric heating
• No onward chain
• Great condition throughout
• Open-plan living/ dining space
• Located within the heart of Dublin 8
• Within distance to Dublin City Centre
• The LUAS & Hesuton station close by
• Prime for first-time buyers, investors or anyone looking to downsize
• Viewing highly advised!
Directions;
From the M50, take the exit toward Dublin City Centre and follow the R137/Dame Street. Continue onto Nicholas street and then turn onto High Street, Dublin 8, near Christchurch Cathedral.
Location

Phone:
Connect with us:
Phone:
Connect with us:
Similar Properties
For Sale
- 2 Rooms
- 1 Baths
- 84 sq m
For Sale
- 1 Rooms
- 1 Baths
- 36 sq m









































