Quick Search:
Property ID:
Sale
Features
Description
RAY COOKE AUCTIONEERS take great pleasure in presenting this fantastic four-bedroom semi-detached heavily extended family home to the market beautifully positioned within the ever sought after Corbally Heath development, Citywest overlooking a beautiful green area.
This esteemed development is ever sought after with young families and the location is second to none with Citywest Shopping Centre, Citywest Business Park and The Luas all within close proximity. In addition, there is easy access to the N7 & M50 Motorway and a choice of bus routes.
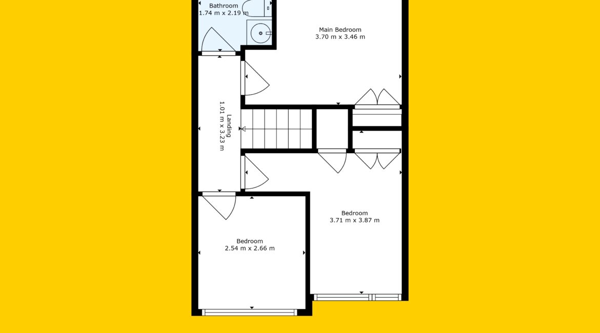
Bright, airy & most stylish internal living accommodation of c. 144 sqm spread over three floors comprises of entrance hallway with guest bathroom & utility room, large living room with fireplace and beautiful extended open plan fully fitted kitchen/dining room that is filled with tons of natural light. On the first floor you have three spacious bedrooms (one master ensuite) all with built in wardrobes and main family bathroom. The 4th bedroom here has been converted into a walk-in wardrobe off the main bedroom but can easily be turned back if someone wishes. On the top floor you have an attic conversion currently acting as another room but this could be used for so many different purposes.
To the rear of the property you have a stunning low maintenance garden with artificial grass that comes private & fully enclosed making it perfect for relaxing on them long sunny summer evenings with the use of a wooden shed that is currently used for hosting & entertaining but again can be used for so many different purposes whilst the front provides ample off-street parking overlooking a beautiful green area.
No. 6 comes to the market in turnkey condition throughout having been lovingly maintained by its current owners with no expense spared when upgrading in recent years with the highest possible fixtures & fittings, there is plenty of additional features here such as heavily extended, beautiful fully fitted kitchen, generous bedrooms and gas fired central heating to name but a few. To be seen is to be appreciated – Viewing is highly advised, call Ray Cooke Auctioneers today!
Additional Features;
– c. 144 sqm
– BER B2
– Semi-detached family home
– Stunning condition throughout
– Tastefully decorated from top to bottom
– Heavily extended to the rear
– Attic conversion
– Currently being used as additional room
– 4 bed / 3 bath
– One room converted to walk in wardrobe
– Can easily be put back if needed
– Gas fired central heating
– Double glazed windows
– Top quality blinds
– Ample off-street parking to the front
– Well-kept driveway to front
– Overlooking beautiful green area
– Spacious living throughout
– Entrance hallway
– Large living room with fireplace
– Beautiful fully fitted kitchen
– Large open plan kitchen/dining area
– Skylights with tons of natural light
– Separate utility room
– Four generous bedrooms
– Master ensuite
– Built in wardrobes
– Main family bathroom fully
– Guest bathroom
– Top quality fixtures & fittings
– Private and fully enclosed rear garden
– Maintenance free rear garden
– Artificial grass to rear
– Unit to the rear
– Can be used for so many different purposes
– Highly sought-after development
– A choice of bus routes nearby
– Easy Access to N7/ N81 & M50
– The Luas within walking distance
– Ideal for first time buyers & people trading up
– Viewing highly advised
Directions If travelling on N7 from the M50 take the exit 3 for Citywest. At the top of the slip road take the third exit off the roundabout and continue straight all the way over the Luas tracks approaching the junction to the front of Citywest Shopping Centre. Proceed straight onto Citywest Road then turn right at the roundabout onto Corbally Heath then number 6 will be on the right-hand side.
Location

Phone:
Connect with us:
Phone:
Connect with us:
Similar Properties
For Rent
- 2 Rooms
- 2 Baths
For Rent
- 2 Rooms
- 1 Baths
For Sale
- 2 Rooms
- 1 Baths
- 67 sq m
For Sale
- 2 Rooms
- 1 Baths
- 65 sq m
For Sale
- 3 Rooms
- 2 Baths
- 95 sq m
For Sale
- 2 Rooms
- 1 Baths
- 54 sq m
For Rent
- 4 Rooms
- 4 Baths
For Sale
- 3 Rooms
- 2 Baths
- 129 sq m
For Rent
- 2 Rooms
- 2 Baths
For Sale
- 4 Rooms
- 3 Baths
- 144 sq m



















































































