RAY COOKE AUCTIONEERS are very pleased to present this stunning 2-bedroom ground floor apartment to the market, ideally situated right in the heart of Dublin 8 along the ever sought after Clanbrassil Street.
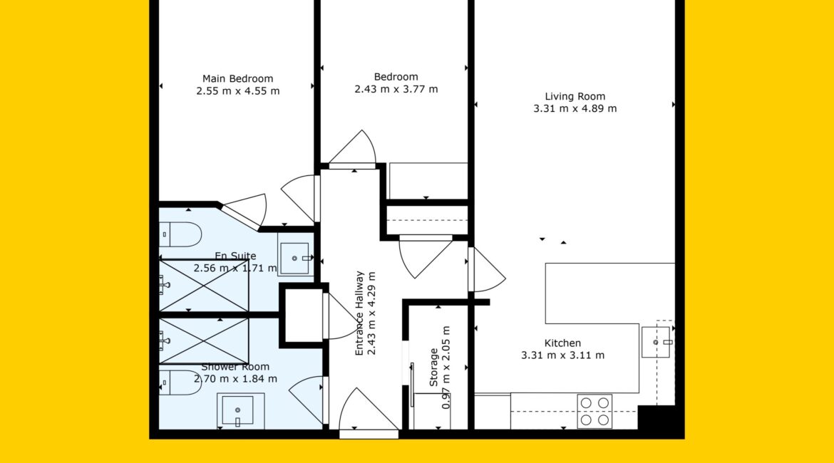
No. 6 Liberty Court is a well-appointed 2 bedroom/2-bathroom apartment coming to the market in great condition throughout. Internal living accommodation of c. 70 sq.m comprises of an entrance hallways complete with 2 storage rooms, a bright and spacious open plan kitchen/dining/living area, two generous double bedrooms, main family bathroom and ensuite leading from the master bedroom. No.6 is further enhanced by a lengthy list of positive features such as underfloor heating, ample storage & access to a private resident’s courtyard space.
Living in Dublin 8 offers convenience, vibrancy, and cultural richness. With its central location, residents have easy access to amenities, landmarks, and a well-connected transportation network, providing an exciting urban lifestyle immersed in Dublin’s history and contemporary offerings.
Undoubtedly going to spark a great deal of interest from a wide range of buyers, early viewing is strongly advised. In order to arrange a viewing, please contact RAY COOKE AUCTIONEERS today!
Features
- 70 sq.m
- 2 bed / 2 bath
- Ground floor apartment
- Well-presented throughout
- Access to communal courtyard
- Underfloor heating
- Ample storage
- Fantastic City Centre location
- Ideal for a wide range of buyers
- No rent cap/ideal investment opportunity
- Management fee’s c.€2556 per annum
- Early viewing highly advised
BER details
BER: C2
Directions
Eircode: D08 V2Y2