Quick Search:
Property ID:
Sale
Features
Description
Ray Cooke Auctioneers are thrilled to present this 3 bed 1 bath end of terrace property to the market in the fantastic location of Loreto Road, Dublin 8. Loreto Road is within walking distance to the Coombe & St. James’ Hospitals with many shops, cafes, bars and restaurants only a stones throw away.
Transport links are next to none as it is a 5 minute walk to the Fatima Luas stop towards Tallaght and Connolly Station, along with multiple bus routes from Cork Street and surrounding areas. Dublin 8 is also home to a variety of primary and secondary schools nearby. No.6 Loreto Road comes in the market with a full refurbishing required and vacant possession.
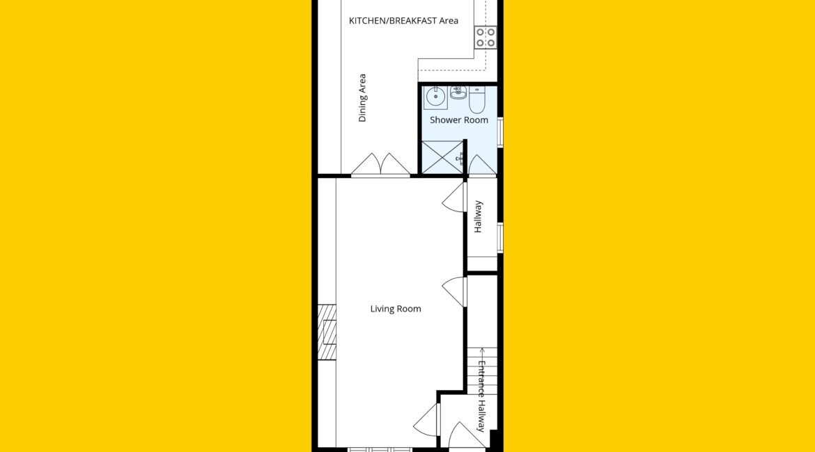
This unique and spacious property offers internal living accommodation of c. 90 sq m and comprises of entrance hallway, big living space to the front with an entryway into the family bathroom and double doors to the kitchen/diner at the rear. Upstairs consists of 3 bedrooms, one with fireplace. Double glass paned doors from the kitchen lead out onto the wonderful garden which is tastefully designed and offers a side entrance to the front driveway for 1 car to park.
No. 6 is presented in vacant possession and is awaiting full restoration and a fresh start with it’s new owners. The location and transport links are next to none with the luas and bus routes closeby. No. 6 offers a large rear garden with a side entrance to the front driveway. This property is ideal for first time buyers wanting to get on the property ladder, second time buyers wanting a refurb job and investors with a fantastic location to earn a great income.
Features:
– c. 90 sq m
– BER F
– 3 BED / 1 BATH
– End of Terrace
– Vacant Possession
– Refurbishment ready
– Superb location
– Luas and bus routes less than 10 minutes’ walk
– St. James’ and The Coombe Hospital in walking distance
– Large rear garden
– Side entrance
– Front driveway to park a car
– Many schools, shops, cafes, bars and restaurants close by
– Ideal for First time buyers, Investors or families trading up
– CALL NOW TO VIEW
Directions:
From the Guinness Storehouse, drive through Bellevue and onto School Street. Take a right turn onto Marrowbone Lane and follow the road straight. Once you see the Sunrise and Gilli Café’s to the left, make the right turn after onto Loreto Road. No. 6 will be the first house on your right hand side.
Location

Phone:
Connect with us:
Phone:
Connect with us:
Similar Properties
For Sale
- 3 Rooms
- 2 Baths
For Sale
- 1 Rooms
- 1 Baths
For Sale
- 2 Rooms
- 1 Baths
- 84 sq m
For Rent
- 2 Rooms
- 1 Baths
For Sale
- 2 Rooms
- 1 Baths
- 38 sq m
For Rent
- 2 Rooms
- 1 Baths
For Sale
- 3 Rooms
- 2 Baths
- 83 sq m
For Sale
- 1 Rooms
- 1 Baths
- 36 sq m
For Sale
- 3 Rooms
- 1 Baths
- 90 sq m
















































