Quick Search:
Property ID:
Features
Description
RAY COOKE AUCTIONEERS are delighted to present this superb two-bedroom, ground floor apartment to the market, ideally located in the ever-popular Mayeston development, Finglas, Dublin 11. No. 64 Mayeston Square is a spacious and superbly well-maintained home that is sure to appeal to both first-time/Second-time buyers and investors alike.
Perfectly positioned within walking distance of Finglas Village, Charlestown Shopping Centre, Glasnevin, IKEA, and DCU, the property enjoys easy access to a wide variety of local amenities. Excellent public transport routes including the 140, 40A and 17A are just around the corner, and the M50 and N2 motorways are only minutes away, making commuting a breeze.
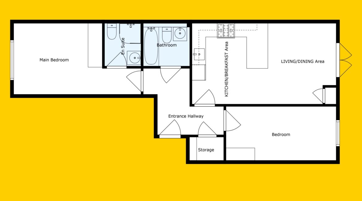
Spanning c. 64 sq.m, the accommodation comprises: entrance hallway, a large open-plan kitchen/living/dining area with access to a private patio, two spacious double bedrooms (master ensuite with double-glazed windows and built-in wardrobes), a large family bathroom, and a handy storage closet.
This fantastic apartment comes to the market in turnkey condition, and benefits from double-glazed windows throughout, gas-fired central heating (combi Boiler), 2 secure parking spaces, and no onward chain—ready for immediate sale.
Key Features:
• Guide Price: €275,000
• c. 64 sq.m
• Ground floor apartment
• 2 double bedrooms / 2 bathrooms
• Master bedroom with built-in wardrobes, ensuite
• Second double bedroom with built-in wardrobes
• Spacious family bathroom
• Open-plan kitchen/living/dining
• Private patio
• Double glazed throughout
• Gas fired central heating (Combi Boiler)
• Storage closet
• 2 secure car parking spaces
• Lift access
• Management fees: €1,500 per annum
• No onward chain
• Fantastic location near Finglas, Glasnevin and Charlestown SC
• Excellent access to M50, N2, and Dublin Airport
• Great bus routes nearby (140, 40A, 17A)
• Ideal for first-time buyers and investors
Don’t miss your opportunity to view this exceptional apartment in a highly sought-after location. Contact Ray Cooke Auctioneers today at our Northside office on 0861985247 or 015411455 to arrange a viewing.
Location

Phone:
Connect with us:
Phone:
Connect with us:
Similar Properties
For Sale
- 2 Rooms
- 2 Baths
- 76 sq m
For Sale
- 3 Rooms
- 2 Baths
- 85 sq m
For Sale
- 3 Rooms
- 2 Baths
- 85 sq m
For Rent
- 1 Rooms
- 1 Baths
For Sale
- 3 Rooms
- 1 Baths
- 76 sq m
For Sale
- 2 Rooms
- 2 Baths
- 70 sq m
For Rent
For Rent
- 2 Rooms
- 2 Baths
For Sale
- 3 Rooms
- 2 Baths
- 86 sq m








































