Quick Search:
Property ID:
Features
Description
RAY COOKE AUCTIONEERS are pleased to present this lovely three bedroom, three bathroom duplex property to the market ideally situated in the highly sought after development of Melville Drive, Finglas, Dublin 11. This mature development is within close proximity Charlestown shopping centre with the renowned Odeon Cinema and a mere stroll from Finglas Village which hosts a range of shops, amenities, bars, restaurants, and prestigious schools, both primary and secondary. The Botanic Gardens, Ikea, DCU and Dublin airport are also within easy reach.
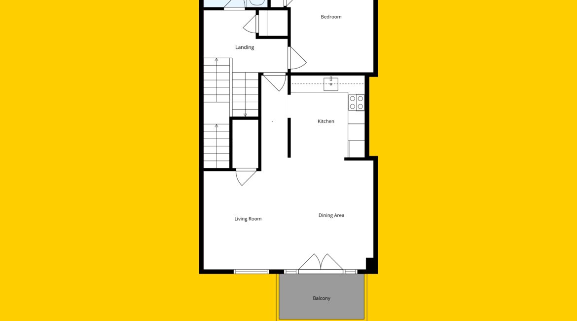
Living accommodation of c. 108 Sqm comprises of entrance hallway, a double bedroom, family bathroom, open plan living/dining area and spacious kitchen. The front of the property features a south facing balcony overlooking the grounds. While upstairs host two double bedrooms, both featuring en-suites.
No. 64 benefits from being an own door home with designated parking directly to the rear along with having a south facing orientation, flooding the interior with natural light. No. 64 comes to the market in great condition throughout having been lovingly maintained by the current owners. The location of Melville square is truly second to none, within close proximity to excellent road networks and transport routes including the M50, M1, Port Tunnel and a host of bus routes, this property will be sure to appeal to variety of buyers seeking to set down roots in this well-established neighbourhood. Early viewing is highly advised. Contact RAY COOKE AUCTIONEERS on 0860754597 or 015411455 to arrange a viewing today.
Additional Features;
– 3 bed/3 bath duplex
– c. 108 Sqm
– Constructed in 2006
– Parking available
– C. €1130 management fee’s
– Three spacious bedrooms
– Sunny south facing balcony
– Well-proportioned home
– Amazing location
– Excellent primary and secondary schools in the area
– Easy access to M50 motorway
– Wide range of bus routes at your doorstep
– Mature and highly sought after development
– Ideal for first time buyers
– Viewing is highly advised
Directions – Upon exiting the M50 take your first left onto Charlestown Place, continue straight onto Melville Road followed by a left into Melville Way. No. 64 will be in front, with parking to the rear of the building.
Location

Phone:
Connect with us:
Phone:
Connect with us:
Similar Properties
For Sale
- 2 Rooms
- 2 Baths
- 76 sq m
For Sale
- 3 Rooms
- 2 Baths
- 85 sq m
For Sale
- 3 Rooms
- 2 Baths
- 85 sq m
For Rent
- 1 Rooms
- 1 Baths
For Sale
- 3 Rooms
- 1 Baths
- 76 sq m
For Sale
- 2 Rooms
- 2 Baths
- 70 sq m
For Rent
For Rent
- 2 Rooms
- 2 Baths
For Sale
- 3 Rooms
- 2 Baths
- 86 sq m






































































