Quick Search:
Property ID:
Sale
Features
Description
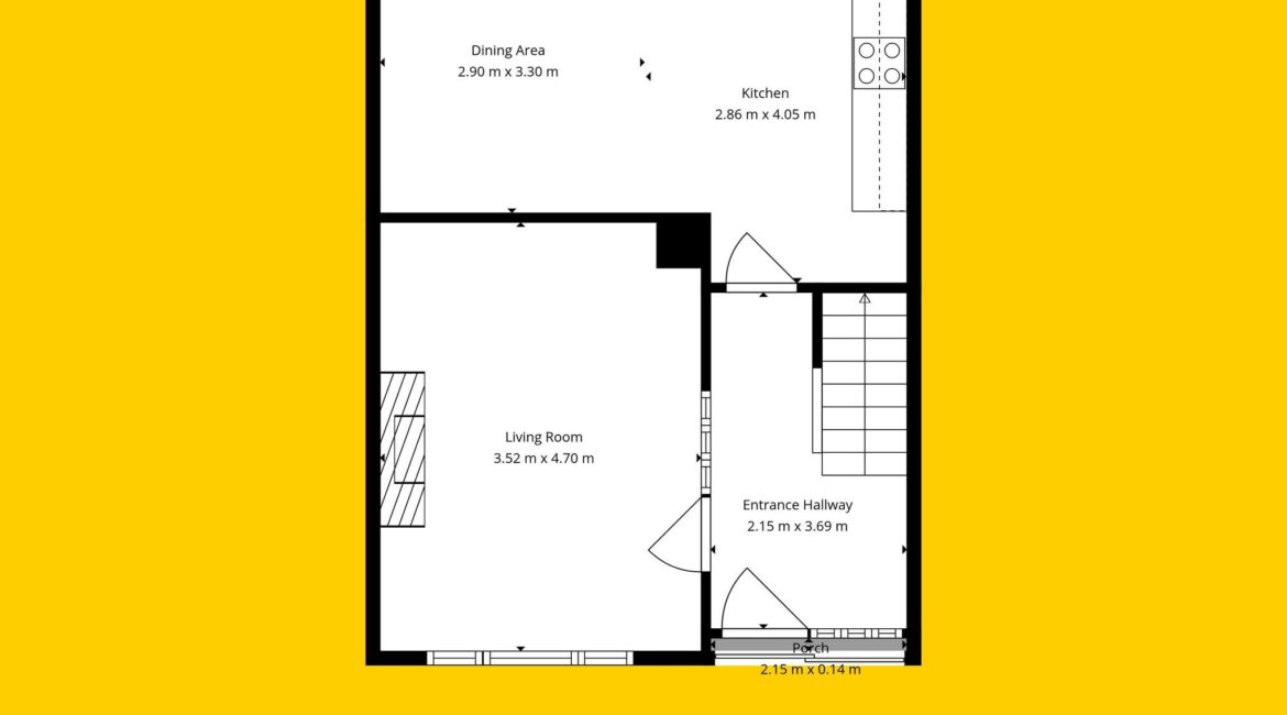
RAY COOKE AUCTIONEERS are delighted to present this three bedroom semidetached family home to the market tucked away on the tree lined mature setting of St. Johns Park East, Clondalkin. Arguably one of Dublin 22’s most sought after addresses – St. Johns Park East is located on the fringe of Clondalkin Village and finds a wealth of amenities on its doorstep including local shops, The Mill Shopping Centre, primary & secondary schools, bars & restaurants, and many leisure facilities. On a transport note you will find a host of bus routes to the front of the development along with the N7, M50 motorway and The Luas all accessible within minutes by car. Interior living accommodation of c. 93 Sqm comprises of entrance hallway, lounge and open plan lounge/diner to the ground floor. upstairs you will find 3 bedrooms and the family bathroom. Externally this property offers a fully enclosed WEST facing garden with side access to the front which benefits from a driveway for off road parking. No. 69 comes to the market in need of some cosmetic updating but offers a fantastic opportunity for its next occupants to purchase an ideally located home and put their own stamp on it. based on recent success within this highly sought after area we know this will be extremely popular so please call Ray Cooke Auctioneers today for further information or to register for viewing.
Additional Features;
Ber D1
c. 93 sqm
Highly sought after location
Walking distance to Clondalkin Village
Three bedrooms
One bath
West facing rear garden
Driveway to front with side access
Close to all local amenities
Double glazing throughout
M50 and N7 easily accessible.
Viewing highly advised!
Directions
Coming from the Fonthill Road, take the St. John’s Road West exit and then take your immediate left. Follow the road round which will merge into St Johns Park East and No. 69 will just be on your right hand side.
Location

Phone:
Connect with us:
Phone:
Connect with us:
Similar Properties
For Sale
- 3 Rooms
- 1 Baths
- 113 sq m
For Sale
- 4 Rooms
- 1 Baths
- 104 sq m
For Rent
- 3 Rooms
- 3 Baths
For Sale
- 3 Rooms
- 2 Baths
- 96 sq m
For Rent
- 1 Rooms
- 1 Baths
For Rent
- 2 Rooms
- 1 Baths
For Sale
- 1 Rooms
- 1 Baths
- 47 sq m
For Rent
- 2 Rooms
- 1 Baths
For Sale
- 3 Rooms
- 3 Baths
- 113 sq m
For Sale
- 2 Rooms
- 2 Baths
- 68 sq m

















































