Quick Search:
Property ID:
Features
Description
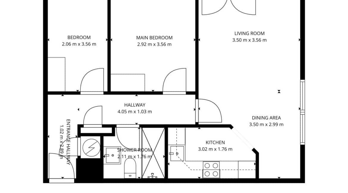
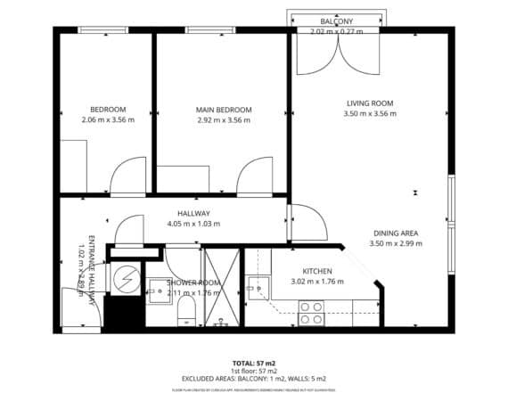
RAY COOKE AUCTIONEERS are pleased to present this gorgeous two bedroom, one bathroom ground apartment to the market in the highly sought after development of Custom House Square, Dublin 1. This stunning home offers bright and airy accommodation situated in the heart of the City Centre.
This stunning development is located a stone’s throw from a wealth of amenities included Croke Park, The Aviva Stadium, The Mater Hospital, Mount Joy Square Park, along with a number of public transport routes within easy access including Dublin Bus, The Dart, Luas line located at Connolly Station. Location is truly second to none!
Living accommodation of c. 52 Sqm comprises of entrance hallway, 2 double bedrooms and main bathroom. Down the hall leads into the open plan living/dining area and fully fitted kitchen. The living room looks out over the communal grounds offering peaceful green views in the heart of the City Centre.
No. 7 Beresford House boasts massive potential for first time buyers seeking to purchase in central Dublin in a peaceful and highly sought after development. No. 7 benefits from being located in the heart of the City Centre while being nestled away in the quiet mature and well-kept development of Custom House Square.
Early viewing is highly advised. Contact RAY COOKE AUCTIONEERS to arrange a viewing today.
Additional Features;
- c. 52 Sqm
- C2 energy rating
- Designated underground parking
- Built in 1999
- 2 Spacious double bedrooms
- Turnkey condition
- Fantastic location
- Within excellent catchment of amenities
- Easy access to Luas, Dart and Train stations
- Wide range of bus routes at your doorstep
- Mature and highly sought after development
- Ideal for first time buyers and investors
- Viewing is highly advised!
Directions – Upon exiting the M50 Port Tunnel (towards City Centre), continue straight on R131, at the roundabout turn right onto R801, take the next right onto North Wall Ave followed by the third left, continue straight to Sherriff Street Upper, in 200m take the left onto Oriel Street Upper followed by a right onto Common Street, take the next left and Custom House Square will be on your left.
Location

Phone:
Connect with us:
Phone:
Connect with us:
Similar Properties
For Sale
- 2 Rooms
- 2 Baths
- 80 sq m
For Rent
- 3 Rooms
- 2 Baths
For Sale
- 2 Rooms
- 1 Baths
- 52 sq m
For Sale
- 2 Rooms
- 1 Baths
- 65 sq m
- 2 Rooms
- 2 Baths
For Sale
- 2 Rooms
- 2 Baths
- 58 sq m
For Sale
- 2 Rooms
- 2 Baths
- 58 sq m
For Sale
- 1 Rooms
- 1 Baths
- 47 sq m
- 1 Rooms
- 1 Baths
For Sale
- 2 Rooms
- 2 Baths
- 90 sq m



























































