Quick Search:
Property ID:
Sale
Features
Description
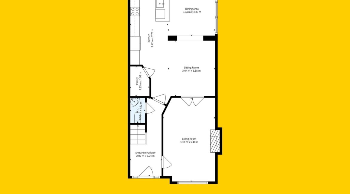
RAY COOKE AUCTIONEERS proudly present this fantastic three-bedroom extended semi-detached family home with the additional benefit of an attic conversion to the market within the highly sought after Foxborough Crescent, Lucan. This particular location is next to none as it finds itself within a quiet cul de sac just off of Foxborough Road with great access to local amenities and public transport routes. Within arm’s reach you will also find the M50 Motorway, Liffey Valley Shopping Centre and a vast array of other amenities including shops, sports and leisure facilities and a great choice of primary and secondary schools. Bright, open and spacious living accommodation of c. 133 sq.m comprises of entrance hallway, guest wc, lounge and an open plan, extended, kitchen/family/diner with impressive island and also a separate sound proofed utility room to the ground floor. on the first floor you will find three well-proportioned bedrooms with master benefitting from ensuite and also the family bathroom. From the landing you will find stair access into the converted attic which offers a variety of uses. Externally this property benefits from a WEST facing garden with automated lighting, patio seating area, a timber shed with power and lighting and side access to the front which offers a driveway for off road parking. No. 7 comes to the market in pristine condition throughout and is the true definition of ‘Turn Key’. The property has been meticulously upgraded, improved and maintained by its current owner and now offers a fantastic opportunity for its next occupants to purchase an ideally located property presented to the highest of calibres. Further benefits here include gas central heating, double glazed windows, cameras to the front and rear and automated blinds to name a few. You truly need to see this property to appreciate what it has to offer. Please contact Ray Cooke Auctioneers today for further information or to arrange a viewing!
Key Features
BER C2
c.133 Sqm
Three bedroom semi
Attic conversion
Extended to rear
Soundproof utility room
Presented to the highest of standards
Cul de sac location
Close to public transport routes
Gas central heating
Amenities on your door step
Sought after location
Close to shops, schools and major road networks
Viewing is highly advised!
Directions
From Lucan, head south toward the N4 and merge onto the N4 eastbound toward Dublin city centre. Continue on the N4 and take the exit for the M50 southbound. Follow the M50 and take the appropriate exit for your destination area (depending on which Foxborough Crescent you are visiting in Co. Dublin), then follow local road signs to Foxborough Crescent. Continue along Foxborough Crescent until you reach number 7
Location

Phone:
Connect with us:
Phone:
Connect with us:
Similar Properties
For Sale
- 2 Rooms
- 2 Baths
- 80 sq m
For Sale
- 2 Rooms
- 1 Baths
- 63 sq m
For Rent
- 2 Rooms
- 2 Baths
For Sale
- 3 Rooms
- 3 Baths
- 98 sq m
For Rent
- 1 Rooms
- 1 Baths
For Rent
- 2 Rooms
- 2 Baths
For Sale
- 3 Rooms
- 2 Baths
- 88 sq m
For Sale
- 5 Rooms
- 2 Baths
- 139 sq m
For Sale
- 3 Rooms
- 3 Baths
- 95 sq m
For Sale
- 2 Rooms
- 2 Baths
- 72 sq m



















































































