Quick Search:

>
>
70 Forest Hills, Rathcoole, Co. Dublin, D24A279
70 Forest Hills, Rathcoole, Co. Dublin, D24A279
€375 000

Property ID:

 95670
Sale
BER Rating:
C1
Type:
Bedrooms:
3
Bathrooms:
2
Property size:
102 sq m
Features
Parking
Public Transport
Garden
Central Heating
Local Amenities
Description

RAY COOKE AUCTIONEERS are delighted to present this fantastic three-bedroom semi-detached family home to the market in Forest Hills, Rathcoole, Co Dublin. Forest Hills is a mature and settled development in the heart of Rathcoole Village, the location could not be better. With every imaginable amenity on your doorstep the location is truly next to none. Within a stone’s throw you will find local bars, shops, schools, Avoca and Rathcoole Park along with a host of bus routes, the N7 & M50 road networks.

 

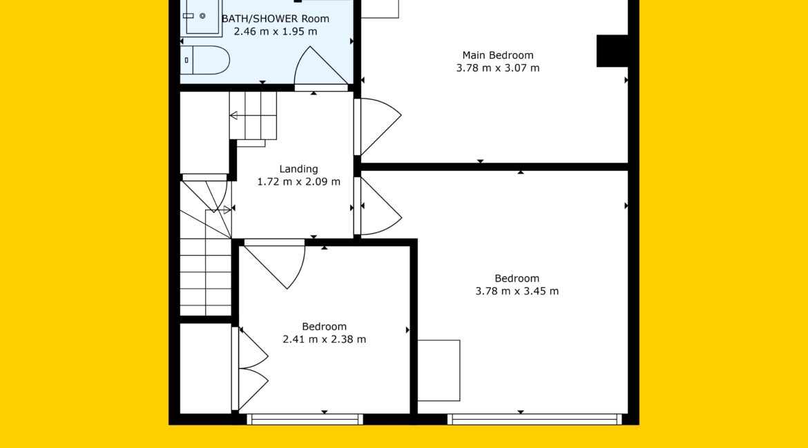
Bright, airy and most spacious internal living accommodation of c. 102 sqm comprises of entrance hallway with guest bathroom, living room and fully fitted kitchen/dining room to the rear. On the first floor you have three generous bedrooms and main family bathroom which comes fully tiled, the attic has been converted here and is currently acting as a 4th bedroom but could be used for so many different purposes depending on your own needs. To the rear of the property you have a well-kept low maintenance garden that comes with a block built shed that is perfect for any additional storage, you also have access to the car park at the rear whilst the front of the house is set in a peaceful & tranquil setting with plenty of green space in front.

 

No. 70 comes to the market in great condition throughout having been meticulously maintained by its current owners with no expense spared when upgrading and boasts an endless list of additional features including oil central heating, top quality flooring, double-glazed windows and extra spacious living throughout – to name but a few! Early interest is sure to be expected, Call Ray Cooke Auctioneers today for further information or to arrange viewing!

 

Additional Features;
– C. 102 sqm
– C1 BER
– 3 bed / 2 bath family home
– Semi-detached property
– Attic conversion
– Currently used as 4th bedroom
– Can be used for so many different purposes
– Beautifully presented throughout
– Tastefully decorated
– Top quality fixtures & fittings
– Stunning fully fitted kitchen
– Open plan dining area
– Living room to front
– Three spacious bedrooms
– Main family bathroom
– Fully tiled bathrooms
– Guest bathroom downstairs
– Ample storage
– Oil fired central heating
– Double glazed windows
– Sunny south facing garden to the front
– Overlooking large green area
– No passing traffic to front
– Low maintenance rear garden
– Block built shed for storage
– Ample parking to the rear
– Mature development
– Located in the heart of Rathcoole Village
– Every conceivable amenity within walking distance
– M50 & N7 within two minutes’ drive
– Viewing highly advised!

 

Directions from Avoca, drive straight into Rathcoole Village, continue straight through the village passing Bank of Ireland & take your next left after traffic lights into Forest Hills. Proceed ahead and follow the road and turn left before Rathcoole Boys where you will come into the car park at the rear and number 70 will be on the right.

Location
Address: 70 Forest Hills, Rathcoole, Co. Dublin
Agent:
[agent_name]
Mobile Phone:
Landline Phone:
Email:

Phone:

Email:
Connect with us:

Tallaght Office

Phone:

Email:
Connect with us:

Similar Properties

Pic 1

For Rent

Units 1 - 2 & 3 – 4 Block 642, Greenogue Business Park, Rathcoole, Co. Dublin
€70 000
/ mo

For Rent

Units 3 - 4 Block 642, Greenogue Business Park, Rathcoole, Co. Dublin
€38 000
/ mo
Pic 1 Robinhood

For Rent

Unit 1 - 2 Block 642, Greenogue Business Park, Rathcoole, Co. Dublin
€38 000
/ mo
001

For Sale

146 Cherrywalk, Forest Hills, Rathcoole, Co.Dublin, D24 FC85
€375 000
1

For Sale

16 Millrace Walk, Saggart, Co.Dublin, D24 FC9W
€320 000
1

For Rent

Credit Union Building, Rathcoole, Co. Dublin
€1 650
/ mo
IMG_6583

For Rent

Hillcrest Drive, Lucan, Co Dublin
€2 500
/ mo
WhatsApp Image 2026-01-21 at 16.52.19

For Rent

Willsbrook Road, Lucan, Dublin
€3 300
/ mo
Front

For Rent

Adamstown Avenue, Lucan, Co. Dublin
€2 400
/ mo
2

For Sale

42 Eaton Terrace, Rathcoole, Co. Dublin
€255 000

70 Forest Hills, Rathcoole, Co. Dublin, D24A279

Full Name: *
Email Address: *
Phone Number: *
Message: *
Privacy *

70 Forest Hills, Rathcoole, Co. Dublin, D24A279

Property Type:
Full Name: *
Email: *
Phone: *
Address:
Additional Information:
Privacy *

70 Forest Hills, Rathcoole, Co. Dublin, D24A279

Full Name: *
Email Address: *
Phone Number: *
Message: *
Privacy *