Quick Search:
Property ID:
Sale
Features
Description
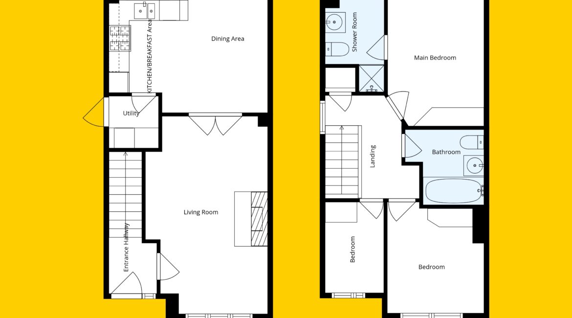
RAY COOKE AUCTIONEERS are delighted to present this superb three-bedroom end-of-terrace family home, ideally positioned in a quiet, mature cul-de-sac within the highly sought-after Boroimhe development No. 76 Boroimhe Hawthorns boasts an attractive red brick façade and has the benefit of a private rear garden. A designated parking space to the front adds further convenience to this superb home. Boroimhe is a well-established and desirable residential area on the south side of Swords. It offers the perfect blend of community charm and excellent accessibility to a range of local amenities, including Boroimhe Shopping Centre, Airside Retail Park, and Swords Village. Commuters will appreciate the Swords Express bus route, with one of its final stops nearby, providing swift access to Dublin City Centre. Additionally, the property enjoys close proximity to the M1 motorway and Dublin Airport. Bright and spacious internal living accommodation of c. 85 sqm comprises of entrance hallway, a spacious front living room with a feature fireplace, and an open-plan kitchen/dining area with direct access to a separate utility room and the rear garden. Upstairs offers three generously sized bedrooms with built-in wardrobes, including a master with en-suite, and a main family bathroom with both bath and shower. No. 76 is presented in excellent condition throughout and features gas-fired central heating, double-glazed windows, and a designated parking space. The south-west facing garden benefits from a gated side entrance. An opportunity not to be missed: call Ray Cooke Auctioneers on 086 0469458 or 01 6995050 today for further information or to arrange viewing!!
Additional Features;
– c. 85 sq.m
– 3 bed 2 bath
– End of terrace
– BER D2
– South westerly facing orientation
– Designated parking space to front
– Gas fired central heating
– Double Glazed windows throughout
– Excellent primary and secondary schools in the area
– Convenient location close to Swords village
– Fantastic location
– Easy access to M50, M1 motorway and Dublin Airport
– Bus routes to City Centre closeby
– Close to a wealth of local amenities
– Ideal for first time buyers and growing families
– Early viewing highly advised!!
Location

Phone:
Connect with us:
Phone:
Connect with us:
Mobhi Road Office
Phone:
Connect with us:
Similar Properties
For Rent
For Rent
For Rent
For Sale
- 3 Rooms
- 2 Baths
- 113 sq m
For Sale
- 3 Rooms
- 3 Baths
- 95 sq m
For Rent
- 1 Rooms
- 1 Baths
For Rent
- 3 Rooms
- 1 Baths
For Rent
- 2 Rooms
- 2 Baths
For Sale
- 2 Rooms
- 2 Baths




























































