Quick Search:
Property ID:
Features
Description
RAY COOKE AUCTIONEERS are delighted to present this superb three-bedroom semi-detached family home to the market at No. 79 Glenaulin Green, Palmerstown, Dublin 20. Built in 1996, this impressive property comes to the market in fantastic condition throughout, having been maintained to the highest of standard. Benefiting from a range of modern upgrades that make it ideal for contemporary family living.
Glenaulin Green is a highly sought-after and mature residential development, renowned for its peaceful surroundings, family-friendly atmosphere and exceptional convenience. The location is second to none, with Palmerstown Village just moments away offering a host of local shops, cafés and amenities. Excellent primary and secondary schools, sports clubs, and parklands including the Phoenix Park are all within easy reach. The area is exceptionally well connected, with nearby access to the N4, M50 and a variety of public transport options providing swift access to Dublin City Centre and beyond.
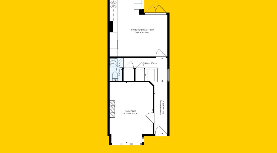
The bright and spacious internal accommodation consisting of c. 117sqm comprises of an inviting entrance hallway, a generous living room, downstairs wc with ample storage and a modern open-plan kitchen/dining area overlooking the westerly facing rear garden. Upstairs hosts three well-proportioned bedrooms (one currently used as a home office) and a main family bathroom. A standout feature of this home is the converted attic, currently in use as an extra bedroom, offering excellent additional space suitable for a variety of uses. To the rear lies a beautifully maintained west-facing garden, perfect for enjoying afternoon and evening sun, outdoor dining or family entertaining.
No. 79 is presented in true walk-in condition and combines generous living space with a superb location, making it an ideal choice for growing families and discerning buyers seeking a turnkey home in a well-established Dublin 20 neighbourhood. Early viewing is highly recommended—contact RAY COOKE AUCTIONEERS today for further information or to arrange a viewing.
Features
- Superb 3 bed/3 bath semi-detached home
• Approx. 117 sq.m of internal floorspace
• BER C3
• Presented in fantastic, walk-in condition
• Converted attic currently used as a fourth bedroom
• Modern upgrades and tastefully decorated
• Bright and spacious accommodation
• West-facing rear garden ideal for evening sun
• Highly sought-after Glenaulin Green development
• Close to Palmerstown Village and a host of local amenities
• Excellent transport links with easy access to N4, M50 & city centre bus routes
• Within easy reach of schools, parks and Phoenix Park
• Ideal for families and owner-occupiers
• Early viewing strongly advised
Location

Phone:
Connect with us:
Phone:
Connect with us:
Similar Properties
For Sale
- 2 Rooms
- 1 Baths
- 58 sq m
For Sale
- 3 Rooms
- 3 Baths
- 105 sq m
- 3 Rooms
- 2 Baths
For Rent
- 3 Rooms
- 1 Baths
For Sale
- 7 Rooms
- 5 Baths
- 189 sq m
- 4 Rooms
- 2 Baths
- 1 Rooms
- 1 Baths
- 5 Rooms
- 2 Baths







































































