Quick Search:
Property ID:
Features
Description
RAY COOKE AUCTIONEERS are proud to present this superb four-bedroom end of terrace family home with a rear kitchen extension and a sunny rear garden to the market. Perfectly positioned on the ever-popular Ballygall Crescent in Finglas. The location is next to none as Ballygall Crescent is within walking distance to a choice of wonderful parks including the Botanic Gardens, Albert College and Johnstown Park. Sport and shopping facilities that can be found in the area include Glasnevin Lawn Tennis Club, Tolka Rovers, Na Fianna GAA, Charlestown Shopping Centre, Finglas Village, IKEA plus local shops on both Fitzmaurice Road and Glasnevin Avenue. The property is also within a great catchment of both primary and secondary schools and is serviced by an excellent bus route offering a high frequency service to the City Centre. The M50 and Dublin Airport are also most accessible making this a most strategically positioned home.
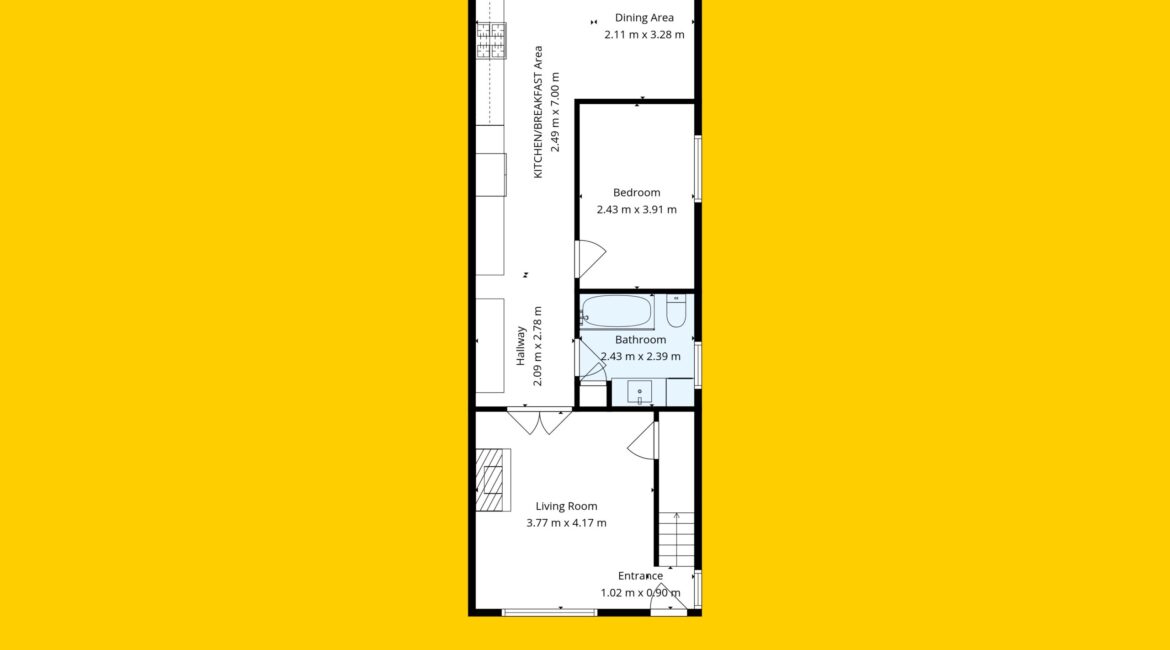
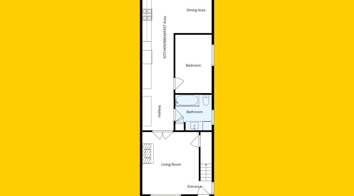
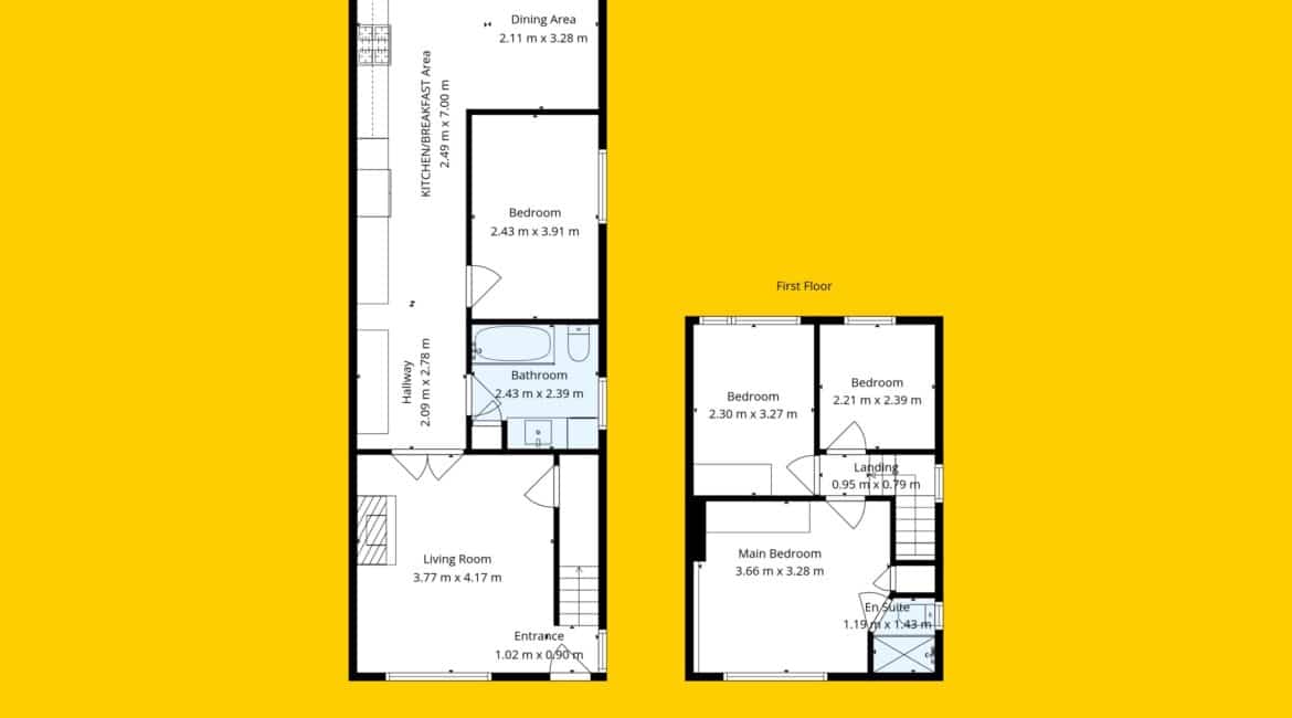
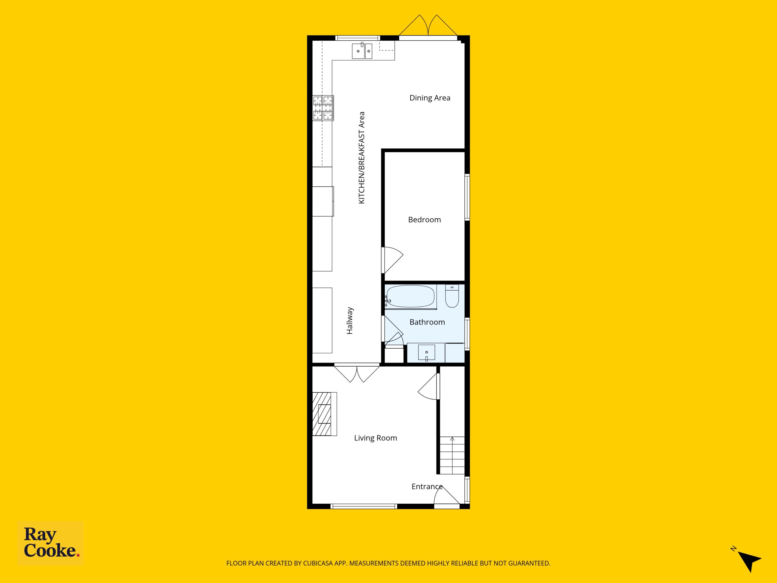
Bright and spacious living accommodation of c. 96 sq.m comprises an entrance hallway, living room to front with a feature fireplace, downstairs double bedroom, fully tiled bathroom and an extended kitchen/dining area to the rear. Upstairs hosts 3 generous bedrooms, including a master bedroom complete with a fully tiled ensuite. This fantastic property boasts a spacious rear garden with a gated side entrance and a block-built shed, fully plumbed and wired to suit a variety of uses. No. 98 comes to the market in turn-key condition, benefiting a rear kitchen extension, quality double-glazed windows, quality flooring throughout, rear garden with side entrance, and off-street parking to the front. Additional benefits include gas-fired central heating, quality flooring and a bright, airy interior throughout. An opportunity not to be missed. Viewing strongly advised; call Ray Cooke Auctioneers on 086 0469458 or 01 6995050 today for further information or to arrange viewing!!
Additional Features:
– c. 96 sqm
– BER D1
– 4 bed 2 bath
– End of terrace family home
– Extended to rear
– Excellent condition throughout
– Light filled interior
– Gas fired central heating
– Sunny rear garden with gated side entrance
– Fully wired and plumbed block built shed
– Double glazed windows throughout
– Quality flooring and doors throughout
– Mature & sought-after location
– Excellent primary & secondary schools in the area
– Easy access to M50 motorway
– Close to Johnstown Park
– Within 15 minutes’ drive to Dublin airport
– Bus routes and local shops on your doorstep
– Ideal for first time buyers, investors and families upsizing
– Early viewing highly advised!!
Directions:
Coming from Finglas village on the Seamus Ennis Road turn right at the cross roads onto Glasanaon Road. Turn right onto Ballygall place, take 3rd exit onto Ballygall Parade, at roundabout take the 1st exit onto Ballygall place at the next roundabout take 3rd exit onto Ballygall Crescent and No. 98 is located on your right hand side.
Location

Phone:
Connect with us:
Phone:
Connect with us:
Similar Properties
For Sale
- 2 Rooms
- 2 Baths
- 76 sq m
For Sale
- 3 Rooms
- 2 Baths
- 85 sq m
For Sale
- 3 Rooms
- 2 Baths
- 85 sq m
For Rent
- 1 Rooms
- 1 Baths
For Sale
- 3 Rooms
- 1 Baths
- 76 sq m
For Sale
- 2 Rooms
- 2 Baths
- 70 sq m
For Rent
For Rent
- 2 Rooms
- 2 Baths
For Sale
- 3 Rooms
- 2 Baths
- 86 sq m













































































