Quick Search:
Property ID:
Description
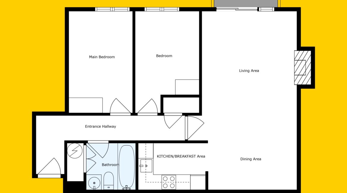
RAY COOKE AUCTIONEERS are delighted to present this superb two-bedroom ground floor apartment to the Dublin 15 market. Ideally positioned within the highly sought-after Westend Village development, this spacious apartment offers an excellent opportunity for first-time buyers, investors, or those looking to downsize. The location is second to none, with Blanchardstown Shopping Centre just a short stroll away, offering a wide range of retail, dining, and entertainment options. Other nearby amenities include Ballycoolin Industrial Park, Blanchardstown Hospital, and Technological University Dublin (Blanchardstown Campus). The area is also well-serviced by restaurants, pubs, hotels, and leisure facilities. Transport links are excellent, with multiple bus routes providing quick access to the city centre, and the N3 and M50 motorways close by, making commuting a breeze. No. 63 Westend Village offers modern comfort, abundant natural light, and a peaceful setting—ideal for first-time buyers or investors. This well-presented ground floor apartment is in good condition throughout and features bright, spacious accommodation extending to approximately 66 sq. m. The layout includes an entrance hall, a large open-plan living/dining area, a fully fitted kitchen, a private balcony with park views, a master double bedroom, a second double bedroom, and a main bathroom. Additional benefits include secure parking within a gated development, all set in a highly sought-after location with excellent amenities and transport links nearby.
Features;
– 66 sq.m
– 2 Bed 1 Bath ground floor apartment
– BER C1
– Fees 1900 p/a
– Electric heating
– Built in wardrobes
– Overlooking a large green area
– Designated parking
– Secure gated development
– Walking distance to Blanchardstown shopping centre
– Easy access to public transport & all major routes
– Primary and secondary schools in close proximity
– Ideal for first time buyers and investors
– No rent cap
– Viewing highly advised!
Directions: Exit the M50 at Junction 6 (N3/Blanchardstown exit).Follow signs for Blanchardstown/Cavan (N3).Merge onto the N3 (Navan Road) and take the first exit toward Blanchardstown Shopping Centre/Coolmine/Blanchardstown Village. At the roundabout, take the 2nd exit onto Blanchardstown Road South (R121). Continue straight, passing the Blanchardstown Shopping Centre on your right. Take the 3rd exit into Westend Retail Park/Westend Village. Follow the signs for Westend Village Apartments—you’ll see secure gated entrances for the residential blocks. No. 63 is within the Westend Village development.
Location

Phone:
Connect with us:
Phone:
Connect with us:
Similar Properties
For Sale
- 2 Rooms
- 2 Baths
- 63 sq m
For Rent
- 2 Rooms
- 2 Baths
For Rent
- 2 Rooms
- 1 Baths
For Rent
- 3 Rooms
- 1 Baths
For Sale
- 2 Rooms
- 2 Baths
- 70 sq m
- 3 Rooms
- 3 Baths
For Sale
- 3 Rooms
- 3 Baths
- 110 sq m
For Rent
- 1 Rooms
- 1 Baths
For Rent
- 3 Rooms
- 3 Baths
For Sale
- 3 Rooms
- 2 Baths
- 116 sq m






























