Quick Search:
Property ID:
Features
Description
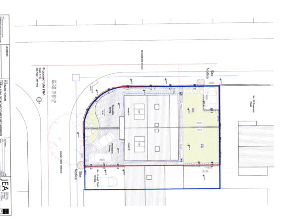
RAY COOKE AUCTIONEERS offer to the market a fantastic opportunity with this site in Lough Conn Terrace, Ballyfermot, Dublin 10. With FULL, GRANTED planning permission consisting of 2 x three bedroom semi detached properties both with parking. Planning reference – 3514/20 which grants Construction of 2, two-storey, with single storey return, semi-detached three bedroom dwellings (with roof lights and PV Panels) fronting Lough Conn Terrace. Lough Conn Terrace is ideally situated in the heart of the highly sought after and mature development of Lough Conn and the location is next to none with a host of amenities close by such as schools, churches, shops and sports grounds to name but a few. It is situated just a 15-minute drive from Dublin City Centre & has great public transport links within walking distance Liffey Valley shopping centre and a host of bus routes. Contact Ray Cooke Auctioneers today to register your interest.
Location

Phone:
Connect with us:
Phone:
Connect with us:
Similar Properties
For Sale
- 3 Rooms
- 1 Baths
- 80 sq m
For Sale
- 3 Rooms
- 1 Baths
- 85 sq m
For Rent
- 1 Rooms
- 1 Baths
For Rent
- 1 Rooms
- 1 Baths
For Sale
- 2 Rooms
- 2 Baths
- 67 sq m
- 2 Rooms
- 1 Baths
- 2 Rooms
- 1 Baths
- 3 Rooms
- 1 Baths
For Sale















