Quick Search:
Property ID:
Description
RAY COOKE AUCTIONEERS are pleased to introduce this SITE WITH FULL PLANNING PERMISSION to the open market, which is ideally located in this quaint pocket of Newbridge, County Kildare.
The Site @ 21a Great Southern, Newbridge, County Kildare provides the purchaser with a unique opportunity to build their dream family home in this highly sought-after residential area.
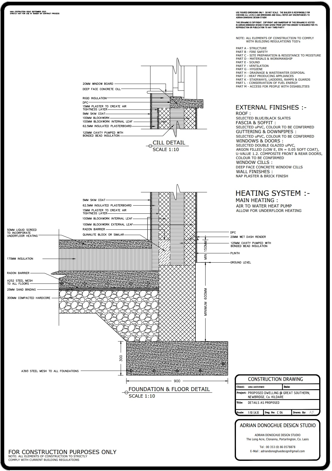
Planning permission has been granted for a 2/3 bedroom detached home spanning approximately 100 sqm over two floors.
The site already has a completed boundary wall, a laid foundation using Insulated Concrete Form (ICF), and all necessary drawings are in place with ICF specifications. Additionally, one-third of the engineering fees have been paid.
Full details are available on Kildare County Council’s online planning portal, under reference number 2098.
https://webgeo.kildarecoco.ie/planningenquiry
For more information on this fantastic opportunity, please contact RAY COOKE AUCTIONEERS.
Directions
When driving toward Newbridge Town Centre from the R445 continue through the junction and turn right on to Station Road. Take the third right hand turn on to The Great Southern & continue along until you reach the Site @ No.21a Great Southern on your right-hand side.
Location

Phone:
Connect with us:
Phone:
Connect with us:
Similar Properties
For Sale
- 5 Rooms
- 3 Baths
- 207 sq m
For Rent
- 1 Rooms
- 1 Baths
For Rent
- 1 Rooms
- 1 Baths
For Rent
- 2 Rooms
- 2 Baths
For Rent
- 1 Rooms
- 1 Baths
For Rent
- 1 Rooms
- 1 Baths
For Rent
- 3 Rooms
- 3 Baths
For Sale
- 4 Rooms
- 4 Baths
- 282 sq m
For Sale
- 4 Rooms
- 3 Baths
- 117 sq m

















































