Quick Search:
Property ID:
Sale
Features
Description
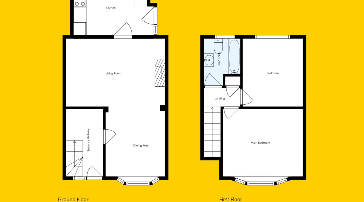
RAY COOKE AUCTIONEERS are delighted to introduce this fantastic two -bedroom end of terrace family home to the market in the ever-popular location of Rathvilly Drive in Finglas, Dublin 11.
No. 69 Rathvilly Drive is ideally located within walking distance to Finglas Village which has a wide array of shops, bars and restaurants. The Botanic Gardens, IKEA, and DCU are other amenities and facilities close by to mention but a few. There are excellent road networks including the M50 to bring you in and around Dublin City and an excellent bus service. No. 69 is also within an excellent catchment of both primary and secondary schools.
Bright and spacious living accommodation of c. 70 sqm comprises of entrance hallway, open plan living/dining room with feature fireplace, extended kitchen to rear with access to rear garden. Upstairs hosts 2 double bedrooms and a family bathroom. This fantastic property comes to the market in good condition throughout and benefits gas fired central heating, quality flooring, front driveway with gated side entrance and a private rear garden.
The properties new owner will have the opportunity to lay down roots in one of Dublin 11s most sought after and family-oriented locations. An opportunity not to be missed: call Ray Cooke Auctioneers on 086 0469458 or 01 6995050 today for further information or to arrange viewing!!
Additional Features:
c.70 sqm
BER E2
2 bed 1 bath
End of terrace
Light filled interior
Gas fired central heating
Front Driveway
Private rear garden with gated side entrance
Generous sized bedrooms
Mature & sought-after location
Excellent primary and secondary schools in the area
Close to Finglas Village, Charlestown Shopping Centre and M50/M1 access
Within 20 minutes’ drive to Dublin airport
Within walking distance of Finglas Village
Ideal for first time buyers
Early viewing highly advised!!
Location

Phone:
Connect with us:
Phone:
Connect with us:
Mobhi Road Office
Phone:
Connect with us:
Similar Properties
For Sale
- 5 Rooms
- 3 Baths
- 146 sq m
For Rent
- 4 Rooms
- 1 Baths
For Sale
- 3 Rooms
- 2 Baths
- 109 sq m
For Sale
- 4 Rooms
- 2 Baths
- 138 sq m
For Sale
- 1 Rooms
- 1 Baths
- 44 sq m
For Rent
- 2 Rooms
- 1 Baths
For Sale
- 4 Rooms
- 2 Baths
- 130 sq m
For Sale
- 3 Rooms
- 2 Baths
- 110 sq m
For Sale
- 3 Rooms
- 1 Baths
- 90 sq m
For Sale
- 3 Rooms
- 1 Baths
- 94 sq m




















































