Quick Search:
Property ID:
Features
Description
RAY COOKE AUCTIONEERS are delighted to present this bright and spacious three-bedroom family home to the market, ideally located on the ever-popular Clifden Road in the heart of Ballyfermot, Dublin 10. You are mere minutes from Ballyfermot Village and all the amenities it has to offer, including award-winning schools, local shops, and leisure facilities. The property is exceptionally well-serviced by public transport with a host of bus routes on your doorstep, providing easy access to Dublin City Centre, Liffey Valley Shopping Centre, and the M50 motorway network.
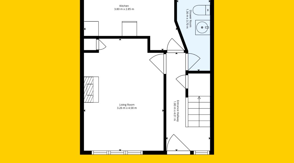
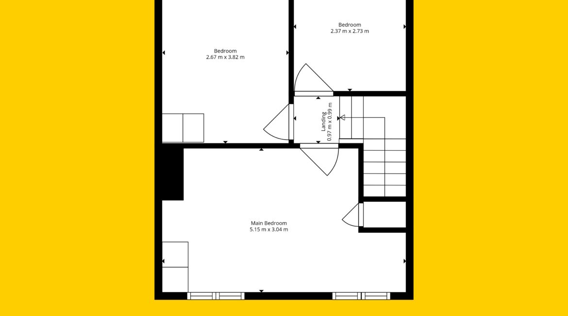
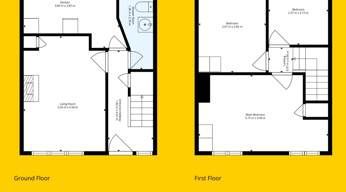
No. 11 comes to the market as a fantastic opportunity for any first-time buyer or savvy investor looking to put their own stamp on a property. The residence offers a solid foundation for its next chapter. Internal living accommodation of c 78 sq m is impressively proportioned and provides a bright, airy layout. Internal living accommodation is impressively laid out over two floors, comprising of a welcoming entrance hallway, a large living area and kitchen which looks out over a large garden and a master bathroom to the side. Upstairs, you will find three generous double bedrooms with immaculate wood flooring and double glazed windows throughout.
To the rear, the property boasts a private, well-maintained garden with plenty of room to extend. while the front offers off-street parking on a paved driveway.
Viewing is highly advised.
Call RAY COOKE AUCTIONEERS today for further information or to arrange a viewing!
Additional features:
-c. 78 sq m
-BER D1
-3bed/1Bath
-Gas Fired Central Heating.
-Double glazed windows throughout.
-Bright & spacious living accommodation.
-Large private rear garden
-Off-street parking to front.
-Highly sought-after location.
-M50 and Liffey Valley within minutes.
– Local shops, schools, and cafes within a short walk
– Ideal for first time buyers, families thinking of trading up and investors
-Viewing highly advised!
To reach 11 Clifden Road in Ballyfermot from the M50, the most common route is to take Junction 7 (N4) and head towards the city centre. After exiting onto the N4, you’ll take the first exit for Ballyfermot/Palmerstown, then turn right onto Kennelsfort Road Upper. Continue straight through the traffic lights at the junction with Ballyfermot Road, heading onto Kylemore Road, and then turn right onto Le Fanu Road. Follow Le Fanu Road until you reach the junction with Clifden Road, where you will turn left; the destination will be located on your right-hand side.
Location

Phone:
Connect with us:
Phone:
Connect with us:
Similar Properties
For Sale
- 2 Rooms
- 1 Baths
- 71 sq m
For Sale
- 3 Rooms
- 1 Baths
- 81 sq m
For Rent
- 1 Rooms
- 1 Baths
For Sale
- 4 Rooms
- 1 Baths
- 113 sq m
For Sale
- 4 Rooms
- 2 Baths
- 101 sq m
For Rent
- 2 Rooms
- 1 Baths
For Sale
For Sale
- 2 Rooms
- 2 Baths
- 84 sq m
For Sale
- 2 Rooms
- 1 Baths
- 75 sq m
- 3 Rooms
- 3 Baths

















































