Quick Search:
Property ID:
Features
Description
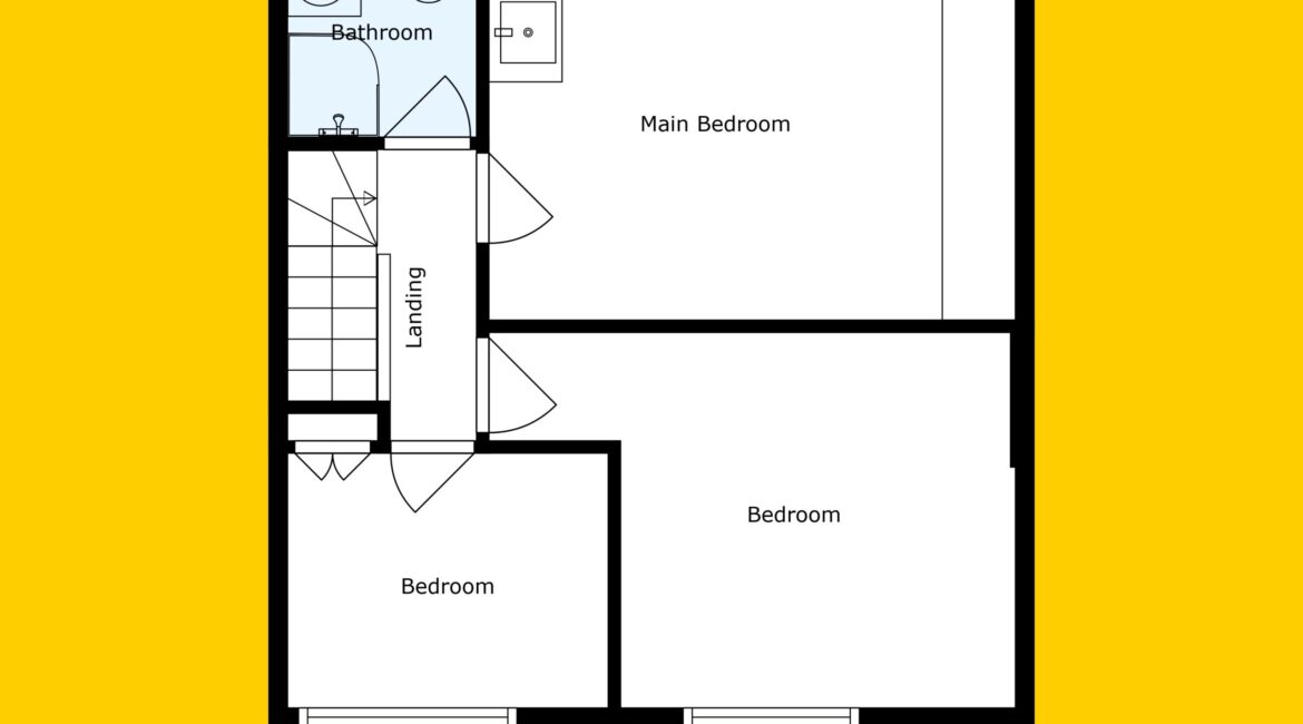
RAY COOKE AUCTIONEERS are proud to present this fantastic three-bedroom mid-terrace family home to the market, ideally located on the ever-popular Palmerstown Avenue, in the heart of Palmerstown, Dublin 20. No. 113 enjoys a prime position with every conceivable amenity within walking distance, including schools, shops, cafés, frequent bus routes, and excellent access to the M50 motorway. The Phoenix Park is just minutes away by car, adding to the appeal of this sought-after location. Spanning 93 sq. m, the bright and spacious accommodation comprises an entrance hall, living room, dining room (fireplaces in both living and dining rooms), kitchen, guest bathroom, main family bathroom, and three generously sized bedrooms. A small porch area off the kitchen leads out to a large rear garden, complete with a block-built shed and access to a rear laneway – ideal for extra convenience, outdoor relaxation, or entertaining. Whether you’re a first-time buyer or a growing family looking to upsize, No. 113 Palmerstown Avenue offers superb potential in a fantastic location. Viewing is highly recommended. Contact Ray Cooke Auctioneers today on 01 554 1699 or 086 828 9950 to arrange yours!
Features;
– 93 sq.m
– 3 Bed / 2 Bath Mid Terrace Home
– BER C3
– Spacious room proportions
– Family bathroom & guest bathroom
– Built in wardrobes
– Large block built garage
– Sunny south-facing front garden
– Access to rear laneway
– Superb mature location
– Cul de sac position with minimal passing traffic
– Walking distance to Palmerstown Village
– Phoenix Park within minutes by car
– Easy access to public transport & all major routes
– Primary and secondary schools in close proximity
– Ideal for first time buyers and families looking to trade up
– Viewing highly advised!
Directions:
Exit the M50 at Junction 7 (N4 / Palmerstown exit). Merge onto Chapelizod Bypass/R148. Keep right to continue toward The Oval. Turn right toward The Oval. Then an immediate right again to turn onto Palmerstown Avenue. Follow the road straight along Palmerstown Avenue – number 113 will be on your right-hand side, just before the end of the Cul de sac.
Location

Phone:
Connect with us:
Phone:
Connect with us:
Similar Properties
For Sale
- 1 Rooms
- 1 Baths
- 59 sq m
For Sale
- 3 Rooms
- 2 Baths
- 120 sq m
For Sale
- 5 Rooms
- 2 Baths
- 161 sq m
For Sale
- 3 Rooms
- 1 Baths
- 95 sq m
For Sale
- 3 Rooms
- 3 Baths
- 123 sq m
For Sale
- 4 Rooms
- 2 Baths
- 104 sq m
- 3 Rooms
- 1 Baths
- 3 Rooms
- 1 Baths
For Sale
- 2 Rooms
- 1 Baths
- 59 sq m
- 2 Rooms
- 1 Baths












































































