Quick Search:
Property ID:
Sale
Features
Description
RAY COOKE AUCTIONEERS take great pleasure in presenting to the market this 2 bedroom property wonderfully located in the heart of Terenure Village.
No. 124 would make the perfect starter home, is prime for right sizers, and will also appear to any astute investor.
The location speaks for itself with every conceivable amenity found within a stone’s throw including a range of cafes, bars, schools & sports facilities. Dublin’s City Centre can be reached within a brisk walk not to mention a regular bus service literally on your doorstep.
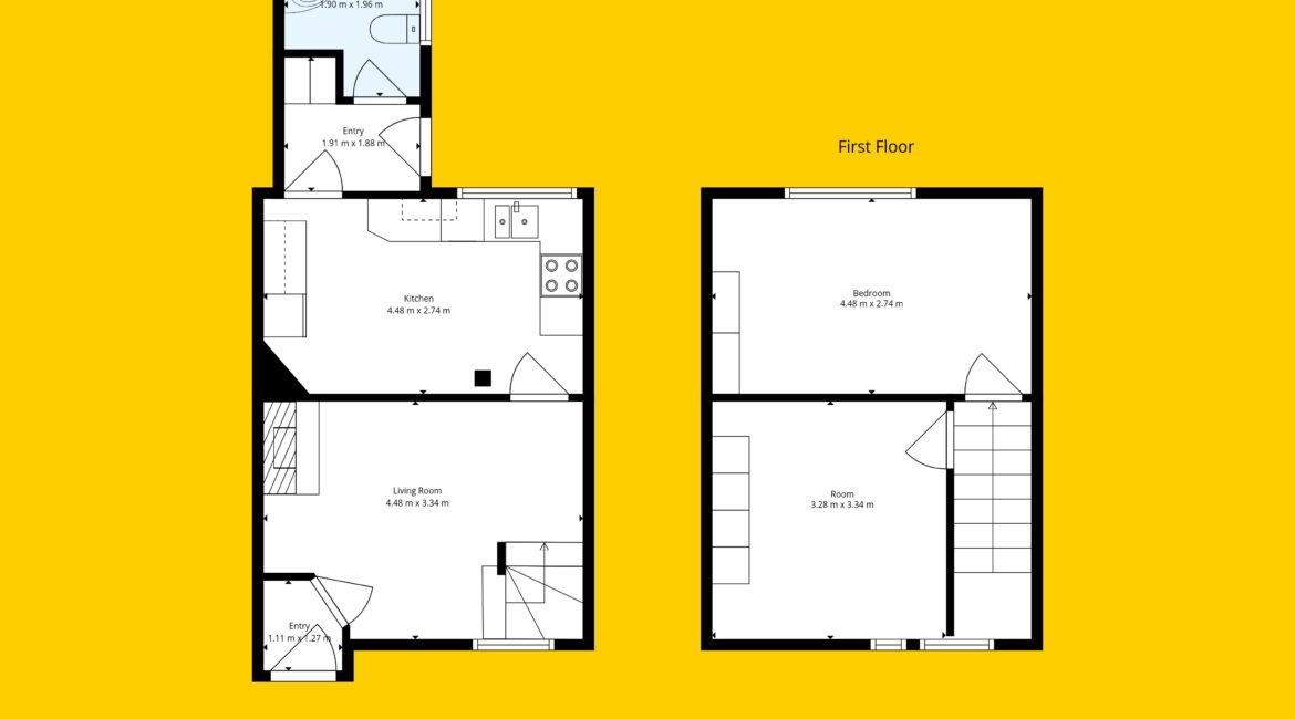
Internal living accommodation spans to c. 62 sq.m. On the ground floor you will find the entrance hallway, kitchen/dining room and extended bathroom. Upstairs are two generous double bedrooms. The rear offers a low maintenance courtyard that could easily be transformed into a peaceful haven for outdoor relaxation.
No. 124 is a blank canvas throughout and would prove eligible for the Vacant Property Refurbishment Grant which is a terrific incentive for any potential buyer.
Early viewing highly advised, contact our office for further information.
Additional Features;
– ELIGIBLE FOR VACANT PROPERTY REFURBISHMENT GRANT
– c. 62 sq m
– BER G
– 2 bed/1 bath
– Generous double bedrooms
– Blank canvas
– Low maintenance rear courtyard
– Located in the heart of Terenure village
– Dublin City Centre within easy reach
– Prime for first time buyers, investors & right sizers
Directions:
When driving from Bushy Park, head straight down the Templeogue Road and continue straight onto Terenure Place. Take a left turn onto Terenure Road North and you will see No. 124 on your left hand side.
Location
Floor Plans

Phone:
Connect with us:
Similar Properties
For Rent
- 3 Rooms
- 1 Baths
For Sale
- 2 Rooms
- 1 Baths
- 62 sq m
- 4 Rooms
- 2 Baths
For Sale
- 5 Rooms
- 3 Baths
- 161 sq m
- 1 Rooms
- 1 Baths










































