Quick Search:
Property ID:
Description
RAY COOKE AUCTIONEERS are delighted to present this great 2-bedroom third floor apartment to the market with a sunny facing balcony located in the exclusive New Seskin Court Development, Dublin 24. New Seskin Court is ideally situated in the heart of Tallaght and boasts a wealth of amenities within easy reach such as Tallaght Hospital, The Square Shopping Centre and Tallaght Village Centre. Transport links abound with the Red LUAS line, N7, M50 and N81 all within minutes.
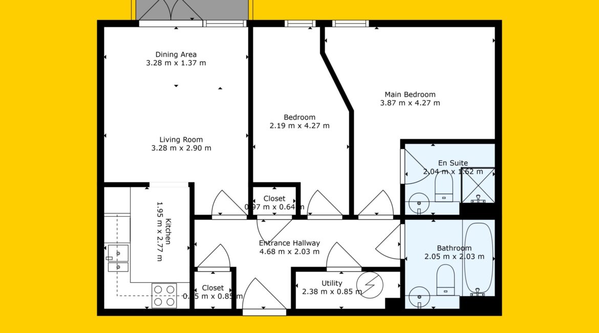
Bright, airy and most spacious internal living accommodation of c. 59.2 sqm comprises of entrance hallway with two storage rooms, two double bedrooms (one master ensuite), main family bathroom and large open plan fully fitted kitchen/living room which leads out to a lovely private balcony that is benefitted from a sunny facing orientation overlooking the courtyard within the block. No. 131 comes to the market as a blank canvas with no onward chain in good condition throughout having been well maintained by its current owners with designated secure underground parking and boasts plenty of additional features that include fully fitted kitchen, built in wardrobes & ample storage to name but a few.
This one is certain to be a hit with first time buyers looking to get on the property ladder, investors looking to capitalise on the strong rents in the area or anyone looking to downsize and have all local amenities on your front door. Early interest is sure to be expected, call Ray Cooke Auctioneers for further information or to arrange viewing!
Additional Features;
– c. 59.2 sqm
– BER C1
– 2 bed / 2 bath apartment
– Situated on the 3rd floor
– Designated underground parking space
– Management fee c. €2,500 per annum
– Great condition throughout
– Great quality fixtures & fittings
– Lifts to all floors and underground carpark
– Electric heating
– Double glazed windows
– Top quality blinds
– Sunny facing private balcony
– Fully fitted kitchen
– Large open plan living space
– Hardwood flooring throughout
– Ample storage
– Two double bedrooms
– Master bedroom ensuite
– Built in wardrobes
– Blank canvas
– No chain
– Within walking distance of the Red Luas Line
– Within easy reach of M50 & N7
– In the heart of Tallaght
– 5-minute walk to Tallaght Square
– Viewing highly advised!
Directions; If travelling southbound on M50 Motorway take exit 11 for Tallaght and continue straight ahead, keep going then turn left straight after Tallaght Stadium where New Seskin Court will be on the right, best access is from the front directly beside The Maldron Hotel.
Location

Phone:
Connect with us:
Phone:
Connect with us:
Similar Properties
For Rent
- 3 Rooms
- 2 Baths
For Sale
- 3 Rooms
- 3 Baths
- 93 sq m
For Sale
- 3 Rooms
- 1 Baths
- 83 sq m
For Rent
- 2 Rooms
- 1 Baths
For Sale
- 3 Rooms
- 2 Baths
- 81 sq m
For Rent
- 2 Rooms
- 2 Baths
For Sale
- 3 Rooms
- 2 Baths
- 82 sq m
For Sale
- 3 Rooms
- 1 Baths
- 80 sq m
For Rent
- 2 Rooms
- 2 Baths
For Sale
- 3 Rooms
- 2 Baths
- 86 sq m





































