Quick Search:
Property ID:
Sale
Features
Description
RAY COOKE AUCTIONEERS excitedly present this extended four bedroom family home to the market in this extremely sought after development located just off the Clonsilla Road. The location will not be beaten – within walking distance you will find Clonsilla & Coolmine Train Stations, esteemed primary and secondary schools, local shops, parks, sports clubs and all of the amenities that Blanchardstown Shopping centre has to offer.
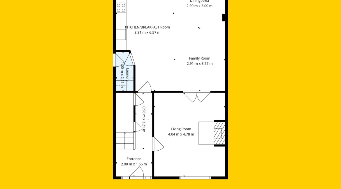
Bright and spacious internal living accommodation of c. 135 sq m comprises of entrance hallway, living room, open plan kitchen/dining/family room, utility room, downstairs WC, four spacious bedrooms, main family bathroom and master ensuite.
Double doors from the family room open onto a well maintained rear garden with lawn, patio shed and westerly orientation.
The front offers off street parking for multiple cars on a cobblelock driveway.
Number 14 is presented in turn key condition having been meticulously maintained and upgraded over the years. It is the ultimate family home and benefits from dual aspect living space which is flooded with natural light, upgraded heating system, new front door, spacious attic and top quality blinds.
To be seen is to be appreciated.
Call RAY COOKE AUCTIONEERS today for further information or to arrange a viewing.
Additional Features:
– c. 132 Sq.m
– BER C1
– 4 bed/ 3 bath
– Rear extension
– Utility room
– Flooded with natural light
– Four spacious bedrooms
– Gas fired central heating
– Parking for multiple cars
– Sunny garden
– Fully fitted kitchen with island
– Mature & sought after location
– Excellent primary & secondary schools in the area
– Easy access to M50 motorway
– Bus routes and train station to City Centre close by
– Walking distance of Castleknock and Blanchardstown Villages
– Early viewing highly advised!!
Location

Phone:
Connect with us:
Phone:
Connect with us:
Similar Properties
For Sale
- 3 Rooms
- 3 Baths
- 100 sq m
For Sale
- 4 Rooms
- 4 Baths
- 149 sq m
For Sale
- 4 Rooms
- 3 Baths
- 132 sq m
For Sale
- 5 Rooms
- 3 Baths
- 143 sq m
For Rent
- 1 Rooms
- 1 Baths
- 1 Rooms
- 1 Baths
For Sale
- 2 Rooms
- 2 Baths
- 65 sq m
- 3 Rooms
- 3 Baths



































































