Quick Search:
Property ID:
Features
Description
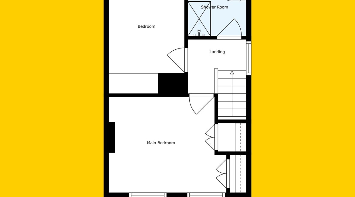
RAY COOKE AUCTIONEERS are thrilled to bring No. 147 St. John’s Crescent, Clondalkin, Dublin 22, to the market, an exceptional two-bedroom, one-bathroom end-of-terrace property with an extended kitchen/dining area and an impressively large rear garden. Tucked away in this mature and well-established development, No. 147 enjoys an unrivalled location with every convenience within easy reach. Residents benefit from being only a short stroll to Clondalkin Village, The Mill Shopping Centre, local schools, leisure facilities, and the lovely Corkagh Park. The area is also well connected, with excellent bus services and quick access to both the M50 and N7 road networks. The interior, measuring c. 73 Sq.m, is bright, inviting, and lovingly cared for. The ground floor comprises an entrance hallway, a spacious lounge and a stylishly extended kitchen/dining area, creating a fantastic open-plan layout ideal for modern living. Upstairs you’ll find two generous bedrooms and a family bathroom. The standout feature is without doubt the rear garden, much larger than average, offering excellent potential for outdoor living or further development. The front of the property provides off-street parking. This superb home is certain to generate strong interest from first-time buyers and those looking to downsize. Early viewing is strongly advised, contact RAY COOKE AUCTIONEERS on 01 5541699 or 086 828 9950 for further details!
Key Features:
– c. 73 Sq.m
– BER D1
– Extended kitchen/dining area
– 2 Bed / 1 Bath
– End of terrace home
– Oil-fired central heating
– Double-glazed windows
– Wooden flooring throughout
– Exceptionally spacious rear garden
– Off-street parking
– Lovingly maintained
– Highly desirable development
– Walking distance to Corkagh Park & Clondalkin Village
– Excellent transport links via M50 & N7
– Ideal for first-time buyers or downsizers
Directions:
Coming from the Fonthill Road, take the St. John’s Grove exit and continue straight through both roundabouts. At the T-junction, turn right onto St. John’s Crescent. The property is immediately to your right-hand side.
Location

Phone:
Connect with us:
Phone:
Connect with us:
Similar Properties
For Rent
- 2 Rooms
- 2 Baths
For Sale
- 3 Rooms
- 1 Baths
- 90 sq m
For Sale
- 2 Rooms
- 1 Baths
For Sale
- 3 Rooms
- 1 Baths
- 83 sq m
For Sale
- 2 Rooms
- 2 Baths
- 66 sq m
For Sale
- 4 Rooms
- 4 Baths
- 165 sq m
For Sale
- 3 Rooms
- 2 Baths
- 87 sq m
For Sale
- 2 Rooms
- 2 Baths
- 66 sq m
For Rent
- 4 Rooms
- 2 Baths
For Rent
- 5 Rooms
- 2 Baths




































































