Quick Search:
Property ID:
Sale
Features
Description
RAY COOKE AUCTIONEERS are delighted to present 152 The Sweepstakes, Ballsbridge, Dublin 4 to the market – a superb one bedroom second floor apartment ideally positioned within this exclusive and highly sought-after development in the heart of Ballsbridge. The Sweepstakes is one of Dublin’s most prestigious and well-maintained developments, with beautifully landscaped communal grounds and a peaceful residential setting. The location is second to none with Ballsbridge Village on your doorstep offering an array of cafés, restaurants, bars and boutique shops. Herbert Park, the Aviva Stadium, Sandymount Strand and a selection of Dublin’s leading hotels and corporate headquarters are all within walking distance. The area is exceptionally well serviced by public transport with Sydney Parade DART station and numerous bus routes close by, while the city center is easily accessible.
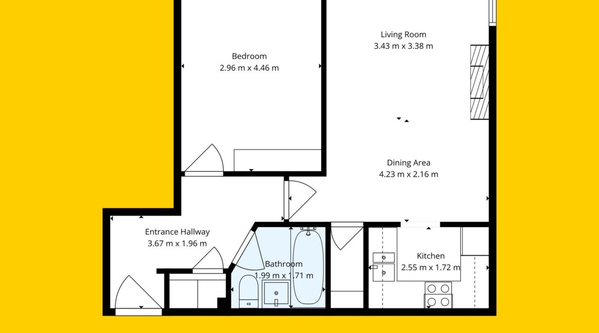
Bright and well-proportioned internal living accommodation comprises of entrance hallway, spacious open plan living and dining area, fully fitted kitchen, generous double bedroom and main bathroom. Located on the second floor, the property benefits from excellent natural light and a practical layout throughout.
No. 152 is presented in excellent condition throughout and is ready for immediate occupation, making it an ideal choice for first time buyers, investors or those seeking to downsize. Early viewing is highly advised – contact Ray Cooke Auctioneers today to arrange a viewing!
- c. 50 sqm
- BER C2
- 1 Bed / 1 Bath
- Second floor apartment
- Great condition throughout
- Gas fired central heating
- Double glazed windows
- Designated parking
- Mature and highly sought after area
- No onwards chain
- Ideal for first time buyers, and those who are downsizing
- Within arm’s reach of all local amenities
- Herbert Park, RDS, and Aviva Stadium mere minutes’ walk away
- Sandymount Beach a stone’s throw away
- Plenty of bus routes on your doorstep
- Landsdowne and Sandymount DART station within walking distance
- Viewing highly advised!
Directions;
Eircode: D04 TC60
Location

Phone:
Connect with us:
Similar Properties
For Sale
- 1 Rooms
- 1 Baths
- 50 sq m
- 1 Rooms
- 1 Baths
For Rent
- 1 Rooms
- 1 Baths








































