Quick Search:
Property ID:
Sale
Features
Description
RAY COOKE AUCTIONEERS are delighted to present this fabulous three-bedroom mid-terraced family home to the market ideally located on a peaceful cul de sac overlooking a green area in the ever-sought-after development of Burgage Green only seconds from Newcastle Main Street. The M50 and N7 are located close by and make commuting around Dublin and beyond hassle free. Within minutes’ walk you will find a host of shops, bars and restaurants. Local schools are within walking distance and bus routes are located at the front of the development.
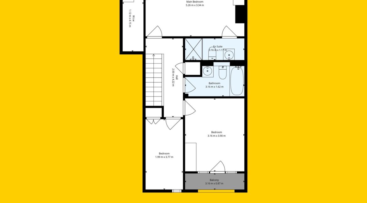
Bright, airy and most spacious internal living accommodation of c. 139 sqm comprises of entrance porch, hallway, fully fitted kitchen/dining room, utility room, guest WC & cosy living room to the rear. Upstairs consists of three generous bedrooms with built in wardrobes, master ensuite and a main family bathroom. One bedroom has the benefit of having its own private sunny south facing balcony.
Double doors from the living room lead onto a beautifully presented rear garden that comes private and fully enclosed making it perfect for relaxing on them long sunny summer evening with the use of a shed that is great for storage.
No. 17 is presented in fantastic condition throughout having been lovingly maintained by its current owners with no expense spared when upgrading in recent years and boasts a long list of additional features to include a B1 energy rating, gas fired central heating with new gas boiler, double glazed windows with top quality blinds and top-quality flooring to name but a few. This one is ideal for first time buyers, families trading up and investors.
Early viewing is highly advised, call Ray Cooke Auctioneers for further information or to arrange viewing!!
Additional Features;
– c. 139 sqm
– 3 BED / 3 BATH
– Mid Terrace family home
– B1 energy rating
– Management fees c €950 per annum
– Fantastic condition throughout
– Extra spacious living
– Tastefully decorated from top to bottom
– Entrance porch
– Large hallway
– Fully fitted kitchen/dining area
– Cosy living room
– Separate utility room
– Guest bathroom
– Three generous bedrooms
– Master ensuite
– Built in wardrobes
– Sunny south facing balcony
– Extra-large rear garden
– Private & fully enclosed
– Shed for storage
– Peaceful development
– Located on cul de sac
– Overlooking green area
– Parking for two cars
– Visitor parking also
– Waste bins included
– Within seconds of Newcastle Main street
– Within easy reach M50 Motorway
– Primary and secondary schools in close proximity
– Ideal for first time buyers, families thinking of trading up and investors
– Viewing highly advised!
Directions: Travelling through Newcastle along the main street, continue past the Texaco garage and proceed straight. Just before you reach the Supervalu Supermarket, take a left turn then left again onto Burgage Green where number 17 will be clearly sign posted on the left.
Location

Phone:
Connect with us:
Phone:
Connect with us:
Similar Properties
For Rent
- 1 Rooms
- 1 Baths
For Rent
- 4 Rooms
- 1 Baths
For Sale
- 3 Rooms
- 3 Baths
- 113 sq m
For Sale
- 397 sq m
For Sale
- 1 Rooms
- 2 Baths
- 44 sq m
For Sale
- 2 Rooms
- 3 Baths
- 92 sq m
For Sale
- 3 Rooms
- 2 Baths
- 81 sq m
For Sale
- 2 Rooms
- 2 Baths
- 80 sq m
For Sale
- 2 Rooms
- 1 Baths
- 63 sq m
For Rent
- 2 Rooms
- 2 Baths







































































