Quick Search:
Property ID:
Sale
Features
Description
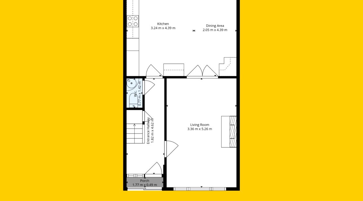
RAY COOKE AUCTIONEERS are proud to present 17 Oldcourt Manor, Firhouse, Dublin 24 — a stunning three-bedroom, three-bathroom semi-detached family home boasting approximately 100 sq.m of beautifully designed living space, complemented by a self-contained two-bedroom, one-bathroom granny flat to the rear. Upon entry, you are greeted by a welcoming hallway featuring an under-stairs vanity closet. The front living room flows through double doors into a beautifully presented, modern, fully fitted kitchen and dining area.
This bright, open space extends to a sunny, south-facing rear garden, which includes a self-contained two-bedroom granny flat and a garden shed. This modern two-bedroom granny flat extension features an open-plan kitchen, dining, and living area, a contemporary family bathroom, and quality finishes throughout—ideal for generating extra rental income or accommodating family guests. Upstairs comprises a master bedroom with an en-suite bathroom and fully fitted wardrobes, along with a second double bedroom and a single bedroom, both also featuring fitted wardrobes. A shared family bathroom and convenient attic access complete the accommodation.
Situated in the highly sought-after Firhouse area of Dublin 24, Oldcourt Manor offers a peaceful suburban setting at the foothills of the Dublin Mountains while remaining within easy reach of the city. This mature and family-friendly neighbourhood is well known for its sense of community, leafy surroundings, and convenient access to a wide range of local amenities. Excellent transport links, including the nearby M50 motorway and several Dublin Bus routes, provide effortless connectivity to the city centre and surrounding areas. The property is ideally positioned close to reputable schools such as Holy Rosary National School, as well as local shops, cafés, and sports facilities.
For outdoor enthusiasts, Marlay Park, Tymon Park, and scenic mountain trails are just minutes away, offering an abundance of recreational options. Combining natural beauty with urban convenience, Oldcourt Manor is an ideal location for families and professionals seeking a tranquil yet well-connected place to call home. Don’t miss out on this fantastic opportunity. Early viewing is highly recommended!
Call RAY COOKE AUCTIONEERS today for further information.
Features;
– 100 sq.m
– BER C3
– 3 Bed/ 3 Bath
– 2 Bed self-contained granny flat extension
– Semi-detached property
– Private driveway
– Fantastic condition throughout
– Storage shed to the rear
– Southerly facing rear garden
– Side entrance
– Mature well-established neighbourhood
– Excellent schools within close proximity
– Ample transport links on your doorstep
– Prime for first-time buyers, investors or anyone looking to trade up
– Viewing highly advised!
Directions;
From the M50, take Exit 12 for Firhouse/Ballycullen and follow signs toward Ballycullen Road. Continue straight through the roundabouts, passing Holy Rosary School on your left. Turn left onto Oldcourt Road, then right into Oldcourt Manor. Number 17 is located within this quiet residential estate.
Location

Phone:
Connect with us:
Phone:
Connect with us:
Similar Properties
For Rent
- 2 Rooms
- 2 Baths
For Sale
- 3 Rooms
- 2 Baths
- 79 sq m
For Sale
- 3 Rooms
- 3 Baths
- 100 sq m
For Rent
- 3 Rooms
- 1 Baths
For Rent
- 8 Rooms
- 4 Baths
For Rent
- 3 Rooms
- 1 Baths
For Rent
- 2 Rooms
- 1 Baths
For Sale
- 3 Rooms
- 1 Baths
- 84 sq m
For Sale
- 3 Rooms
- 1 Baths
- 81 sq m
For Sale
- 3 Rooms
- 1 Baths
- 110 sq m















































































