Quick Search:
Property ID:
Sale
Features
Description
RAY COOKE AUCTIONEERS are delighted to present No. 195 Ballyfermot Road, Ballyfermot, Dublin 10—a stunning two-bedroom, one-bathroom end of terrace home presented in immaculate, turnkey condition throughout. This exceptional property has been tastefully upgraded and extended in recent years, offering stylish and well-proportioned living accommodation perfectly suited to modern living.
The location of Ballyfermot Road is truly second to none. Situated in the heart of Ballyfermot, this well-established and vibrant community is highly sought after for its convenience and excellent local amenities. Residents benefit from a wide selection of primary and secondary schools, shops, supermarkets, cafés and leisure facilities all within walking distance. The area is also home to a number of parks and green spaces, ideal for outdoor activities. Dublin City Centre is easily accessible via a reliable public transport network, while the nearby road infrastructure provides quick links to the M50 and beyond, making commuting across the capital seamless.
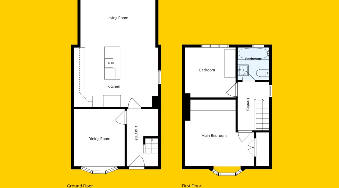
Internally, the accommodation is bright, modern and thoughtfully designed for contemporary living. The ground floor comprises a welcoming entrance hall leading into a stylish dining area, finished to an exceptional standard. Following through the ground floor you a greeted with a stunning open plan kitchen and living area, a standout feature of this home is the sun filled extension completed approximately three years ago, boasting an abundance of natural light and creating a spacious open-plan kitchen and dining area—perfect for both everyday living and entertaining. Upstairs hosts two well-proportioned bedrooms and a sleek main family bathroom, all presented in pristine condition.
To the rear, the property boasts a fully slabbed, low-maintenance garden along with a versatile concrete-built granny flat, currently in use as a gaming room, gym and workshop, offering endless potential for a variety of uses. The front garden has also been fully slabbed, enhancing both practicality and kerb appeal. The end of terrace positioning provides additional privacy and side access, further adding to the overall appeal.
No. 195 Ballyfermot Road represents an excellent opportunity to acquire a fully upgraded, stylish home in a mature and well-connected Dublin location. Early viewing is strongly advised.
- Stunning 2 bed / 1 bath end of terrace home
• C. 75 sqm of floorspace (including granny flat)
• BER D1
• Concrete-built granny flat to rear with multiple uses
• New kitchen installed
• Property rewired in 2016
• New boiler installed c. 5 years ago
• Front and rear gardens fully slabbed for low maintenance
• Rear extension completed c. 3 years ago with abundant natural light
• Bright and spacious interior
• High-quality finishes throughout
• End of terrace with added privacy and side access
• Mature and well-established residential area
• Excellent transport links to Dublin City Centre and beyond
• Wide range of local amenities within walking distance
• Ideal for first-time buyers, downsizers, or investors
• Early viewing highly advised
Directions
Eircode – D10 H928
Location

Phone:
Connect with us:
Similar Properties
For Sale
- 2 Rooms
- 1 Baths
- 71 sq m
For Sale
- 3 Rooms
- 1 Baths
- 81 sq m
For Rent
- 1 Rooms
- 1 Baths
For Sale
- 4 Rooms
- 1 Baths
- 113 sq m
For Sale
- 4 Rooms
- 2 Baths
- 101 sq m
For Rent
- 2 Rooms
- 1 Baths
For Sale
For Sale
- 2 Rooms
- 2 Baths
- 84 sq m
For Sale
- 2 Rooms
- 1 Baths
- 75 sq m
- 3 Rooms
- 3 Baths




























































