Quick Search:
Property ID:
Features
Description
RAY COOKE AUCTIONEERS are delighted to present this fantastic three-bedroom semi-detached family home with a lovely south west facing rear garden ideally located in one of Firhouse’s most sought after developments. This exclusive estate is always in high demand with young families due to its idyllic location within arm’s reach of various schools, sports clubs, shopping centres & coffee shops. Dodder Riverbank Park, Balrothery Weir and St Enda’s with their excellent recreational facilities and amenities are also located within easy reach. On a transport note there is a choice of bus routes directly to the front of the development and the M50 Motorway is only a stone’s throw away.
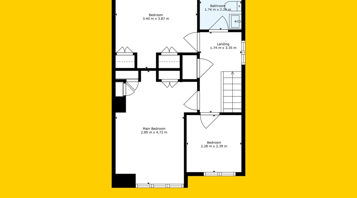
Bright, airy & most spacious interior living accommodation of c. 95 sqm comprises of entrance hallway with guest bathroom, large living room with fireplace, fully fitted kitchen and separate dining room. On the first floor you have three generous bedrooms with built in wardrobes and main family bathroom which comes fully tiled. To the rear of the property you have a fully enclosed private garden that comes with a highly sought after south west facing orientation making it perfect for relaxing on them long sunny summer evenings and further benefitted by not being overlooked with the upmost privacy whilst the front provides ample off-street parking. To the side of the house you have a large green area and side access which is fully covered.
No. 2 is ideally located on a highly sought-after road with minimal passing traffic and comes to the market in turnkey condition throughout having been lovingly maintained by its current owners with no expense spared when upgrading in recent years with plenty of additional features includes generous living space, top quality fixtures & fittings, double glazed windows and heaps of built in storage. Prime for first time buyers looking to get on the property ladder or any growing family looking to set roots in a mature and settled area – Viewing is highly advised, Call Ray Cooke Auctioneers for further information or to arrange viewing.
Additional Features;
– c. 95 sqm
– BER C3
– XL green to the side
– Situated cul-de-sac
– Barely any passing traffic
– Ideal for first time buyers & growing families
– Upgraded windows
– 3 bed / 1 bath
– Semi-detached family home
– Fantastic condition throughout
– Tastefully decorated from top to bottom
– Gas fired central heating
– Wide welcoming entrance hallway
– Guest bathroom
– Large living room with fireplace
– Lovely fully fitted kitchen
– Built in storage
– Separate dining room
– Three generous bedrooms
– Built in wardrobes
– Fully tiled family bathroom
– Off street parking
– Sunny south west facing rear garden
– Private & enclosed rear
– Low maintenance rear
– Side laneway covered
– Close to all Road Networks – M50, N81, N7
– Close to a selection of schools
– Early viewing highly advised!!
Directions travelling from the M50, exit 11 will take you to the Spawell roundabout in which you can take the 3rd exit. Continue straight and take the right turn onto the Firhouse Road. Once you pass Supervalu, take the 2nd right turn into Dodder Avenue. Follow through the development until the very end in which No. 2 will be on your right clearly sign posted.
Location

Phone:
Connect with us:
Phone:
Connect with us:
Similar Properties
For Rent
- 3 Rooms
- 2 Baths
For Sale
- 3 Rooms
- 3 Baths
- 93 sq m
For Sale
- 3 Rooms
- 1 Baths
- 83 sq m
For Rent
- 2 Rooms
- 1 Baths
For Sale
- 3 Rooms
- 2 Baths
- 81 sq m
For Rent
- 2 Rooms
- 2 Baths
For Sale
- 3 Rooms
- 2 Baths
- 82 sq m
For Sale
- 3 Rooms
- 1 Baths
- 80 sq m
For Rent
- 2 Rooms
- 2 Baths
For Sale
- 3 Rooms
- 2 Baths
- 86 sq m





































































